


台湾品牌农业推广协会贵州分会
中国农业私董会理事单位
圈里和圈外、莲舍、戏台和笋榨,
还有专属趣味"猪".....
还记得上坪古村吗?
就是那个“彩虹在家中”所在的村子。

(彩云间、烤烟房)
上坪古村,地处福建省三明市建宁县溪源乡,是中国传统村落,福建省历史文化名村。上坪村历史悠久,文化底蕴深厚,大部分村民为杨姓,族谱记载是汉代太尉杨震的后人。村落现有格局完整,两条溪流绕村,并在村口汇聚,形成完整的风水格局。
▼上坪村地图

而正如上坪村普遍存在的问题一样,缺少休憩、餐饮等旅游配套设施严重影响了村庄旅游,及相关产业的发展,也进而不利于村庄经济的复苏。针对这个问题,设计团队希望通过对闲置农业生产设施的改造,植入新的业态,留住人流;与空间改造同步,一系列与古村相关的文创产品和旅游活动内容也被一起考虑。在设计团队看来,乡村振兴本就不只限于空间的改变,更应该涉及经营和产业。

去年,村口节点、彩云间、烤烟房完成改造,现在,猪圈牛棚又出来“晃悠”了。

大夫第
"大夫第"贯穿村落的两条溪流中东溪上游的重要节点,这是一座在村里有名的老宅。

相传主人曾在外面做官,回乡后在故里建造了这座大宅。大宅的口楼还保存完好,但里面主体建筑早已焚毁。水塘、古井、笋榨、门楼、古戏台遗址等原有文化元素丰富,还有极为显眼的猪圈、杂物棚。

场地平面图▼
圈里和圈外
由废弃猪圈改造的酒吧:“圈里”是区域内最主要的新建筑。建筑的外观并不张扬,尽量保留了原有建筑的材质和形制:毛石围挡和木构屋架。在内部,建筑的平面成田字形,田字的四个区域是原来的猪圈,设计保留了原有猪圈的毛石围墙,将吧台、散座和炕席分别置于四个原本的猪圈中。慵懒、戏剧性是酒吧“圈里”希望传达的气氛,撞色和碎花的靠枕、炕桌、石槽,由钢筋条焊成的走廊地面,配以可变色的LED地灯……设计师希望在古村中创造一个“异类”,它可以服务到村里来的年轻人群体,增加上坪旅游的丰富度。
▼“圈里”酒吧外观

▼炕桌区域

▼散台区域

▼吧台区域

▼设计保留了原有猪圈的毛石围墙

▼走廊地面配以可变色的LED地灯

在圈里酒吧的旁边,新建了一座小型会议室。建筑成单坡顶,朝向大夫第门楼的一面使用了落地的大玻璃,与大夫第门楼,以及两者之间的戏台形成了很好的对视关系。因为和圈里酒吧相邻,设计师将之取名为:圈外。会议室和酒吧分别服务不同的人群,但都从不同的角度补充了古村对外服务不足的问题。
▼“圈外”会议室

▼会议室与酒吧共同弥补了古村对外服务不足的问题


莲舍
莲舍是杂物间改造的茶室,也暗示了“廉洁”之意。原本的杂物间位于大夫第旁边的一个水塘边,水塘的存在使杂物间成为区域内最显眼的视觉焦点。设计保留了原有建筑的毛石围挡,只对上层的木结构进行了整修,将之改造为一个水边的茶室。原有的老木材被尽量保留下来,重复使用;在朝向水面的一面,落地门窗和架在水上的平台加强了建筑与水景的关系,也给新的使用者一个临水而居的感觉。水塘内的景观也被重新梳理,原本半闲置的状态被新的景观元素——荷花所替代,从而与新改造的茶室向呼应。
原来的老房
▼
改造后的老房
▼

▼由杂物间改造的茶室

戏台和笋榨
在大夫第门楼、圈里酒吧和圈外会议室之间,原场地中有两处棚架,它们原来的用途是用于榨笋,制作笋干。设计师认为它们的存在很好的诠释了乡村的气氛,于是棚架被保留下来,适当的进行整修,但力求保持一种搭建的随意性。安放笋榨的棚架仍然作为制笋的空间(遗憾的是原来的笋榨农民不肯留下,只能从别处移来另一架笋榨),在清明前后,它仍然可以进行生产,同时也为村庄的旅游提供了一种体验活动。另一座棚架的用途进行了调整,平时它可以作为一个凉亭被使用;在特点时间,它又会变身为乡村传统戏剧的表演舞台,而此时周边的建筑窗口则成为观赏表演的最佳位置。
原来的棚架
▼
改造后的棚架
▼

▼夜景

文创产品
与上坪古村其他两个节点一样,设计团队也为大夫第节点设计了专属的文创产品。除了特别为上坪莲子、笋干设计的包装外,一个由“圈里”酒吧衍生出来的以“猪”为主题的系列产品显得尤为突出。猪在中国传统中是富足的象征,在汉字中“家”字下面的“豕”字就是猪的意思,在西方文化猪也有吉祥、幸运的意思。设计师以猪为造型设计了一组产品,包括:丝巾、杯垫、明信片等等,它们一方面对应建筑的原始用途,另一方面又增加了趣味性。
▼大夫第节点的文创产品




杨家学堂
上坪有“书香水村,明水绕古村”之名。2017年10月,水口节点完工;2017年12月,杨家学堂节点与大夫第节点相继完工。
▼总平面图

杨家学堂节点位于上坪村两条溪流的交汇处,是入村后的道路分叉口,地理位置非常重要。此处有杨家学堂,相传朱熹曾在这里讲学,并留下墨宝。选择在这个地点进行节点改造设计,既考虑了旅游人流行为的需要,也照顾到了上坪古村的历史文化。
▼杨家学堂概貌

改造对象是杨家学堂外面的几间废弃的农业生产用房。他们是:杂物间和牛棚和谷仓。设计团队希望将原来的建筑改造为一个书吧,一方面为外来的观光者提供一个休息和了解村庄历史文化的地点,更为重要的是为当地人,特别是孩子提供一个可以阅读,可以了解外面世界的窗口,并为重拾“耕读传家”的文化传统提供了支点。
▼“静雅”书吧由牛棚改造而成

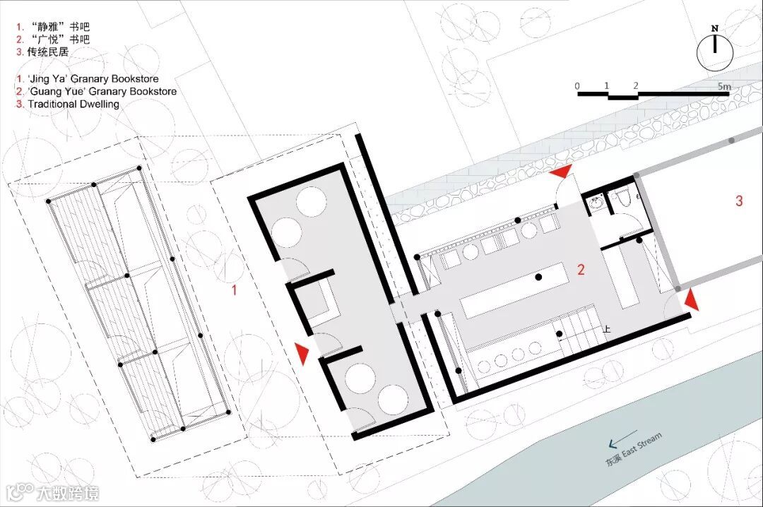
1. 广悦与静雅
在前期的踏勘中,设计师发现现状的杂物间和牛棚在空间上有很大差异。杂物间相对高大,内部空间开放;而牛棚则正好相反,因为原有功能的需要,空间矮小,黑暗,几个牛棚之间由毛石分隔,此外牛棚上面还有一个低矮的二层用于存放草料。
▼从杨家学堂的墙缝中看“广悦”书吧

▼书吧平面图

空间的差异和“瑕疵”带来了空间改造的困难,同时也为改造后的建筑叙事提供了戏剧性元素,这正是改造项目有趣的地方。利用原有空间的特点,设计团队将新建筑定义为“一动一静”两个部分。
▼杨家学堂的新建筑分为“一动一静”两个部分


▼剖面图

“一动”是利用杂物间改造的书吧的售卖部分,这里相对热闹,拿书借书,买水喝水,以及设计团队专门为上坪村创作的一系列文创产品都在这里集中展示、销售。这里是上坪村对外的一个窗口,外来人可以在这里阅读上坪古村的“前世今生”;村里人也可以透过物理性的窗口(建筑的朝向村庄一面采用了落地玻璃的方式,将书吧和村庄生活连着一起。)和心理的窗口和外面的世界进行对话。大家称之为“广悦”。
▼“广悦”书吧内夜间灯光效果

▼“广悦”书吧室内

原有建筑朝向溪流一侧是封闭的毛石墙,开窗很高,但溪流和对面的田园景观又是希望引入书吧的。设计师并没有降低原有窗口,而是在室内加设了一个高台,人们需要走上高台才能从窗口看到外面。这样做一方面尊重了原有建筑与溪流、道路、村落的关系,保持了建筑内部和溪流之间“听水”的意境,另一方面也满足了人们登高远望的要求,也丰富了室内空间。建筑面向村庄的一侧,原有的围墙已经倒塌,设计师利用一面落地玻璃来重新定义建筑与村庄的邻里关系,也改善了原有建筑采光相对不理想的问题。
▼“广悦”书吧内,设计师在室内加设了一个高台


“一静”是读书、静思的空间,称之为“静雅”。它由牛棚改造而成。设计师认为原有建筑最有意思的空间模式是上下两层相互独立又联系的结构:下面为牛生活的地方,由毛石磊筑而成,狭小、黑暗;上面是存放草料的地方,木结构,同样狭小,相对黑暗;上面的“木房子”是直接放在下面的石头围子墙上的,它们之间在物理流线(上面的空间不会通过下面的空间进入)上是分离的,但在使用逻辑(牛吃草)上是关联的。
▼“静雅”书吧内,“木房子”被稍微抬起,将阳光引入原本黑暗的牛棚

▼“静雅”书吧内,“木房子”被稍微抬起,将阳光引入原本黑暗的牛棚

沿用了这个空间模式,但将上面的“木房子”稍微抬起,一方面增加下面空间的高度,另一方面将阳光引入原本黑暗的牛棚,这里将成为阅读者的新窝,安静、封闭,不受外部的干扰,唯一能打扰你读书的是从两层空间之间缝隙射入的一缕阳光。原有的毛石墙面被保留,懒人沙发被安置在地面上,柔软对应强硬,温暖对应冰冷,“新居民”对应“老住户”,戏剧性的冲突在对比中产生。
▼“静雅”书吧内,“木房子”被稍微抬起,将阳光引入原本黑暗的牛棚

二层的草料房被重新定义:原来的三个隔离的空间被打通,草料房的一半空间被吹拔取代,在吹拔空间与新草料房之间采用了阳光板隔墙,形成了半透明的效果;草料房仍然很低矮,进入的方式也必须从户外爬梯子而入,很是不舒服,但这也是设计师有意为之。设计师希望这里的使用回到一种“慢”的原始状态,有点类似苦行僧的状态,使用者需要小心的体味身体与空间,把都市的张扬收起,在读书中反思人与自然,人与环境的关系。
▼“静雅”书吧二层阅读空间

▼阳光板隔墙形成了半透明的效果

这种“慢”的要求也同样反映在一静一动两个空间的连接位置上。一个刻意低矮的过道被设计出来,成年人需要低头弯腰慢慢通过。设计师希望通过这种空间的处理暗示“谦逊”这一中国民族的传统美德:低下头,保持敬畏。
▼“广悦”书吧内就座区的溪流景观

2. 文创产品
书吧也是上坪文创的重要展示和销售的聚点。设计师利用上坪古村原有的文化历史传说、传统进行乡村文创,打造一系列专属于上坪古村的乡村文创产品和旅游纪念品。如利用朱熹的墨宝对联创作的书签,笔记本;提取上坪古村的历史、文化、建筑、农业特点设计的上坪古村的logo,以及由此延伸的文化衫,雨伞等。这些文创产品既传承了上坪古村的历史文化,又为村庄旅游提供收入。
▼“广悦”书吧吧台空间

▼“广悦”书吧室内

▼杨家学堂夜景


建筑师:三文建筑 / 何崴工作室
地址:中国,福建省,三明市,建宁县,溪源乡
主持建筑师:何崴
设计团队:赵卓然、李强、陈龙、陈煌杰、汪令哲、赵桐、叶玉欣、宋珂
建筑面积:233.0 平方米
项目年份:2017
摄影师:周梦
大家都在看
1
2
3
免责声明:来源:新微设计,我们推送的每一篇文章,都会注明来源,版权归原作者所有。若未能找到作者和原始出处还望谅解;如有侵权,请联系本微信后台,我们会在第一时间删除并致歉。

【我们能为您解决】

联系我们:
Tel:150-8600-1227 133-8551-6559
QQ群:两岸现代农业资源营 (群号:428515402)
地址: 贵阳市观山湖区北京西路1号世纪金源购物中心商务楼B栋26楼

知名支持单位:
【台湾地区】:台湾品牌农业推广协会、台湾农场经营协会、台湾乡村旅游发展协会、台湾民宿联合总会、台湾生态农园教育协会、台湾休闲农业促进会、台湾有机农业协会、农渔会资讯中心、屏东科技大学、台湾政治大学、台湾大学、中兴大学、远东科技大学
【德国】:德中协会、波罗的海大学、基尔青少年基金会
【意大利】:米兰大学、乌迪内大学、比萨大学、意大利教育中心
【中国大陆】:中国农业大学、华中农业大学、同济大学、贵州大学农学院、贵州农业科学院





