


台湾品牌农业推广协会贵州分会
中国农业私董会理事单位

在台湾,机构养老的发展模式已进入相对成熟期,相比大陆养老机构,台湾养老机构的模式、规划布局等对我们有很大的参考价值,可以为我们提供一种新思维,在实践中为城市养老机构的改良提供依据,也为我国建立大型全面的养老综合体提供参考和借鉴。
台湾目前存在的各养老机构,将其大致分为安养中心、银发住宅和养生村三种类型:

其中,台湾的润福生活新象、双连安养中心、长庚养生文化村作为上述三个养老机构类型的代表,且其入住率达到了100%,我们将其作为重点进行研究。
1.安养中心
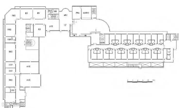
以双连安养中心为例,其位于台北市三芝区的双连安养中心占地约4h㎡(注:h㎡=百平),2000年、2004年及2006年分别完成双连安养中心第一、二、三期高龄者安养、养护、失智症照顾院舍的兴建。
第一期为养护区,提供给154位需要养护的老人居住。1楼为办公空间室;2-4楼为轻度养护,其中3楼有护理站;5、6楼为重度养护,每层均有护理站、流食餐厅。
第二期为安养区,共住了212位身体健康可自理的老人,1楼为社工办公室,这栋楼的护理站比较小。
第三期为失智症照顾区,1楼为总务办公室。
三栋楼的地下室相连通,有员工宿舍、餐厅、美容院、牙科诊所、卡拉OK、健身设施等辅助用房。整个双连安养中心一共有11个餐厅,其中两个大型餐厅,一个在地下室,一个在二期7楼。其他小餐厅分布在各区域各楼层。
双连安养中心的特色是:开办社区松年大学及各式适合高龄者的活动课程,适合高龄者终身学习(在大陆,老年大学是独立的活动中心、学习场所);人性化的空间设计,远超建筑规范,更适合高龄者居住,比如,按建筑法规规定,无障碍斜坡仅需1:12,但双连一二期中的无障碍斜坡均为1:15,意识到仍然无法满足老年人实际需求后,在之后的三期建筑中,无障碍斜坡已经减缓到了1:30。


2.银发住宅
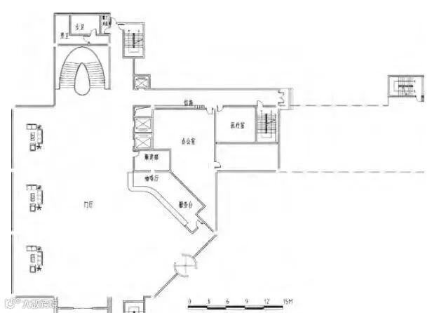
以润福生活新象为例,润福生活新象位于新北市淡水区学府路139号,是一座专为退休银发贵族量身规划的五星级饭店式住宅。
建筑主体地上十七层、地下二层,共计4702㎡。三楼以上为宿舍,共有300个房间,其中50㎡235间、79㎡15间、99㎡30间,还有探亲专用客房。
公共空间多为复合式空间,包括:大厅、迎宾室、服务中心、吧台、陶艺室、KTV视听室、图书阅览室、品茗回廊、多功能活动中心、简易健身房、撞球区、乒乓球区、流泉庭园。
润福的特点就是体贴周到的饭店式服务,针对的服务对象是高收入人群。


3.养生村
以长庚养生文化村为例,长庚养生文化村位于台湾省桃源县龟山乡,全区占地25.67h㎡,于1998年动工,2005年开放银发族入住。因邻近长庚医院林口总院和复健分院,在医疗资源支援下,可发展出急性、慢性、护理照护等全方位的银发族健康照顾环境,首创成为“连续性终身照顾社区”。
养生村打造的是村庄的概念,拥有宽广的户外休闲空间——17h㎡的草原的自然生态以及完善的步道系统。采用一封闭一开放庭园之方式,双边走廊,走廊宽度5~6m,主要公共空间集中在地下二层至地上一层。有超商、有美发店、也有宗教厅……。但是这些功能空间皆在同一栋楼,很少走出户外,工作人员也采取的是分栋分区责任制。空间出入口分散四处,老人们刷卡进出。


通过对影响老年人生活的8种生活空间(宿舍空间、交通空间、学习空间、交谊空间、医疗空间、餐饮空间、辅助空间、办公空间)进行分析发现:影响老年人入住最重要的四个因素为宿舍空间、交通空间、交谊空间、餐饮空间。因此我们以下对这四个空间在养老机构的设计中进行重点研究。
宿舍,即‘老年居住房间’,通过研究发现宿舍布局与酒店类似,每个房间均带有独立卫生间,除润福生活新象没有晾晒阳台外,大多住户的阳台是相连的,便于老人进行交流互动。同时,含流理台和冰箱的简易厨房空间能方便老人自己烹饪。高端养老机构留有高品质的大户型宿舍,附设客厅、餐厅,甚至储藏空间。



养老机构的建筑形态取决于地形,比如市区内的润福生活新象,占地面积较小,为独栋高层建筑;长庚养生文化村建于山坡上,占地面积较大,则建筑形体舒展。建筑形态又决定了机构的出入口数量。因此,为每个老人配备身份识别卡片,让老人出入及乘坐电梯刷卡,可方便管理人员及时掌握老人动向,也可保障园区安全。此外,所有养老机构的疏散楼梯旁均应设置无障碍坡道,走廊两侧设置扶手。
越晚建成的养老机构越注重老年人的心理健康,尽力满足老年人的交往需求。即使是互动较少的酒店式的银发住宅,也有每层13㎡的交谊空间,交谊空间最多的是长庚养生文化村,每四户一个交谊门厅,能使新住户轻松结交新朋友,尽快融入新生活,有利于打造具有社群意识的养生村。除了交谊空间以外,球类运动、KTV、棋牌、健身等活动室也是住户锻炼身体、放松身心、增强人际交往的绝佳场所。

养老机构中住户的主要用餐地点都是院方经营的大型自助餐厅。除此以外,还有针对不同人群的特色餐饮,比如,为重度养护病人准备流食餐厅、为素食主义者准备素食餐厅、为喜爱小吃的住户准备各色美食店铺……
大家都在看
1
2
3
免责声明:我们推送的每一篇文章,都会注明来源,版权归原作者所有。若未能找到作者和原始出处还望谅解;如有侵权,请联系本微信后台,我们会在第一时间删除并致歉。

【我们能为您解决】

联系我们:
Tel:150-8600-1227 133-8551-6559
QQ群:两岸现代农业资源营 (群号:428515402)
地址: 贵阳市观山湖区北京西路1号世纪金源购物中心商务楼B栋26楼

知名支持单位:
【台湾地区】:台湾品牌农业推广协会、台湾农场经营协会、台湾乡村旅游发展协会、台湾民宿联合总会、台湾生态农园教育协会、台湾休闲农业促进会、台湾有机农业协会、农渔会资讯中心、屏东科技大学、台湾政治大学、台湾大学、中兴大学、远东科技大学
【德国】:德中协会、波罗的海大学、基尔青少年基金会
【意大利】:米兰大学、乌迪内大学、比萨大学、意大利教育中心
【中国大陆】:中国农业大学、华中农业大学、同济大学、贵州大学农学院、贵州农业科学院





