小伙伴们注意啦!
唐镇的这个地块将新建一所小学,
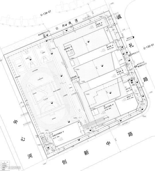
唐镇镇南社区C-13A-08地块小学项目
■ 建设单位:
上海华夏文化旅游区开发有限公司
■ 建设项目名称:
唐镇镇南社区C-13A-08地块小学项目
△点击可查看高清大图
■ 项目四至范围:
项目基地处于浦东新区唐镇,地块:
▷ 东至诚礼路
▷ 南至创新中路
▷ 西至中心河
▷ 北至C-13A-07地块
项目效果图
|
地块编号 |
用地性质 |
容积率 |
|
|
C-13A-08 |
Rs4小学用地 |
0.84 |
|
建设内容
1#实验楼,2#教学楼,3#教学楼,4#综合行政楼,5#食堂&风雨操场,6#垃圾房,地下车库,道路工程,建筑工程,给排水工程,电气工程以及绿化、交通设施等附属工程。
项目效果图
主要经济技术指标
建筑用地面积:23177.30平方米
总建筑面积:23006.10平方米
其中,地上建筑面积:19506.10平方米
地下建筑面积:3500平方米
绿地率:35%
建筑高度:不超过20米
建筑层数:不超过4F
公示详情
公示期限:2022年1月17日至2022年1月26日
反馈意见截止日期:2022年2月2日前,信件以寄出邮戳为准。
公示采取网上和现场同步公示的方式
现场公示地址:项目现场
公示网址:http://www.pudong.gov.cn/shpd/
本次公示采取书面信函(或电子邮件)方式听取公众意见
反馈意见的信函请寄:上海市张东路1158号3号楼,邮编:201203,电子邮箱地址:zjgh@pudong.gov.cn,并在信函封面注明“注明项目方案公示意见”。也可到项目所在地相关镇、街道反映。
信息来源:信息来源
END
推荐阅读


