
预约看房,请长按或扫描二维码!

预约看房,请长按或扫描二维码!
(看房热线:188-0030-5881,务必至少提前小半天预约,谢谢理解!)

01.
真如板块全面发力
已成上海城市新中心
真如板块是继徐家汇、花木、五角场后上海第四个城市副中心,这不仅是上海西北地区的活动中心,还因上海西站与昆山、苏州、南京等,长三角发达城市紧密联系,是上海连通长三角其他区域的重要枢纽。
再加上正在修建14号线、15号线未来对于真如的辐射,未来将规划建设的轨道交通20号线对真如的利好,目前已经开通的有地铁11号线、7号线给真如的加持,5轨交汇板块的置业价值是十分优秀的。

全面发力上海城市新中心
(1)进入2018年9月以来,上海市真如城市副中心的建设正在加速。
上海市真如城市副中心的位置如图所示
地铁超过徐家汇
上海轨道交通14号线向北是真如城市副中心的核心区域,而向东则进入上海市中心区。
真如地区的地铁格局
未来将有三条地铁在真如副中心交汇。
真如站:11和14号线相交,真如副中心核心
上海西站:15和11号线相交,真如副中心北翼
铜川路站:14和15号线相交,普陀区政府所在地

中央公园将落成
与中海真如地块无缝链接的真如绿廊已经开工,长达6公里,总占地面积超过20万平方米。

未来将成为贯穿整个真如的“中央公园”,也是上海市中心最大的生态景观绿地之一。
第一段从大渡河路到兰溪路,面积约7万平方米,现状为已建成的真如公园等绿地。
第二段从兰溪路到曹杨路,现状为已关闭的铜川路水产市场,面积约7.5万平方米。
第三段为曹杨路到中宁路,面积约7万平方米。虬江河和真如港的河道在此连通,计划再挖一条河,与真如港形成闭合水环,将红旗村打造成一个“中环绿岛”。


除此之外,铜川路水产市场地块则新规划了体育场馆和文化博览中心以及4栋150米高写字楼和1栋220米高写字楼,在真华路桃浦路则新规划了一所12年一贯制学校。
预约看房,请长按或扫描二维码!

预约看房,请长按或扫描二维码!
(看房热线:188-0030-5881,务必至少提前小半天预约,谢谢理解!)
02.
优越的地理位置毋庸置疑
来看看最新加推产品怎样
高尚领域地理位置非常优越,位于真如板块曹杨路铜川路交界,是11号线及在建中14号线双线地铁上盖项目。

通过轨交11号线可快速到达徐家汇商圈,未来通过在建中的14号线,可直达陆家嘴商圈;在建中的轨交15号线,与高尚领域仅一站换乘之隔;三轨穿行的板块,未来前往上海的各个区域地铁换乘都非常的方便!
除此之外,真如作为上海副中心,拥有不俗的规划,未来商圈内三轨交穿过,板块内大型配套林立,还可近距离享受到上海西站与徐家汇商圈的利好辐射。

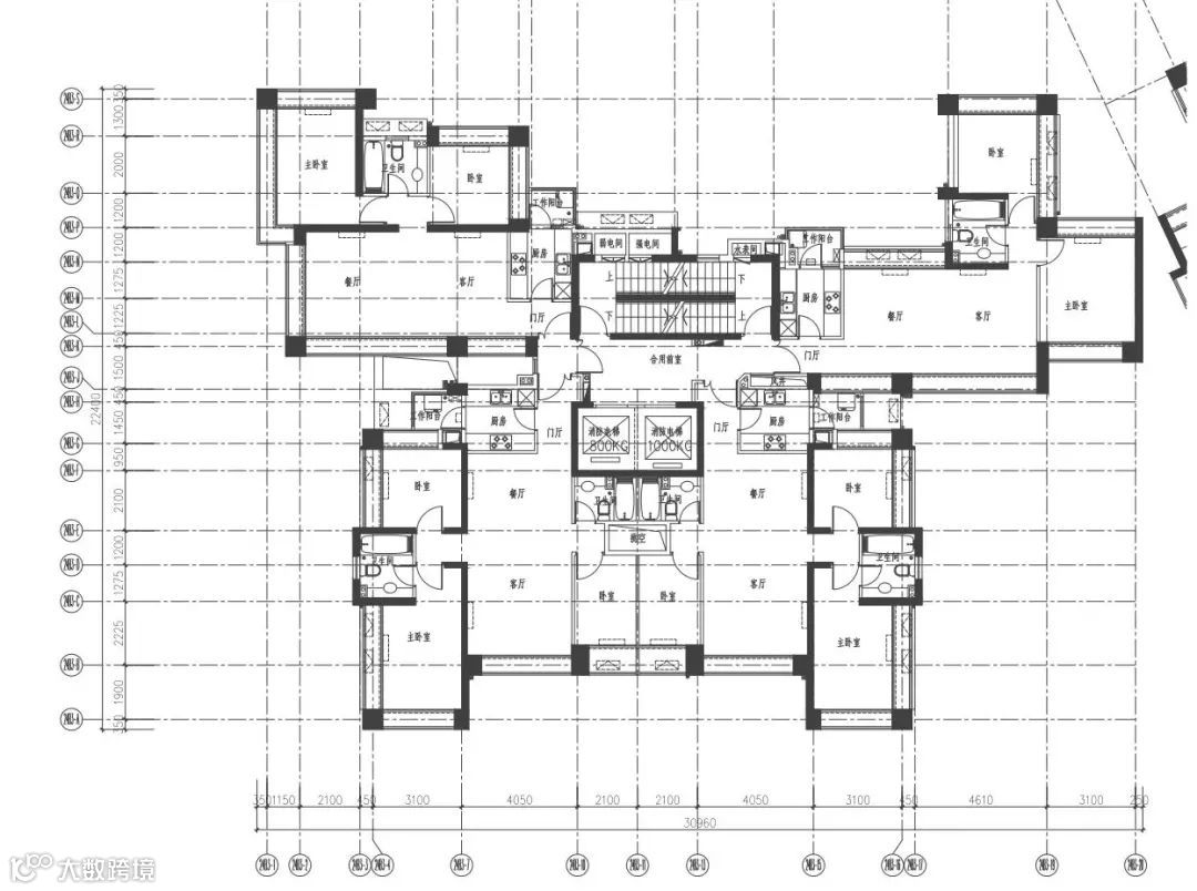
关于高尚领域的户型图,以下是搜索资料找到一张平面图,以及户型图,包括建筑面积约85㎡(两房 )96-102㎡(三房 )180㎡(四房),两梯两户特殊户型:约226~360平(仅供参考):

住宅楼层图与户型图



*以上户型仅供参考,最终发布以开发商公示为准
高尚领域的这些主力户型,假如按照上次取证单价计算,2房720万元左右、3房1000万元左右,4房1800万元左右的总价,还是装修交付,其实很适合城中改善型住宅需求。
预约看房,请长按或扫描二维码!

预约看房,请长按或扫描二维码!
(看房热线:188-0030-5881,务必至少提前小半天预约,谢谢理解!)
下面是部分网传的楼层图:









预约看房,请长按或扫描二维码!

预约看房,请长按或扫描二维码!
(看房热线:188-0030-5881,务必至少提前小半天预约,谢谢理解!)
03.
作为内中环这样的板块
周边配套也是非常醇熟了
高尚领域的开发商是长江实业,规划中包括高级住宅、商业办公大楼、旗舰商场、星级酒店等,是一个近120万平方米大型城市综合体项目。未来建成将会是真如地标性的建筑。


真如绿廊的建设:长达6公里的真如绿廊已经正式开工建设,与中海地块衔接,占地超20万方。
如此巨大的工程,在未来这将是贯穿整个真如的“中央公园”,也将成为上海最大的绿地生态景观之一。

我们再来说一说真如已经建成的项目,星光耀广场、天汇广场、高尚领域商业项目。提供高品质生活服务!




目前三大商业体已经在正常运营,为周边居民提供生活便利毫无压力。
区域内教育资源丰富,有真如文英中心小学、上师大附属学校(小学/初中),真如中学、曹杨第二中学、曹杨第九中学等多所优质学校。

周边综合商场:家乐福、乐购、世纪联华、乐天玛特、麦德龙、迪卡侬运动超市、百安居、环球港等,完全满足日常生活和娱乐休闲所需。
周边医院:有普陀区中心医院、普陀中医/老年医院、上海宏康医院、普陀区中医院龙华医院门诊部等。

预约看房,请长按或扫描二维码!

预约看房,请长按或扫描二维码!
(看房热线:188-0030-5881,务必至少提前小半天预约,谢谢理解!)


