
宝山罗店
北郊未来产业园内
红星·宝山天铂
400 1035 274
直线距离上外附校510米
71-89㎡2-3房
113-128㎡叠加
售楼处、样板房年后开放
线上预约享团购优惠 直通官方案场
对项目感兴趣的朋友
请扫描下方二维码进入官方报名通道
甘经理:18800305881

预约咨询、参观
本案仅接受预约参观
红星·宝山天铂
直线距离上外附校510米
2019年1月,宝山牵手上外
共建公办九年一贯制
上海外国语大学附属宝山双语学校
2019年9月已开学
位于罗店的三兄弟
万科启宸、招商主城、中建阅澜山
在上海发布的入学信息查询中可以看到
其中两个已交房的项目
已经被划入了招生范围内
今年5月底
红星地产以底价213426万元
拿下宝山工业园BSPO-1801单元93-02地块
兼有自持商业+住宅的复合业态项目
项目规划建设有4幢9-10层小高层
14幢16层高层、10幢叠加产品
社区设计中
在架空层内打造儿童主题空间
设置多维社区景观
涵盖社交、健身、休闲、艺术等多种模式
据悉还有四季恒温泳池
01
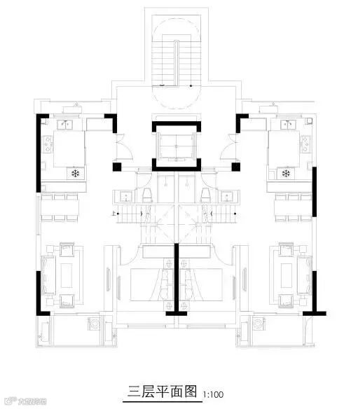
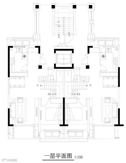
71-89㎡2-3房
约71㎡2房2厅1卫
约83㎡3房2厅1卫
约89㎡3房2厅2卫
02
113-128㎡叠加
约125㎡下叠
约113㎡上叠
红星·宝山天铂
位于北郊未来产业园内
位置示意图
北郊未来产业园,由宝山区与金桥(集团)联合开发,占地面积7.4平方公里,集总部研发、高端住宅、商务办公于一体,以互联网金融、人工智能、新材料制造量子通信、创意产业为主,建成后预计年产出将达500亿元。
S7沪崇高速
(S20-月罗公路)已正式通车
通过S20外环可直达市区
未来二期工程将至宝钱公路
更有沪太路、沪通铁路连通江苏省界
除了产业园内的未来商业
目前已经开业的上坤上街购物中心
宝山罗店医院、美兰湖妇产科医院
另有三级甲等综合性华山医院
项目信息
项 目
红星·宝山天铂
地 段
宝山罗店
户 型
71-89㎡2-3房,113-128㎡叠加
交 通
S7沪崇高速
周 边
上海外国语大学附属宝山双语学校、上坤上街购物中心、宝山罗店医院、美兰湖妇产科医院等
扫描上方二维码进行官方线上预约通道
甘经理:18800305881




