“
#最新消息#
徐汇·中环 纯新盘
【上海地产长桥项目】即将入市
将推约87-158㎡3-4房
效果图&网传户型图发布
识别二维码
进入“群”看房通道
案场销售会第一时间与您联系
01
楼盘信息
上海地产长桥项目位于徐汇长桥板块,项目总用地面积42327平方米,分为北块住宅用地和南块养老用地,该项目于2013年被列入上海市旧区改造范围。
项目将通过北块商品住宅及南块高端养老的联动,兼顾社会、经济和环境效益,打造覆盖全生命周期的宜居宜养新居区。
2020年10-12月,长桥地块项目公司上海星汇置业有限公司接连公布3条招投标信息,一条12月22日的最新信息显示,上海天华建筑设计有限公司已中标。
招标文件显示,长桥住宅项目位于上海市徐汇区长桥街道395街坊,四至范围:东邻14号地块,南靠07C地块、西侧为长桥八村、北近罗秀路。
这个住宅项目的用地面积34327.2㎡,总建筑面积是121206㎡,地上建筑面积约为76206㎡,简单算了一下容积率大约在2.2左右,中小户型,那么上车门槛就不会很高。
项目住宅建筑总面积68162.38㎡,其中保障房面积3430㎡,中小套型建筑面积54732.39㎡占住宅总面积80%。
02
推售信息
据了解,该项目共有8栋住宅,其中2栋7层、6栋17层,总计将提供商品房615套,主力产品有建面约85-168㎡3-4房。
【外立面效果图】
全套户型图如下
【87㎡3房2厅1卫(68套)】
【98㎡3房2厅2卫(463套)】
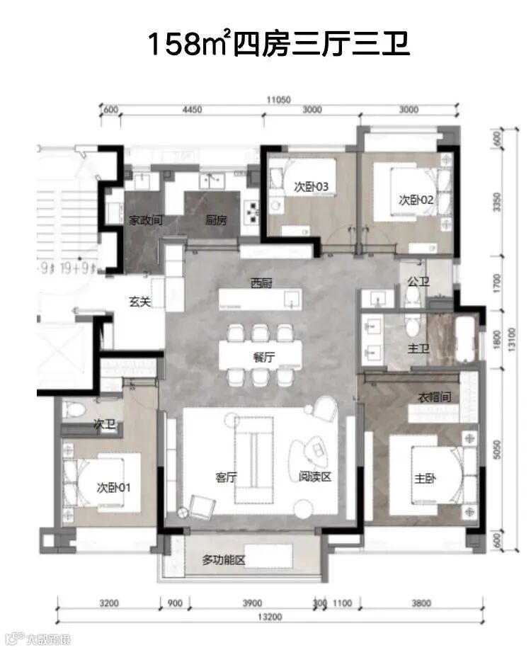
【158㎡4房3厅3卫(84套)】
03
周边配套
徐汇区长桥板块,处于徐汇滨江和闵行梅陇中间。而长桥项目属于板块核心,周边生态环境优越,南侧就是淀浦河,向北1.5公里的上海植物园是备受欢迎的游览胜地。长桥板块居住区众多,生活氛围浓厚,配套也很成熟。
教育资源尤其密集。项目北面就是逸夫小学,周边还有上海体育职业学院附属小学、上海实验学校附属小学、徐汇区教师进修学院附属实验中学、上海小学、上海中学、位育中学、华育中学等;
同时,交通也十分便利。项目距离中环不到1公里,西面700m轨交15号线;自驾方面,项目邻近中环后,距离吴中路及外环直线距离1公里,距离虹梅南路、沪闵高架路2公里。
商业配套近距离直享。项目周边有传统沿街商铺,3公里内有凌云壹街坊和徐汇梅陇购物中心。另外,距离南方商城和徐家汇商圈等大型商业中心约有4-6公里,开车半小时内可到达。
凌云壹街坊
另外,周边还有完善医疗资源。大华医院、上海海工医院、长桥地段医院等医疗资源,为健康保驾护航。
本文由《沪房新传播》团队整理
更多资讯请关注公众号获取
上海购房政策
点击图片了解详情
热盘推荐
识别二维码
进入“群”看房通道
案场销售会第一时间与您联系
媒体矩阵
觉得有用的话,记得“分享·收藏·点赞·在看”哦!













