“
#最新消息#
虹口·内环内 纯新盘
【祥生·天境】即将入市
将推约90-320㎡2-5房
效果图&户型图发布
识别二维码
进入“【祥生·天境】”看房通道
案场销售会第一时间与您联系
01
楼盘信息
祥生·天境总建筑面积约30余万平方米,其中地上规划建面约17万平方米,地下规划建面约11万平方米。项目分为两个地块hk301C-01、hk301D-01,用地功能为三类住宅、商业及商业办公,其中三类住宅占比≤60%、商业+商办占比≥40%。
【最新效果图】
在社区上,两个地块都是围合式布局,左边地块6栋楼,右边地块3栋楼,社区中心设置中央景观,依旧符合高端豪宅社区的路数。
02
推售信息
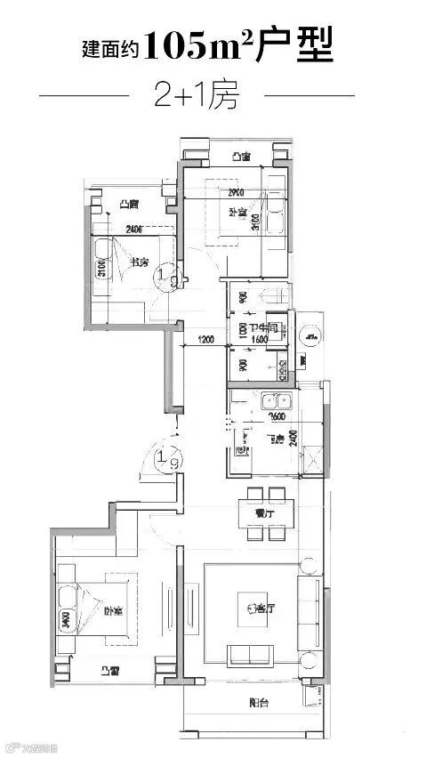
据悉,祥生·天境 将推约90-320㎡的2-5房,共计586套房源!主力户型包括:建面约90㎡的2房、约105㎡的2+1房、约130㎡、140㎡左右的3房、约160㎡、180㎡的4房、约320㎡的5+1房。
全套户型图如下
03
周边配套
祥生·天境 坐落于直线距离4、10号线双轨交汇的海伦路地铁站约200米处,是典型的“轨交盘”。这也为项目定下了高流量的大基调,“内环内”+“轨交”。
当下,随着生活发展,区域板块的边界不断被打破,人们日常生活的出行变得越来越便利,但有轨交的楼盘,依旧很吃香。
因为城市间的连通虽然无障碍,但高效依旧很重要,而有轨交的楼盘,无疑能够让购房者的生活变得更高效。尤其是内环内,核心地段内+轨交,就是楼市中“闪亮星星”。
祥生·天境 与海伦路仅约200米,未来3站可到南京东路、2站到上海站,5站可达世纪大道,十余分钟内外滩、浦东核心、北外滩,都可快速连通,坐享城市核心资源。不仅如此,项目周边还有规划中的19号线,未来可以实现三轨交汇。
而另一面,项目内环内核心地带,周边优质生活资源丰富,项目毗邻四川北路商圈、虹口龙之梦,当然这不是最重要的,因为项目本身就是TOD,自带商业和办公,出门即繁华。
同时,教育上,周边教育资源丰富,分别有虹口区第二中心小学、继光中学、华东师大一附中等优质学校;
医疗上,第四人民医院、第一人民医院可以为健康保驾护航。并且有四川北路公园,爱思儿童公园等生态资源。
本文由《沪房新传播》团队整理
更多资讯请关注公众号获取
上海购房政策
点击图片了解详情
热盘推荐
识别二维码
进入“【祥生·天境】”看房通道
案场销售会第一时间与您联系
识别二维码
进入“群”看房通道
案场销售会第一时间与您联系
媒体矩阵
觉得有用的话,记得“分享·收藏·点赞·在看”哦!













