大数跨境
0
0

售楼处&样板间已开放!松江·新城 “双轨交”新盘【中骏璟荟】即将入市!全套户型发布!

售楼处&样板间已开放!松江·新城 “双轨交”新盘【中骏璟荟】即将入市!全套户型发布! 沪房新传播
2022-02-08
1
导读:附看房报名通道


#最新消息#

松江·新城 “双轨交”新盘

【中骏·璟荟】即将入市

将推约88-121㎡3-4房

房地联动价58130元/㎡

共计517套房源

售楼处&样板间已开放!

展厅现场展示



中骏·璟荟 座落在松江文脉主轴广富林路,与南面7大学府为邻,近染文墨书香。东临泽林路,距离松江印象城步行约500米。北面为银泽路,临近自然河系。西面是林源路。



识别二维码 

进入“【中骏璟荟】”看房通道 

案场销售会第一时间与您联系


01

基本信息  

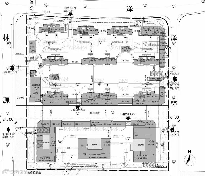
中骏·璟荟 占地约4.7万方,地上建筑面积约10.3万方,容积率2.2,绿化率35%。其中住宅占比50%、商业办公15%、办公占比35%。



整个项目规划打造成为松江首个高端复合活力社区。南地块打造3幢高端商务办公楼,打造为广富林路上的精致地标建筑。



北地块由11幢新亚洲封面形象的住宅组成。东西两排住宅各17层小高层,东北角楼幢为10层保障房,中间是2幢8层高的精致洋房。小区主大门设置在东面泽林路上。小区共计住户553户,其中可售户数517户。

社区内楼宇间隔非常大,保障了所有楼幢的采光和景观视野。在南北地块中间,我们和相邻项目地块均按照政府重点规划方向,打造了一条高端精致复合活力内街。



未来这条内街将与印象城商业一起打造成shoppingmall➕open block内外兼修的大型商业综合模式。未来生活实现从印象城一路购物到家的新体验。

总而言之,中骏璟荟不仅仅是为业主提供一处居所,更是为业主打造家的生活方式,为家庭里的每个成员打造专属于他们的生活娱乐空间,专注业主生活上每一处细节的感动,打造品质生活,让幸福触手可及。

02

推售信息  

中骏·璟荟 将推出洋房和高层产品,洋房一梯两户,高层两梯四户。


洋房|效果图


高层|效果图


产品面积段约88-121㎡3-4房,主力户型有建面约88㎡3房2厅1卫、98㎡3房2厅2卫、121㎡4房2厅2卫。



全套户型图发布

约88㎡ 3房2厅1卫


约98㎡ 3房2厅2卫


约121㎡ 4房2厅2卫


项目装修交付,包括新风、多联机式中央空调、地暖、厨房四件套等,室内层高3米,拥有更宽敞的居住空间,给予业主更舒适的居住体验。

03

周边配套  

中骏璟荟有相对完善的配套,而且有9号线+有轨电车+松江南站,能快速接驳漕河泾、徐家汇等市区商圈!



交通方面,适合自驾出行,临近嘉松南路、沪松公路、沪昆高速等干道;距9号线松江大学城站直线距离约1.3公里。



商业方面,地块东侧在建项目为印象城购物中心,地块再向东直线距离约2公里则是松江万达广场;附近还有五龙商业广场、马利来广场等,基本可以满足日常生活所需。



教育方面,附近有松江中山第二幼儿园、松江中山二小等学校。另外,地块周边还有一所上外附中松江云间学校在建。



医疗方面,周边有上海第一人民医院(南院),为居民的健康提供有力的医疗保障。


本文由《沪房新传播》团队整理

更多资讯请关注公众号获取


上海购房政策


点击图片了解详情


热盘推荐


识别二维码 

进入“【中骏璟荟】”看房通道 

案场销售会第一时间与您联系

识别二维码 

进入“”看房通道 

案场销售会第一时间与您联系


媒体矩阵

觉得有用的话,记得“分享·收藏·点赞·在看”哦!

【声明】内容源于网络
0
0
沪房新传播
上海买房必备的公众号!上海新房or二手房专业服务平台,为您提供新房取证、开盘信息,专业解答您新房积分计算、购房资质、税费贷款等购房问题,让您买房更明白更省钱!团队boss( 甘经理 18800305881)
内容 5072
粉丝 0
沪房新传播 上海买房必备的公众号!上海新房or二手房专业服务平台,为您提供新房取证、开盘信息,专业解答您新房积分计算、购房资质、税费贷款等购房问题,让您买房更明白更省钱!团队boss( 甘经理 18800305881)
总阅读3.5k
粉丝0
内容5.1k