“
#最新消息#
静安·内环内 苏河畔 全新盘
【华发仁恒·苏河世纪】等待入市
将推约99-238㎡3-5房
约340套房源
最新户型图抢先看
现场施工照片曝光
「华发仁恒·苏河世纪各户型分布图」
网传户型图↓↓↓(以开发商最终公布为准)
效果图展示(具体以开发商实际发布为准)
识别二维码
进入“【华发仁恒·苏河世纪】”看房通道
案场销售会第一时间与您联系
01
地块信息
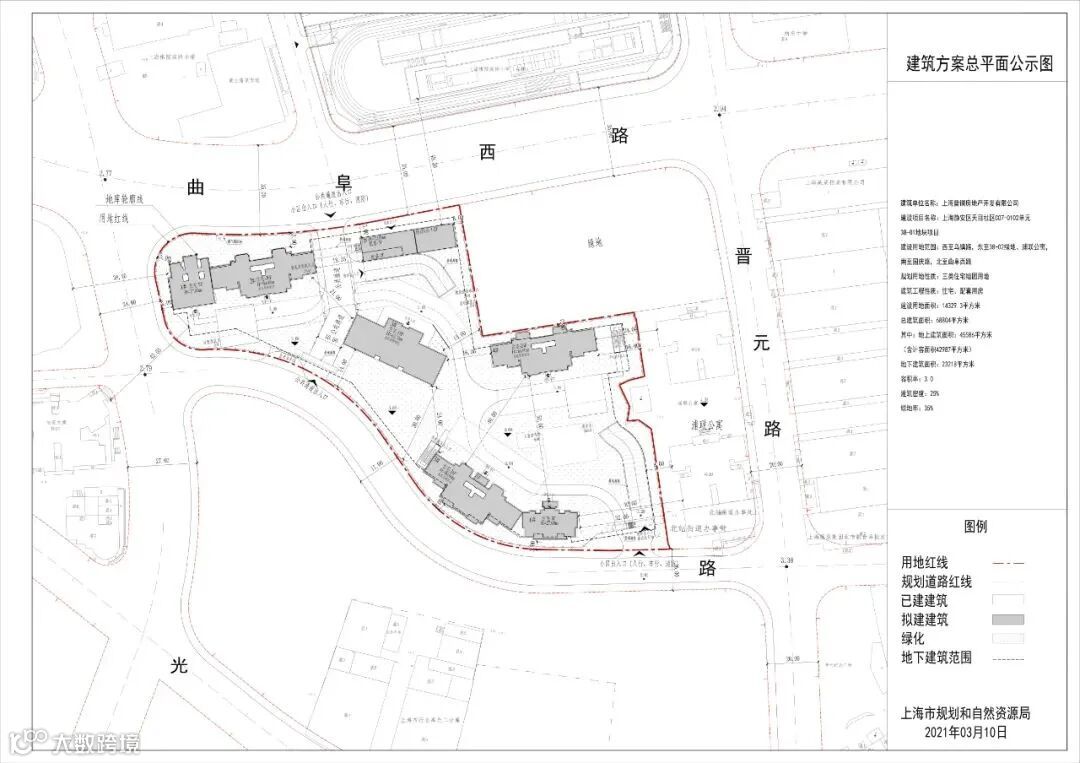
2020年10月,四行仓库旁,华发&仁恒以总价超42亿拿下静安区天目社区C070102单元38-01、39-01商住办综合体地块!成交楼面价52833.79元/㎡!溢价率1.25%!
从地图上就可以看出,项目周边3条地铁线环绕,1、12、8号线,而且距离最近的8/12号线曲阜路站仅约300米!且与大名鼎鼎的四行仓库仅一路之隔。建面约8万方的商住办综合体+约300米轨交枢纽,这在内环内可以说相当稀少!
该项目的设计方案早已公示,项目规划建设新增6栋住宅。其中1#9F,2、4、5#26F,3#19F,6#8F,项目业态较为丰富,涵盖商住办和文化用地以及一个4000方的派出所。
具体参数如下:
地块用途:住宅、办公、文化、商业
地块面积:2.83万㎡
容积率:3.0
限高:40-80米
建筑面积:住宅部分约4.2万方,商业、文化及办公部分约3.6万方。
根据施工铭牌来看,项目预计明年年底竣工!目前正在建设中,来看最新的施工现场图。
02
周边配套
交通方面:距8/12号线曲阜路站直线距离约200米,一站可直达人民广场,向南跨越苏州河,有1号线新闸路站。此外,北侧还有北横通道,西侧有南北高架路,出行十分便利。
商业方面:项目距离静安大悦城直线距离约300m,静安大悦城是国家5星级购物中心,总体开发超过40万㎡,是静安苏河湾最大的商业综合体!
除此以外,大悦城北侧还将建起两个综合体,分别为珠江·安康苑和龙盛华兴新城,规划中包括大量的商业用地。
教育方面:项目周边有惠思顿高瞻幼儿园、上海音乐幼儿园、棋院实验小学、静安第三中学小学、向东中学。
医疗方面:静安区北站医院(二甲医院)、上海健桥医院、上海长征医院等都在项目周边!
生态方面:这里还有四行仓库以及苏州河景观带,以及交通公园、不夜城公园、九子公园等生态资源。
本文由《沪房新传播》团队整理
更多资讯请关注公众号获取
上海购房政策
点击图片了解详情
热盘推荐
识别二维码
进入“【华发仁恒·苏河世纪】”看房通道
案场销售会第一时间与您联系
识别二维码
进入“群”看房通道
案场销售会第一时间与您联系
媒体矩阵
觉得有用的话,记得“分享·收藏·点赞·在看”哦!













