“
#最新消息#
去年10月29日,上海土地市场公布第三批集中出让供地公告,其中,27幅商品宅地。据统计,其中14幅宅地已经完成规划公示,仍有13幅地块尚无动静。
2021年第三批已发布规划公示信息地块
上海第三批集中供地重点回顾:
上海第三批集中供地于2021年12月3日完成土拍。
此次共成交27宗涉宅用地,总成交金额约470亿元,其中9幅地块有溢价,18幅地块底价成交,总出让面积约156万平方米,整体溢价率为2.9%,无一流拍。
1、同前两次土拍对比,上海第三次集中供地竞拍虽然成交总金额最少,但由于此次供地全部位于中外环,因此起价更低。相较于其他城市,因无一宗地块流拍,整体走势平稳。
2、国企包括央企仍继续扛大旗:相较于第二批集中供地,国央企拿地占比进一步提高。本次仅大名城、恒都、大华、同润、龙信、香港兴业等民营企业有所斩获。具体房企方面表现看,招商蛇口拿下的浦东高行地块,不仅以45.29亿元成为第三批土拍总价地王,9.39%的溢价率也是本次最高。
3、从供地地块分布情况来看,此次7个中心城区无一块土地供应,五大新城是供应主力,未来新房市场供应有保证。特别是临港新城,但与此同时,其托底现象也较为明显,本次6幅临港地块全部零溢价成交。
总体看,在目前宏观政策的强调控下,土拍在价格上通过‘房地联动’的机制,对新房价格起到了明显的锚定作用。
因此,预计未来一段时间内,上海房产市场整体都将平稳运行。
截至目前,已有14幅地块公示规划方案,其中有大虹桥、御桥、高行、华漕等热门板块,这些楼盘最快或在今年下半年入市,有项目或于6月底入市!还有不少项目的房源供应量超过千套。想在2022年买房的朋友们务必关注下。
我们来看一些热门板块。
建发宝山顾村项目
宝山区顾村大型居住社区BSP0-0103单元0302-02地块由建发摘得,当时该地块有中华企业、大华、建发三家报名竞价。
地块房地联动价为4.75万/平,与此前新房价格基本持平。
地块靠近7号线潘广路,属于顾村新顾城板块,配套有龙湖宝山天街,顾村板块的配套十分成熟,商业丰富,有华山医院,顾村公园,生活氛围浓厚。
根据公示的地块设计方案,这里将由12栋18层高层组成,含1栋保障房。
规划示意图
经济技术指标
港城开发御桥项目
该项目由港城开发竞得,为浦东新区北蔡御桥社区单元的商住办打包地块,房地联动价62500元/平,距离11、16号线罗山路站仅约600多米。
根据公开文件,该项目住宅套数下限合计2352套,房源比较充足。全装修比例100%,中小套比例不低于70%,保障房5%,无自持住宅要求。
规划显示,NH021a-06地块、NH021b-09地块为商住用地,NH021b-05地块为租赁用地,NH021b-13地块为科研用地。出让地块西侧为浦东新区民办万科学校。
地块分布图
御桥地块实拍
南山&招商南翔项目
招商&南山联合体竞得嘉定区南翔镇JDC2-0101单元06A-01A、07A-02A地块,新房指导价5.7万/平。
近日,项目传来最新消息,网传项目即将推出建面约100-130平的小高层,装修交付,最快预计6月底入市!
南山&招商南翔项目效果图
根据早期公示的设计方案显示:项目拟建14栋住宅、2栋配套用房。
东面07A-02A地块示意图
其中,东地块规划7幢住宅,总户数:585户,机动车停车位:575辆,地块容积率2.3。
大虹桥今年的供应量会很大,去年第三批出让供地中,位于徐泾老镇的两幅地块分别被龙信和中建方程拿下,而西虹桥蟠龙路西侧45-06地块则被象屿&招商&江苏师山联合体拿下。
当时,龙信以6亿底价竞得,房地联动价6万/平,根据公示,项目将打造3幢10-13层的小高层住宅和1幢7层的老年文化活动活动室(1-3F)、保障房(4-7F)。根据出让地块要求,项目以中小套型为主。
规划示意图
而中建方程项目的规划显示,该地块拟建4幢10-13层的小高层住宅和1幢2层的社区生活服务用房。
规划示意图
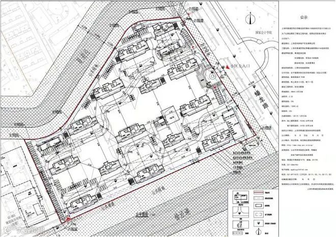
象屿&招商&江苏师山蟠龙路项目
根据项目最新公示的设计方案,项目将建设14栋楼高17层的高层住宅,预计将于2022年内入市,房地联动价6万/平。地块体量大,预计提供1005套住宅。
规划示意图
项目地块位于大虹桥徐泾蟠龙路近沪青平公路,南北两侧临河,东侧正对上海国家会计学院,往北有崧泽高架,直线距离2号线延伸站蟠祥路仅数百米距离。
招商高行地块
备受关注的高行地块被招商拿下,房地联动价7.03万/平,提供1200套住宅。
项目位于森兰国际社区北侧,周边有6号线和21号线(在建)。周边的商业配套成熟,有花园城、森兰商都(盒马x会员)等商场。目前项目的案名已经公布:招商璀璨公馆,预计今年首开392套房源,其中主力户型105平有336套。
高地块位置图
从规划方案来看, 招商璀璨公馆规划建造18栋14-15层高层住宅,约1008套住宅,产品面积约89-140平,项目在建中,预计三季度入市,预计推出建面约89-140平3-4房。
项目规划示意图
大名城联合体临港项目
大名城陕建联合体竞得自贸区临港新片区FXG1-0001单元E01A街坊E01A-05地块。
地块位于临港蓝湾,靠近蓝湾天地商业中心,房地联动价为2.5万/平,总体来看算是全市房价的洼地。
根据项目公示信息,这里将打造10栋17-20层的高层住宅、2栋21层的保障房以及1栋2层的商业配套用房,供应至少1026套住宅。
规划过程稿
临港城投蓝湾项目
临港城投以底价拿下蓝湾3幅地块,包括2幅住宅和1幅商业。
2022年2月11日,临港新片区管委会官方发布公示:《自贸区临港新片区04FX-0002单元D07-01、E04-02地块新建工程设计方案》,临港城投的这2幅住宅设计方案新鲜出炉。
图源公众号临港大城小事
D07-01地块和E04-02地块占地面积总计8.22万平方米,总建筑面积达29.58万平方米。
其中D07-01地块包含至少1432套房,E04-02地块至少505套房。商业方面,E04-02地块北侧就是一处商业用地(临港城投)。
大名城青浦重固项目
大名城竞得该项目,新房指导价3.48万/平。
重固板块整体的发展比较慢,不过未来有轨交示范区线。
公示规划方案显示,项目拟建最高16层的住宅,提供至少844套房源。全装修面积100%,中小套比例不低于60%,配建5%保障房。
项目规划图
经济技术指标
大华华漕项目
项目规划示意图
奉贤城建奉贤新城项目
奉贤城投成功竞拍获得奉贤区奉贤新城21单元E09E-01区域地块建设用地使用权,房地联动价38300元/平。
该地块位于5号线奉浦大道站旁,周边有万达广场在建中,包括约7万方商业mall、5万方商业街。新华医院奉贤院区项目选址于奉浦大道站旁,预计2024年竣工。
地块规划示意图
拟新建2幢20层高层住宅,2幢18层高层住宅,3幢14层高层住宅,1幢13层高层住宅,1幢3层公共服务设施,2幢1层变电站,1幢1层垃圾房,一座2层地下机动车库以及围墙。
注:以上示意图来源于各区规土局或公开文件
本文由《沪房新传播》团队整理
更多资讯请关注公众号获取
上海购房政策
点击图片了解详情
热盘推荐
识别二维码
进入“群”看房通道
案场销售会第一时间与您联系
媒体矩阵
觉得有用的话,记得“分享·收藏·点赞·在看”哦!













