大数跨境
0
0

联动价6万元/㎡!大虹桥主城区纯新盘【蟠龙府】等待入市!将推约81-141㎡2-4房

联动价6万元/㎡!大虹桥主城区纯新盘【蟠龙府】等待入市!将推约81-141㎡2-4房 沪房新传播
2022-04-18
2
导读:共计940房源


#最新消息#

大虹桥主城区 纯新盘

【蟠龙府】 等待入市

将推约81-141㎡2-4房

共计940房源

联动价6万元/㎡

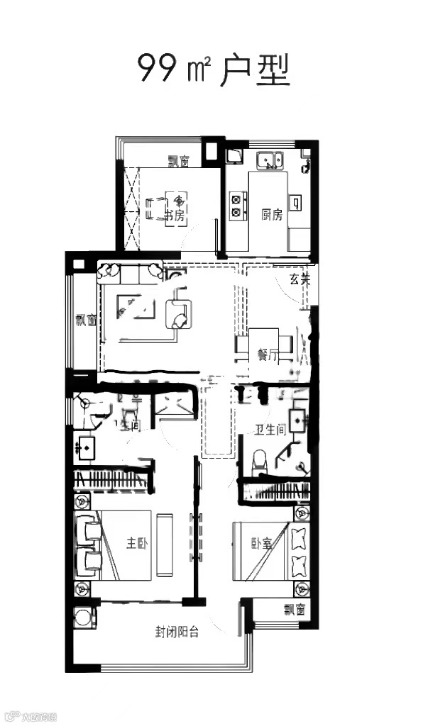
户型图抢先看

国家会展中心|效果图


识别二维码 

进入“【蟠龙府】”看房通道 

案场销售会第一时间与您联系


01

基本信息  

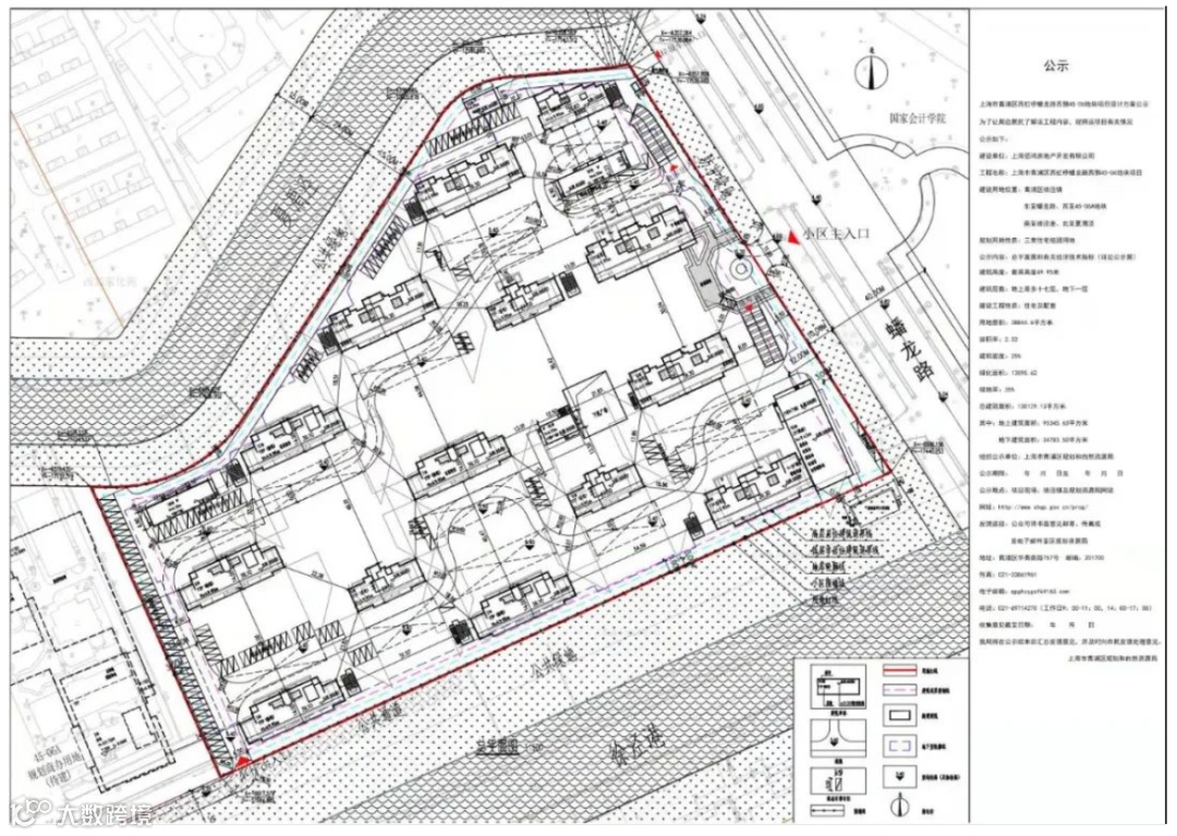
2021年12月,象屿招商江苏海鸿联合体以总价33.56亿元竞得上海市青浦区西虹桥蟠龙路西侧45-06地块。地块出让面积3.88万㎡,容积率2.33,楼面价3.7万/㎡。房地联动价60000元/m²

根据项目最新公示的设计方案,项目将建设14栋楼高17层的高层住宅,预计将于2022年内入市,房地联动价6万/㎡。精装修交付,未来可至少供应1005套住宅。

项目地块位于大虹桥徐泾蟠龙路近沪青平公路,南北两侧临河,东侧正对上海国家会计学院,往西靠近沈海高速、往北有崧泽高架,直线距离17号线蟠龙路站约1.5公里。最新规划显示,2号线将西延伸一站至蟠祥路站,未来该地块及周边的项目都将从中受益。

02

推售信息  

据悉,「象屿招商江苏海鸿徐泾项目」定名「蟠龙府」,将推约81-141㎡2-4房,精装交付房地联动价:6万/㎡!

「网传全套户型图如下」

(设计稿件仅供参考,以开发商正式公示为准)

「81㎡2房2厅1卫」

「约99㎡3房2厅2卫」

「104㎡3房2厅2卫」

「约141㎡4房2厅2卫」

03

周边配套  

交通方面:该地块位于大虹桥的核心区,可享受虹桥枢纽优越的交通配套。地块北邻国家会计学院,与国家会展中心距离仅1.6公里。距离2号线徐泾东站约1.6公里,17号线诸光路站2公里。

据2号线西延伸线的规划显示,徐泾东下一站将会是蟠祥路站,与两地块在步行即达的范围之内,未来将会给两个地块提供不小的加持。

商业方面:地块对面是西班牙风情街-夏都小镇,可满足日常需求,周边还有永业购物中心,虹桥世界中心,西虹桥百老汇,龙湖虹桥天街,虹桥绿谷峡谷商业广场,虹桥天地-购物中心等。

教育方面:项目附近有徐泾中心小学、徐泾中学、徐泾小学等学校,除此之外还有多所私立学校。

医疗方面:有远大健康城,复旦大学附属华山医院西院、新虹桥国际医学中心等。

本文由《沪房新传播》团队整理

更多资讯请关注公众号获取


上海购房政策


点击图片了解详情


热盘推荐


识别二维码 

进入“【蟠龙府】”看房通道 

案场销售会第一时间与您联系

识别二维码 

进入“”看房通道 

案场销售会第一时间与您联系


媒体矩阵

觉得有用的话,记得“分享·收藏·点赞·在看”哦!

【声明】内容源于网络
0
0
沪房新传播
上海买房必备的公众号!上海新房or二手房专业服务平台,为您提供新房取证、开盘信息,专业解答您新房积分计算、购房资质、税费贷款等购房问题,让您买房更明白更省钱!团队boss( 甘经理 18800305881)
内容 5072
粉丝 0
沪房新传播 上海买房必备的公众号!上海新房or二手房专业服务平台,为您提供新房取证、开盘信息,专业解答您新房积分计算、购房资质、税费贷款等购房问题,让您买房更明白更省钱!团队boss( 甘经理 18800305881)
总阅读4.8k
粉丝0
内容5.1k