“
最新消息
上海【蟠龙天地】三期
已开启验资!
将推建面约90-195㎡3-5房洋房
还有合院产品
共538套房源
上期均价6.15万/㎡
毋庸置疑,虹桥主城区的上海蟠龙天地是当下上海炙手可热的楼盘。
2020年10月,上海蟠龙天地首开推出948套房源,摇号人数达到3700多组,当日售罄!
2021年8月,上海蟠龙天地二期推出741套房源,入围分高达81.23分(基础分60分+193个社保月*社保系数)开盘当日售罄。
2022年,是时候期待蟠龙天地三期了!
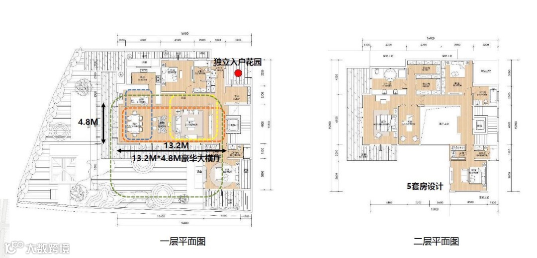
全套户型图
(以开发商公布为准)
此次户型图较之前部分户型面积有更新,E1从125㎡调整到130㎡,F1从190㎡调整到185㎡。
洋房效果图
上期约99平户型高清样板间实景图(供参考)
上下滑动查看🔼
合院产品
群友爆料户型图和效果图过程稿如下(仅供参考,以开发商公示为准):
识别二维码
进入“【蟠龙天地】三期”看房通道
案场销售会第一时间与您联系
蟠龙三期目前案名暂定为蟠龙景园,全部是洋房产品,无论是得房率还是舒适度都是比一期、二期更优!
目前整体洋房产品为建面约90~195㎡的3房、4房、5房产品,今年有望入市,三期也是虹桥主城区罕见的低密度+紧邻地铁产品!
01
周边配套完善
位于上海虹桥主城区,周边的配套设施非常完善,且还在不断完善中,有着极大的发展空间。
交通配套:距离17号线蟠龙路站约500m,到国家会展中心只有1站、虹桥火车站只有2站。然后换乘2号线可直达传统中央商务区静安寺、人民广场、陆家嘴等地!
区位图
而且就在最近,2号线西延的最新规划,让我们看到虹桥核心区未来更加便捷的公共交通!
自驾方面,崧泽高架西延伸工程加快建设,预计2021年底基本完工,便捷连通虹桥主城与长三角一体化示范区。
教育配套:500m内有十六年一贯制学校青浦世界外国语学校和上海英国学校,南边1.5km处有徐泾中学,北边1.8km处有上海美国学校。
世外实景图
世外幼儿园实景图
项目附近还有西华国际学校、德国学校、法国学校、美国学校以及宋庆龄学校等稀缺教育资源。
商娱配套:
约140万方文化商业综合体——首位SHOWAY入驻,将涵盖奥特莱斯、剧场群等业态;
约23万平米文化艺术综合体——兰韵文化中心建设加速,以国粹青花瓷神韵展现东方典雅之美。
早已开业的虹桥天地、龙湖天街、绿地虹桥中心等高能级商办完全能满足业主各能级消费需求。
医疗配套:北边2.5km处是三甲医院复旦大学附属华山医院(西院)、虹桥医学中心等。
上海新虹桥国际医学中心
02
生态资源丰富
瑞安打造蟠龙天地时的城市设想,与内环内170万方的新天地有共通之处,即,要在城市热土——大虹桥主城上,造一座宜居之乡。
蟠龙云庭位于整个国际住区的核心位置,享三面环绿、三面环水的景观视野。就在上海蟠龙天地一期一路之隔之处。👇
蟠龙云庭位置示意图
上海蟠龙天地是涵盖公园绿地+商业+住宅的超大规模综合体。
尤其是公园部分,规划足足约23万方,这是什么概念?
沙盘实景图👇
为了还原江南的自然场域,上海蟠龙天地依自然地形和水文条件,构筑了23万方魅力与活力并存、绿意与艺术共舞的蟠龙公园。
项目以2.5公里环形主步道——蟠龙道,串起八大主题公园,绘就了诗情画意的“新蟠龙十景,打造有态度的城市生态哲学”。
蟠龙天地绿地效果图
包括赛事级棒球、篮球场,打造出大型市民体育中心;丰富的艺术活动,艺术节、绿地音乐节…彻底满足社区内、周边居者景观、艺术、运动的一切需求!
项目效果图,具体以实际交付为准
还有约5万㎡蟠龙天地商业,在商业的打造中,上海蟠龙天地打破千镇一面的传统古镇商业模式,项目复原十字街巷;
蟠龙天地十字街效果
引入众多的创新业态,形成了以古镇商业为核心,集餐饮、文化、娱乐、消费为一体的“公园里的江南新天地”。
蟠龙天地商业街区效果图
“游船逛蟠龙”是蟠龙天地不得不提的一大特色项目!
晚上,乘船漫游,浏览滨水街市的唯美夜色,还有浓浓烟火气与悠闲舒适并存的水上市集,精彩的水上表演...
可以预见,这片江南烟雨里的摩登商业,必然会成为大虹桥主城区靓丽的风景线和城市精英们一致追捧的网红打卡地。
再来介绍社区内部规划:
作为整个项目的核心,上海蟠龙天地住宅占地多达25万方,体量非常大,仅一、二期高层就有1600+组住户,每期独立而居。
二期蟠龙云庭社区效果图
约25万㎡的蟠龙国际住区采用新中式建筑美学和江南经典造园手法。
以“一轴、四庭、六院”东方归家礼序,打造意境雅致、曲径通幽,延续千年蟠龙的园林文化,重塑江南的心灵诗意栖居。
依托曲水环绕这一得天独厚的自然资源,引水入园;
项目100%保留了蟠龙港、南墅泾等天然河道的走向,并打造全新的蟠龙市河,构建出繁华大都会深处的滨水公园住区,让人于“江南新天地”的环抱中感受“曲水萦居”的江南古镇生活。
【上海蟠龙天地】包括约23万㎡蟠龙公园、约5万㎡蟠龙天地商业、约25万㎡蟠龙国际住区。
无论是城市文脉、国际视野、生态住区,商务休闲等因素都能在蟠龙天地中看见。既融合了蟠龙古镇的典雅,夹杂着现代化气息,又以大虹桥为依托,面向国际!
本文由《沪房新传播》团队整理
更多资讯请关注公众号获取
上海购房政策
点击图片了解详情
热盘推荐
识别二维码
进入“【蟠龙天地】三期”看房通道
案场销售会第一时间与您联系
识别二维码
进入“群”看房通道
案场销售会第一时间与您联系
媒体矩阵
觉得有用的话,记得“分享·收藏·点赞·在看”哦!













