“
#最新消息#
松江·新城 “双轨交”新盘
【中骏·璟荟】收官作
已开启验资
将推约91-125㎡ 3-4房
共计156套房源
上期58130元/㎡
中骏·璟荟二期 验资要求:
1、所有购房人身份证正反面(未成年小孩可提供出生证明或身份证)
2、认购人的户口本全本
3、认购人婚姻证明(单身可忽略此条)结婚证或离婚证+离婚协议或法院判决书(若有)
4、资金证明截图(基金、股票、银行卡余额皆可),首套客户180万,二套客户360万,不设上限。
5、名下有房产的需提供房产证关键页
6、个人购房积分
项目展厅
识别二维码
进入“【中骏璟荟】”看房通道
案场销售会第一时间与您联系
中骏·璟荟 座落在松江文脉主轴广富林路,与南面7大学府为邻,近染文墨书香。东临泽林路,距离松江印象城步行约500米。北面为银泽路,临近自然河系。西面是林源路。
01
基本信息
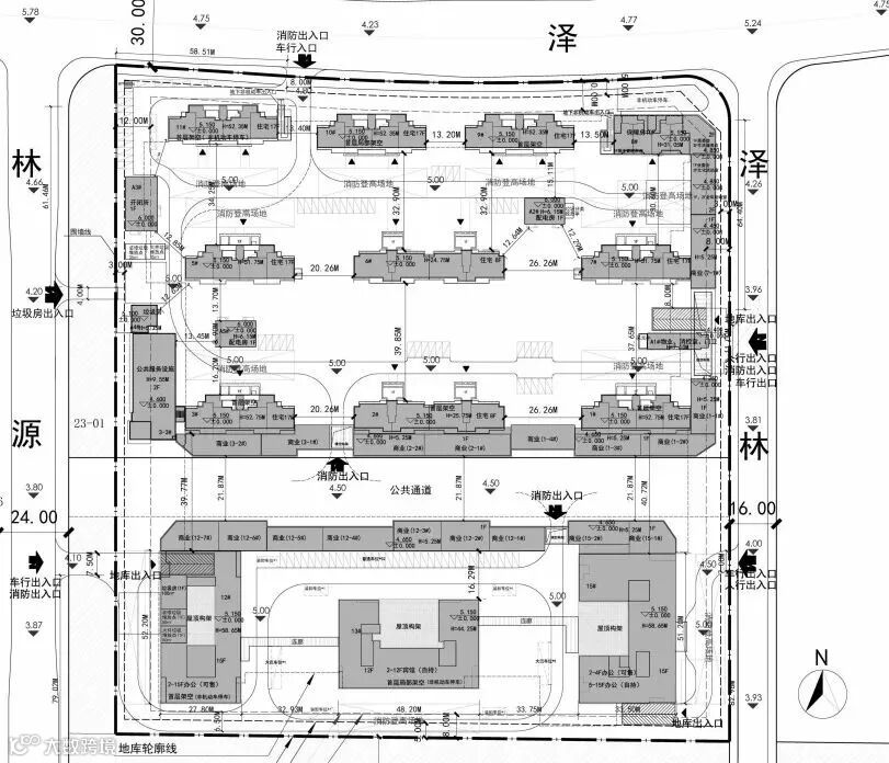
中骏·璟荟 占地约4.7万方,地上建筑面积约10.3万方,容积率2.2,绿化率35%。其中住宅占比50%、商业办公15%、办公占比35%。
整个项目规划打造成为松江首个高端复合活力社区。南地块打造3幢高端商务办公楼,打造为广富林路上的精致地标建筑。
北地块由11幢新亚洲封面形象的住宅组成。东西两排住宅各17层小高层,东北角楼幢为10层保障房,中间是2幢8层高的精致洋房。小区主大门设置在东面泽林路上。
社区内楼宇间隔非常大,保障了所有楼幢的采光和景观视野。
未来这条内街将与印象城商业一起打造成shoppingmall➕open block内外兼修的大型商业综合模式。未来生活实现从印象城一路购物到家的新体验。
总而言之,中骏璟荟不仅仅是为业主提供一处居所,更是为业主打造家的生活方式,为家庭里的每个成员打造专属于他们的生活娱乐空间,专注业主生活上每一处细节的感动,打造品质生活,让幸福触手可及。
02
推售信息
【中骏·璟荟】收官作已开启验资,将推约91-125㎡ 3-4房,共计156套房源,上期58130元/㎡。
洋房|效果图
高层|效果图
全套户型图发布
我们先来看户型设计,以建筑面积约101㎡三房两厅两卫的样板间为例。
该户型南北通透,层高约3米,餐厅、客厅、阳台相互连通,保证了室内的采光充足。同时,还大大提升了空间的尺度感。
高层样板间实景图
南向的宽景大阳台,揽四季风景,业主摆上一套桌椅,在家就能晒晒太阳,感受下午茶的休闲。
高层样板间实景图
主卧采用套房的设计,保证生活尊贵感的同时也增加了私密性,让男女主人能在家拥有自己的一方天地。
主卧的飘窗不仅仅可以让业主抬头见景,也是可以成为赏景享受阳光的休憩之所。
高层样板间实景图
项目将过道空间和收纳空间相结合,独立的卫生间也可以让业主告别“卫生间早高峰”的尴尬。
高层样板间实景图
南向次卧与北向次卧均带有飘窗。这里可以是书房,让业主读书办公的需求得到满足;也可以是儿童房,成为孩子自己的“小天地”!
高层样板间实景图
作为一个备案均价约为58130元/㎡的项目,不仅配有新风、中央空调、地暖,同时厨房四件套也是一应俱全!这在同价位段的产品上是很少见的。
高层样板间实景图
与此同时,项目在很多地方也都做了人性化的设计,为业主生活带来方便。
智能门锁,让你告别忘带钥匙的烦恼;入户的玄关处设有收纳柜,给予业主归家仪式感的同时,也方便收纳杂物。
高层样板间实景图
高层样板间实景图
还有厨房配备了食物垃圾处理器以及凉霸,客厅配有仿大理石的电视背景墙,卫生间的台盆设有贴心的肥皂盒,就连阳台都为业主安装了洗衣机龙头和地漏。
高层样板间实景图
而建筑面积约125㎡4房2厅2卫洋房户型,在具有以上特性的同时,还多出一个房间功能性更强,居住的尺度也将更加舒适。
无论是三代同堂还是二宝之家,都能在这里拥有属于自己的天地。
洋房样板间实景图
洋房样板间实景图
洋房样板间实景图
洋房样板间实景图
洋房样板间实景图
03
周边配套
中骏璟荟有相对完善的配套,而且有9号线+有轨电车+松江南站,能快速接驳漕河泾、徐家汇等市区商圈!
交通方面,适合自驾出行,临近嘉松南路、沪松公路、沪昆高速等干道;距9号线松江大学城站直线距离约1.3公里。
商业方面,地块东侧在建项目为印象城购物中心,地块再向东直线距离约2公里则是松江万达广场;附近还有五龙商业广场、马利来广场等,基本可以满足日常生活所需。
教育方面,附近有松江中山第二幼儿园、松江中山二小等学校。另外,地块周边还有一所上外附中松江云间学校在建。
医疗方面,周边有上海第一人民医院(南院),为居民的健康提供有力的医疗保障。
本文由《沪房新传播》团队整理
更多资讯请关注公众号获取
上海购房政策
点击图片了解详情
热盘推荐
识别二维码
进入“【中骏璟荟】”看房通道
案场销售会第一时间与您联系
识别二维码
进入“群”看房通道
案场销售会第一时间与您联系
媒体矩阵
觉得有用的话,记得“分享·收藏·点赞·在看”哦!













