“
#最新消息#
嘉定·新城 全新盘
【万科嘉定新城项目】
设计方案公示
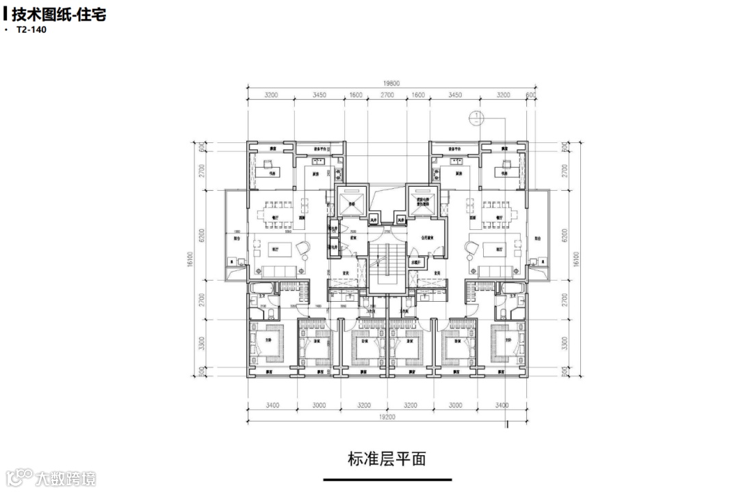
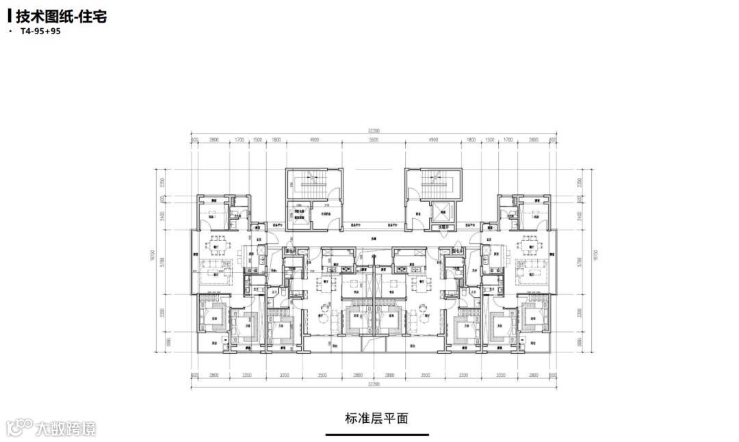
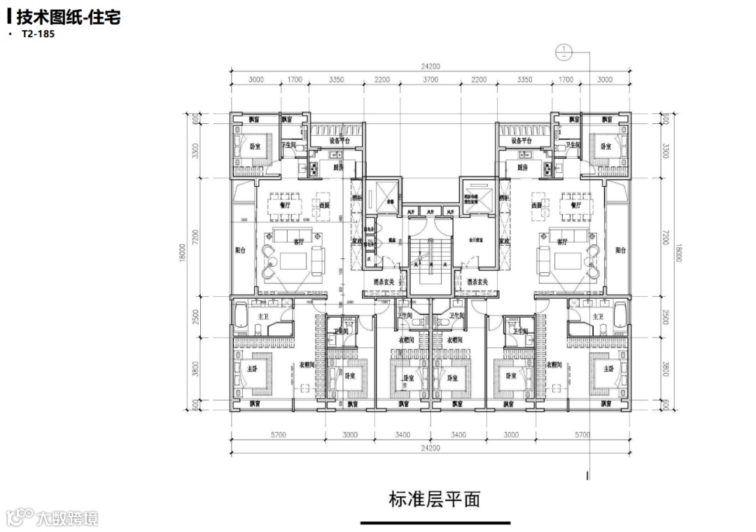
将推约95-185㎡3-4房
高清效果图发布
嘉定新城的万科嘉定新城项目是目前嘉定最受关注的综合体之一,距离11号线嘉定新城站仅约200米,贴着万达广场,北面就是瑞金北院,周边配套非常成熟。
规划地块面积19.45公顷,涵盖多种属性:住宅24.4万㎡、商业4.8万㎡、办公5.3万㎡。
具体范围东至依叶路、北至丁单路、南至双单路、西至云谷路。
据悉,万科嘉定新城项目,预计将推约95-185㎡3-4房。
「项目高清效果图」
本文由《沪房新传播》团队整理
更多资讯请关注公众号获取
上海购房政策
点击图片了解详情
热盘推荐
识别二维码
进入“群”看房通道
案场销售会第一时间与您联系
媒体矩阵
觉得有用的话,记得“分享·收藏·点赞·在看”哦!













