“
#最新消息#
杨浦·东外滩 全新盘
【杨浦城投·悦尚海】
预计1.8号认购
将推约81-115㎡2-3房
指导价108000元/㎡
识别二维码
进入“【杨浦城投·悦尚海】”看房通道
案场销售会第一时间与您联系
01
基本信息
【杨浦城投·悦尚海】位于杨浦东外滩板块,位于双阳路顺平路,与杨浦重点学校控二小学(分校)一街之隔。项目邻近12号线隆昌路站,2公里半径覆盖覆盖有东方渔人码头滨水景观带,宝龙旭辉广场、百联滨江等商业,新华医院、复旦大学附属妇科医院等三级甲等医院,杨浦公园、黄兴公园等自然氧吧。
项目所在双阳路串联陆家嘴路和长阳路城市主干道,通达内环线、中环线、大连路隧道等,便捷通达浦西浦东。作为杨浦城投2022年首要作品,项目以现代简约风格打造上海精致生活范本。
杨浦城投打造的杨浦定海社区B3-1地块(大桥街道118街坊)项目,案名正式对外公布:「杨浦城投·悦尚海」。
预计将推出建面约80-120㎡2-3房,房地联动价10.8万/m²,等待入市!
【杨浦城投·悦尚海】位处双阳路顺平路,总建面约3.7万方,其中可售住宅建面约1.8万。
项目以现代简约风格打造“小而美”的景致生活,为区域高知家庭量身定制约81-115㎡2-3房空间,注重品质的同时兼顾家庭成长。
因为项目是国企的,按照目前国企的风格,按照这个施工进度预计明年上半年,第1-2批次左右会入市。
地块回顾
示意图
地块名称:杨浦区定海社区B3-1地块(大桥街道118街坊)四至范围:东至明丰苑居住小区,南至B3-3地块,西至双阳路,北至顺平路出让面积:8760.2平方米容积率:2.5
出让详情:
本地块内中小套型住宅建筑面积不得低于该地块住宅总建筑面积的 70 %
计13510.4 平方米以上(中小套型住宅设计建设标准为:多层住宅建筑面积不大于90平方米、小高层住宅建筑面积不大于95平方米、高层住宅建筑面积不大于100平方米)
规划详情:
项目预计设住宅户数260户,其中商品房221户、公共租赁房39户,停车位246个。
根据公示,项目规划3幢楼,1#为11-18层的高层+小高层住宅,2#为18层的高层住宅,3#1-3层为菜场、3-5层为公共租赁用房。
02
周边配套
交通方面:
距离最近的地铁站为12号线隆昌路站,大约600m;距离8号线黄兴路站大约900米,同时还有内环高架路,出行非常方便。
商业方面:周边复旦软件创业园、城市概念等商用办公楼,基础设施可满足需求。
城市概念示意图
教育方面:周边有上海市控江中学、上海外国语大学附属双语学校。
上海市控江中学
医疗方面:周边有杨浦中心医院、杨浦公园可满足医疗和生态的需求。
03
推售信息
杨浦城投·悦尚海 位处双阳路顺平路,总建面约3.7万方,其中可售住宅建面约1.8万方。
项目以现代简约风格打造“小而美”的景致生活,为区域高知家庭量身定制约81-115㎡2-3房空间,注重品质的同时兼顾家庭成长。
杨浦城投·悦尚海 洞悉当代人居需求,深入研究健康与建筑的关系,于城市中心繁华处独辟静谧之地,以“超低能耗建筑”为上海内中环再添舒适静谧的人居环境。
项目将秉承健康、节能、舒适、智慧四大“IP”主题,为城市高知家庭规建宜居的舒适生活。
悦尚海采用高效节能外窗隔热系统,提升项目的保温、隔热、隔音效果,其外窗更是采用三层玻璃,加之阳台推拉门采用高性能中空玻璃,能够隔绝 90%工地噪音,更能减少30%的阳光直晒。
多重低碳创新系统保证了项目相较普通住宅而言,拥有了更加良好的保温效果以及气密性,其日常湿度以及家庭日用开支都能维持在较低水平。
社区最新效果图:
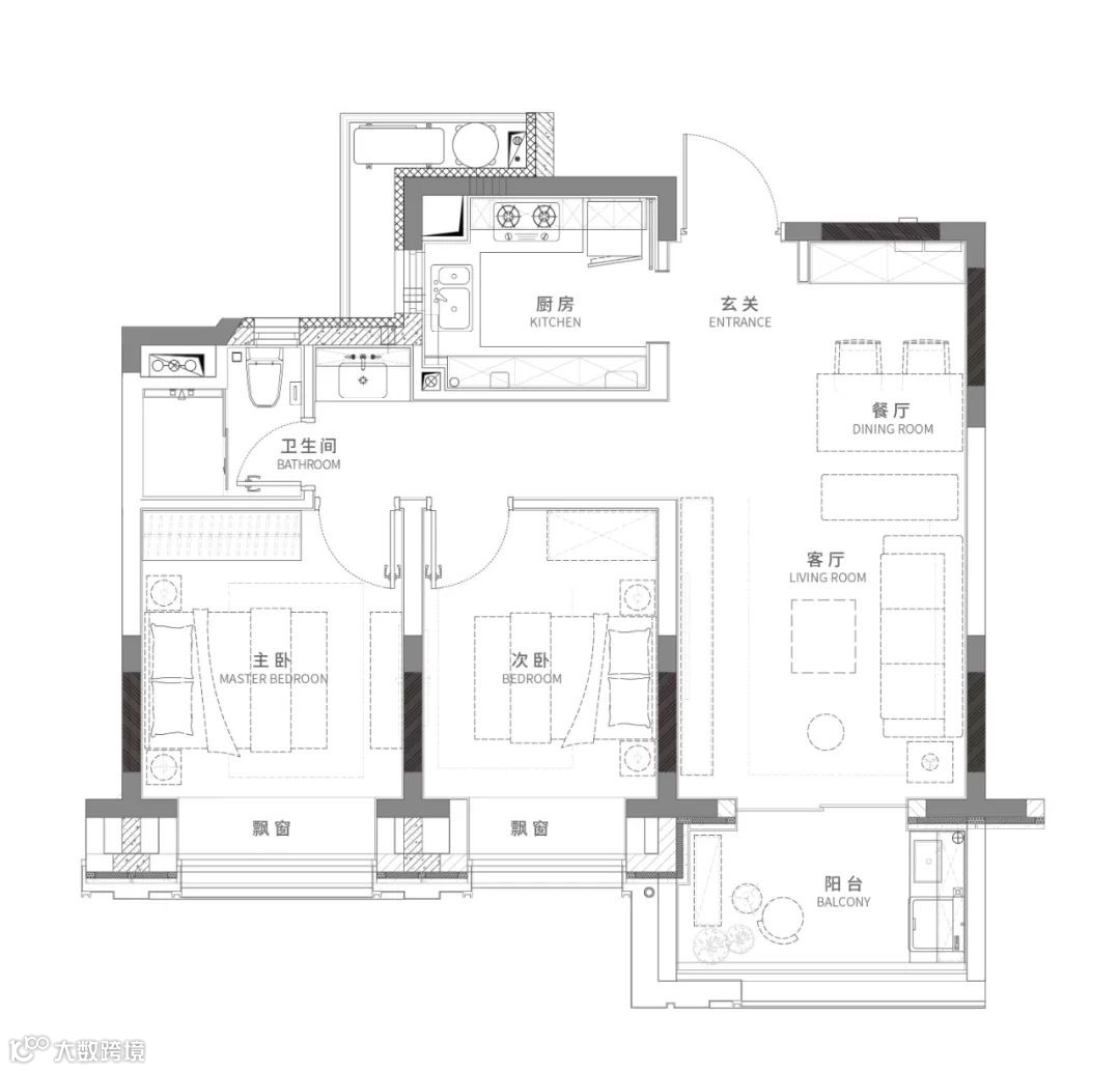
全套户型图如下:
(过程稿仅供参考,最终以开发商发布为准)
「约81㎡ 2房2厅1卫」
「约81㎡ 2房2厅1卫」
「约115㎡ 3房2厅2卫」
本文由【沪房新传播】团队创作
转载请声明出处
上海购房政策
点击图片了解详情
热盘推荐
识别二维码
进入“【杨浦城投·悦尚海】”看房通道
案场销售会第一时间与您联系
识别二维码
进入“群”看房通道
案场销售会第一时间与您联系
媒体矩阵
觉得有用的话,记得“分享·收藏·点赞·在看”哦!













