“
#最新消息#
黄浦·新天地 顶豪红盘
【翠湖天地六期】
设计方案首发
将推约165-500㎡超高层&别墅
最新户型图&效果图发布
识别二维码
进入“【翠湖天地六期】”看房通道
案场销售会第一时间与您联系
翠湖天地六期 就在翠湖五集东侧。规划范围:北至自忠路、南至复兴中路、东至西藏南路、西至吉安路。
值得关注的是,六期北侧就是备受期待的太平洋新天地商业中心项目,由中国太保寿险、瑞安房地产及永业集团联合开发,总开发体量达到39万平方米,也是新天地20年来最大的综合体开发项目,由一栋250米的地标级超甲级办公、两栋100米左右的超甲级办公及裙房商业组成。
对于新天地来说,250米的T1塔楼地标为区域的至高点,将会重塑整个新天地区域的天际线以及办公品质。
六期规划范围内地上经营性总建筑面积不超过99560平方米。其中:住宅地上总建筑面积不超过80942平方米。开发主体是瑞安房地产和永业集团。可以看到,产品有180米超高层、海派别墅、活力天地、历史独栋大宅以及270°SKY CLUB组成。
按照方案,别墅面积段大概在380-500㎡,组合形式不同于市面上常见的联排、双拼。而是一种围绕中心/社交景观,呈围合式布局的创新方式。
最新效果图如下:
再看高层产品,新颖的地方在于:
1)楼栋造型的艺术感
2)会所在顶层3)户型下小上大
楼栋剖面图如下:
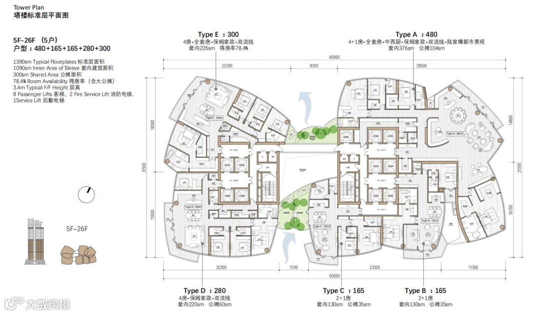
户型图如下:
5F-26F户型面积:400㎡+165㎡+165㎡+280㎡+300㎡
41F-46F户型面积:560㎡+480㎡
47F-48F户型面积:560㎡+SKY CLUB天际会所
可以看到,这种设计方法打破传统户型水平分布的做法,按照下小上大的原则合理分布不同价值户型,达到景观的最大化利用。
全套户型图如下:
另外,首层是酒店落客区+10米挑高双大堂入户。
最新效果图如下:
楼栋首层还有约960㎡商业面积,以及约3350㎡商业街商业面积。
本文由【沪房新传播】团队整理
转载请声明出处
上海购房政策
点击图片了解详情
热盘推荐
识别二维码
进入【翠湖天地六期】看房通道
案场销售会第一时间与您联系
识别二维码
进入“群”看房通道
案场销售会第一时间与您联系
媒体矩阵
觉得有用的话,记得“分享·收藏·点赞·在看”哦!













