“
#最新消息#
浦东金桥
金鼎天地
04-01、05-01地块
案名公布:【金鼎阅府】
首批房源有望今年年底入市!
项目首开推出04-01地块,
主推建面约50-165㎡1-4房,
预计提供386套房源
识别二维码
进入“【金鼎阅府】”看房通道
案场销售会第一时间与您联系
01
基本信息
【金鼎天地】后期住宅04-01、05-01地块,即将面世
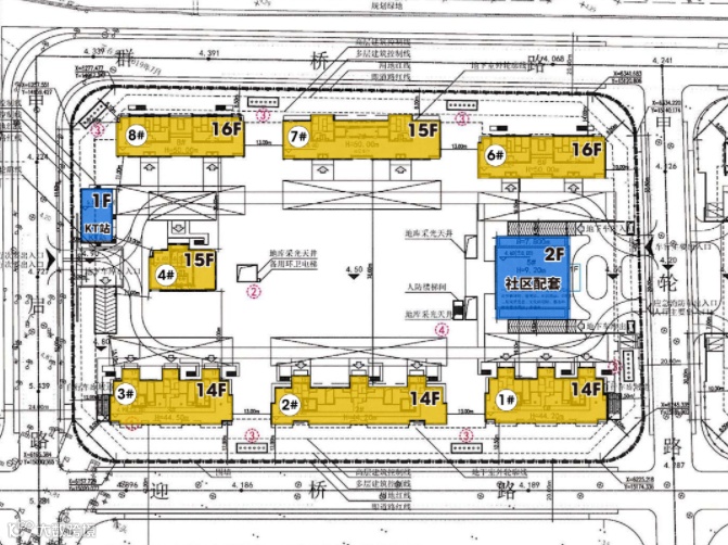
项目规划:金鼎天地04-01、05-01地块东至高家宅教堂、南至迎桥路、西至申启路、北至群桥路,未来两个地块将形成一个整体。
【04-01地块】:将建7栋14-16层高层住宅
用地面积:25362.9平方米
总建筑面积:104300平方米
计容建筑面积:55798.38平方米,其中地上建筑面积:58200平方米,地下建筑面积:46100平方米,建筑总占地面积:6340.73平方米
容积率:2.2
绿地率:35%
建设内容:项目将新建7栋建筑及社区配套。
1、2、3号楼14层,4号楼15层,6、8号楼16层,7号楼15层主要功能为住宅。5号楼2层,主要功能为社区配套。
【05-01地块】:将建10栋15-16层高层住宅
用地范围:东至05-02地块西至申轮路南至迎桥路北至群桥路
用地面积:29241平方米
总建筑面积:120400平方米
计容建筑面积:64330.20平方米,其中地上建筑面积:67600平方米,地下建筑面积:52800平方米
建筑总占地面积:7310.25平方米
容积率:2.2
绿地率:35%
建设内容:项目将新建10栋建筑及会所
1、4、6、7、8号楼16层,2、3、9、10号楼15层,主要功能均为住宅。5号楼1层,主要功能为会所。
02
区位优势
12号线、崇明线地铁环绕以“CBD+CTD”为双轮驱动
金色中环发展带:2020年7月9日,浦东正式启动“黄金发展带”建设工作,主要聚焦1个中央活动区:前滩;两个副中心:张江、金桥;以及五个潜力地区。金桥,不仅是“黄金发展带”上的新晋上海城市副中心,区位更具有战略性的优势。
金桥副中心:在上海2035新一轮总体规划中,金桥是上海唯一一个具有良好产业基础的城市副中心,再加上大气磅礴的世纪规划,未来能达到怎样的高度,可以任凭想象。更何况,这里已有大量的高新产业,聚集了数量可观的高净值人群。
浦东金桥以“CBD+CTD”为双轮驱动,规划了四大地标,包括5G+智慧园区——智谷、规划约248米高的第五中心、OFFICE PARK·金海园、约218万方的金鼎天地,共同组成浦东“上城”的2.0版副中心。
板块价值:金鼎天地是轨交12号线、崇明线、20号线的三线交汇之地。按照“三年出形象、同步出功能、十四五基本建成”的计划。25万平方米的核心地块商业综合体已完成国际方案征集和商务谈判,2021年开工的项目7个。
金鼎天地是目前金桥规划的重中之重,内含9幅商办地块,是一个集商业、办公、住宅于一体的产城融合示范区。
作为金桥的新名片,金鼎天地共包含有9块商办地块,可以称之为金桥版的“九宫格”,媲美前滩。“九宫格”总建筑面积约218万方,其中,产业地块面积为75公顷,商办地块面积为22公顷,住宅地块面积为23公顷。
TOD模式——约6200平的双轨换乘的交通枢纽:16-01地块,规划了10.22万方的商业商办,并包含6200㎡的交通枢纽。19-01地块,规划20.31万方的商业商办,融合已建成12号线申江路站,地下一层将与地铁站厅相通。两个地块分别预留了崇明线的车站出入口,未来商业与出行可实现“一键切换”。
03
项目规划
商办核心——16-20地块:本项目拟建设大型综合性一站式购物休闲商业中心、超5A甲级总部写字楼、五星级奢华酒店、多功能演艺文化中心、以及亚洲专业级潜水体验中心,完善的基础业态功能体系和特色业态引流模式相结合,180米双塔和两侧100米高层总部级写字楼相呼应,描绘出错落起伏的波浪状天际线。
围绕双子塔地标还将打造鳞次栉比的建筑群体。
“平和教育”示范基地:15-01地块为平和学校教育综合体项目,已于2020年3月12日开工建设,预计2023年完工。由平和学校幼儿园、高中部和培训机构共同组成。15-01地块规划打造出一个全新教育示范基地——梦剧场(包括24班幼儿园、48班高中及培训办公区等)。
幼托小学——07-01地块:07-01地块配套幼儿园项目和07-02地块配套小学项目规划总建筑面积超32000㎡,其主要功能为教学楼及教学辅助设施。项目规划15班幼托+28班小学。
约6000方公共开放空间——休闲娱乐一站解决:“九宫格”内的17地块和18地块,即是中心位置,又有天然河流穿过,未来将创造一个沿河休闲娱乐开放空间。
17-02地块则规划1.26万方金桥文化活动中心,规划综合设置各类公共服务设施。
汽研头马——22地块:22-01地块为泛亚汽车技术中心,已于2018年投入使用。泛亚汽车是由通用汽车与上汽集团共同组建的国内第一家中外合资汽车设计开发中心,也是国内第一家获颁“国家认定企业技术中心”的合资汽车企业。
集中绿地——09-01地块 :规划公园建立了完整的公共空间体系:多元的公共绿地空间+ 宜人的步行社区+ 完善的城市慢行系统,将所有消极空间、地库人行出入口等,都隐藏在廊下,丰富的竖向空间,为公园提供更多的游赏路径。
04
住宅规划
金鼎天地04-01、05-01地块,东至高家宅教堂、南至迎桥路、西至申启路、北至群桥路,未来两个地块将形成一个整体。
两个地块基本是去年下半年同时动工,地块规模也非常相似,而根据之前就已经爆出的规划来看,项目似乎并没有考虑做差异化产品,不管是楼高、容积率还是小区风格,都高度相似。
首先是04-01地块,规划建造7栋14-16层高层住宅+1栋社区配套。
1、2、3号楼14层,4号楼15层,6、8号楼16层,7号楼15层主要功能为住宅,按照规划预测,项目供应约386套房源:
户型:包括建面约50㎡1房1厅1卫、约70㎡2房2厅1卫、约80㎡2房2厅1卫、约100㎡3房2厅2卫、约130㎡3房2厅2卫、约170㎡3+1房2厅3卫。
项目户型图
(过程稿,以官方公布为准)
其次是05-01地块:规划建造10栋15-16层高层住宅+1栋会所;
1、4、6、7、8号楼16层,2、3、9、10号楼15层,主要功能均为住宅。5号楼1层,主要功能为会所,按照规划预测,项目供应约368套房源:
户型:约51㎡1房、76㎡2房、95㎡3房、135㎡3+1房、175㎡4房、218㎡4房。
05
周边配套
交通配套:项目周边有杨高北路、五洲大道、外环高速等交通主干道,自驾出行比较便捷。
金鼎天地为地铁12号线和轨交崇明线(暂名)申江路站地铁上盖项目,金鼎首府与12号线申江路站直线距离约640米,16-01地块预留了一处与崇明线车站地下一层的连通口,并包含6200㎡的交通枢纽。’
19-01地块规划商业商办建筑地下一层与地铁12号线申江路站的站厅连通,建成后前往申江路站将会更加便捷。1站即可换乘9号线,3站换乘6号线。
周边教育:项目依托平和双语学校的教育资源,将在15-01地块打造一个集教育、培训、交流及互动于一体的全新教育示范基地——梦剧场。周边还有丰富的国际学校资源(具体入学指标以公示为准)。
商业配套:项目自身的商业规划已足以满足业主购物、休闲、娱乐、餐饮等需求,且项目周边还有金桥生活广场、卜蜂莲花、万嘉商业广场等。更有由金桥股份与日本三井不动产联手打造的日本本土外新型商业购物中心-啦啦宝都。
医疗配套:目前项目周边有复旦大学华山医院东院、第一妇幼保健院、曙光医院东院等三甲医院,看病就医也很方便。
楼盘点评:在配套方面,金鼎天地的“九宫格”包含了商业、休闲、购物、娱乐、交通、教育、高端酒店、办公等多种业态,非常全面。不仅能够满足项目本身业主的衣食住行,还将成为整个金桥板块的地标级商业中心。宜居性、舒适性、便利度未来都将达到MAX!
本文由《沪房新传播》团队整理
更多资讯请关注公众号获取
上海购房政策
点击图片了解详情
热盘推荐
识别二维码
进入【金鼎阅府】看房通道
案场销售会第一时间与您联系
识别二维码
进入“群”看房通道
案场销售会第一时间与您联系
媒体矩阵
觉得有用的话,记得“分享·收藏·点赞·在看”哦!













