“
#最新消息#
杨浦·东外滩
全新盘
【保利越秀·和樾天汇】
项目已经取证
将于2月22日开始为期4天半认购
首期将推约99-103㎡ 3房
共计340套房
源均价115000元/㎡
识别二维码
进入“【和樾天汇】”看房通道
案场销售会第一时间与您联系
01
基本信息
今年7月,保利发展&越秀以总价约47.75亿的竞得杨浦区江浦社区R-05地块(大桥街道115街坊),房地联动价115000元/㎡。
地块东至规划眉州路,西至杨树浦港。南至规划R-06、R-07地块,北至R-09已出让地块。项目位于杨浦内环内,周边配套醇熟。向东是东外滩,向西是虹口北外滩,地理位置优越。
根据公示的规划方案显示,项目规划8幢14-17F高层住宅、2栋租赁住宅、2栋保障房以及部分配套用房。总户数为1207户(含自持租赁住宅和保障房)。其中2#~5#楼、7#~10#楼为商品住宅。
作为天字系最高级别的产品,保利越秀和樾天汇格外关注他们身心的体验感,尤其是,健康、礼序、邻里、趣活等四大维度的产品力迭代,将居住的舒适度演绎到极致。
第一个维度创新,来自“近零能耗+全生命周期式健康体系”的全新组合,
这是内环内首个以更高标准打造的科技健康大宅,它让居住的体验感直接跃升一个台阶。
要知道,以往大家熟知的超低能耗建筑,只是近零能耗建筑的初级表现形式。
近零能耗建筑带来居住舒适度的全面提升,让建筑能耗水平较相关国家标准和行业标准降低60%至75%以上。
健康社交系统、健康全龄乐园、健康生态系统和健康活力系统等4大空间系统,叠加健康智能环、健康周期客厅、全龄复合场地、儿童乐玩、青年乐活、长者乐享、认知花园、疗愈花园等8大主题模块,营造出可持续生长的、全生命周期式健康人居的外部生态体系。
第二个维度创新,将人与万物的尺度,自动设置在最佳状态。
三进制的景观礼序,独具匠心的打造出三重立体的“无界城市森林”。
从入口大堂到镶嵌着金属栅格、玻璃幕墙与石材的高层建筑,继续延续了天字系的高阶审美,垂直扁平的极简线条,勾勒出极具隐奢的现代都会风格,温暖澄澈,将这里未来十年的气质,提前昭告世人。
第一进的社区入口,是一片面向城市开放,以艺术连廊+仪式水景为核心的口袋花园,在退让之间消融了社区与街道生硬的边界感,并在不经意间将城市的喧嚣隔绝于外。
穿过大堂前设有的开阔的酒店式落客门廊,一场颇具仪式感和度假感的归家之旅由此展开。
第二进的社区内庭,一条400米长的集中绿地,构成了整个社区全周期健康的共享主轴。
在这个中轴线上,依次精心设计了臻艺馆邸、溪涧艺庭、森林奇遇屋、艺术俱乐部、焕心疗愈吧等五大共享空间,作为日后全家庭的多维功能空间。
驻庭、半岛花园、湖畔、林木、泉溪,再经由600米跑道的全时全龄中健康活力环串联,营造出满满度假酒店的氛围感,让每一次归家都成为一场心灵的远行。
第三进的社区入口,无论是车行或是步行回家,都做了精心的考量,在小区主入口和每个楼栋的入户口,设置了专属的入户花园和地上、地下的精装双大堂,将生活场景的尊崇感做到极致。
第三个维度的创新,来自对邻里生活的洞察。
中轴线上,3600平方米的集中绿地构成了社区超级引力客厅的核心场域。
超引力场域的打造巧妙融入了全龄段的社交理念,草坪上,支起一顶帐篷,摊开一块桌布,摆上几样美食,家门口就可以完成精致露营。
一旁的廊架里,手作剧场、林荫树阵等空间,都是全家人温暖客厅的延伸。可以想象,等到春天来时,这里一定会成为最紧俏的场地。
一条回廊、一席卡座,一池水景色,15个节点带的探索性景观设计,通过富有光影变化的环境,再经由森际缦行,串联起大小花园,四季晨昏,不同景致和风韵的邻里和睦的社交生活场景。
第四个维度的创新,充满了对活力和趣味的探索欲。
社区中央的儿童主题乐园,也是全龄活动集结地,老老少少皆可陶然于此;周边植物园地里的林木葱茏,可以带着孩子来这里上一堂植物课。
600米乐活跑道旁的森林驿站,让喜爱运动的年轻人可以戴着耳机在健身器械上挥汗如雨,也可以在运动前从容地完成拉伸和热身。一旁的乒乓球台,则成了喜欢竞技的人最好的去处。
再比如,每一处户外活动的森林驿站边,都做了按摩步道、棋画茶桌和户外长凳,可以闲坐聊天,也可以与邻居们约一场老少同乐的棋牌乐。你甚至可以在厨房做好美味,拿到相邻的艺术花园中,慢慢享用。
这些直击人心的创新背后,是天字系对于这群改变时代浪潮的群体,无数次深度调研的结果。
02
推售信息
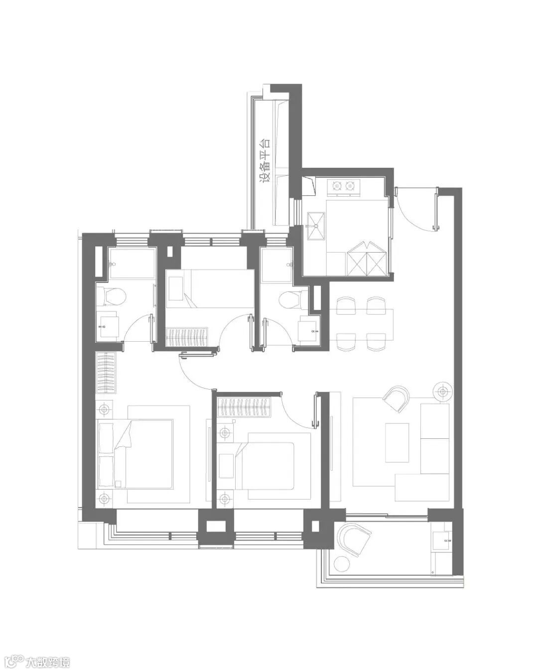
据悉,保利越秀·和樾天汇 将推约99-173㎡ 3-4房,共计624套,而此次首期仅推售340套房源,目前价格已经过会,均价11.5万元/㎡,以取证,22日开启认购!
户型图曝光
(仅供参考,最终以开发商发布为准)
建面约99㎡3房2厅2卫
建面约103㎡3房2厅2卫
建面约173㎡4房2厅3卫
03
周边配套
保利越秀·和樾天汇 位于杨浦内环内,向东是东外滩,向西是虹口北外滩,地理位置优越。从规划来看,杨浦滨江与虹口北外滩是黄浦江未来十年发展的重中之重,项目位于杨浦滨江和北外滩2公里辐射范围内,受到“双滨江CAZ”辐射带动。
交通方面:双轨交环绕,交通网路通达性强,直达上海市各核心区域。项目距离18号线&12号线江浦公园站约500米;距离12号线宁国路站约500米;
自驾方面,项目临近城市主干道内环高架路,南北高架路,周家嘴路,路网密集通达性高。自驾便捷,公共交通发达。距陆家嘴4.3公里,人民广场6.7公里,上海火车站7.1公里,驾车通过内环,基本半个小时内可以到达上海市区各个核心地段。
商业方面:项目周边北外滩、外滩、陆家嘴三大顶级商圈环伺,2公里内拥有白玉兰广场、虹口北外滩来福士、瑞虹新城太阳宫等地标型商业,业主出行购物便捷,生活氛围浓厚。
教育方面:2km范围内从幼小至高中教育资源齐全,涵盖上海市一级园、十二年一贯制公办重点中学;距离市东中学1.9km,十二年一贯制公办学校,区重点。市东中学是全国百所历史名校之一,为上海市实验性示范性高级中学;距离上海市杨浦区市东幼儿园1.7km,三年制公办一级幼儿园。
医疗方面:3km范围内汇集区域高端医疗资源;距离新华医院0.7km,三级甲等公立综合医院;距离复旦大学附属妇产科医院1.5km,三级甲等公立妇科医院;距离杨浦区中心医院2.2km,三级乙等公立综合医院;距离同济大学附属同济医院分院2.6km,二级公立综合医院。
生态方面:项目毗邻江浦公园、杨浦公园、和平公园等生态休闲场所。西侧毗邻“水韵杨浦”母亲河——杨树浦港,景观生态资源优越。
本文由【沪房新传播】团队整理
转载请声明出处
上海购房政策
点击图片了解详情
热盘推荐
识别二维码
进入【和樾天汇】看房通道
案场销售会第一时间与您联系
识别二维码
进入“群”看房通道
案场销售会第一时间与您联系
媒体矩阵
觉得有用的话,记得“分享·收藏·点赞·在看”哦!













