“
#最新消息#
杨浦·东外滩 全新盘
【保利越秀·和樾天汇】
等待入市
首期将推约99-169㎡ 3-4房
共计340套房源
指导价115000元/㎡
预计12月底取证
明年1月份认购
识别二维码
进入“【和樾天汇】”看房通道
案场销售会第一时间与您联系
01
基本信息
今年7月,保利发展&越秀以总价约47.75亿的竞得杨浦区江浦社区R-05地块(大桥街道115街坊),房地联动价115000元/㎡。
地块东至规划眉州路,西至杨树浦港。南至规划R-06、R-07地块,北至R-09已出让地块。项目位于杨浦内环内,周边配套醇熟。向东是东外滩,向西是虹口北外滩,地理位置优越。
根据公示的规划方案显示,项目规划8幢14-17F高层住宅、2栋租赁住宅、2栋保障房以及部分配套用房。总户数为1207户(含自持租赁住宅和保障房)。其中2#~5#楼、7#~10#楼为商品住宅。、
02
推售信息
据悉,保利越秀·和樾天汇将推约99-169㎡ 3-4房,共计624套(其中建面约99㎡3房2厅2卫共544套;建面约169㎡4房2厅3卫产品80套),而此次首期仅推售340套房源,项目指导价11.5万元/㎡,预计将于12月底取证,明年一月份认购!
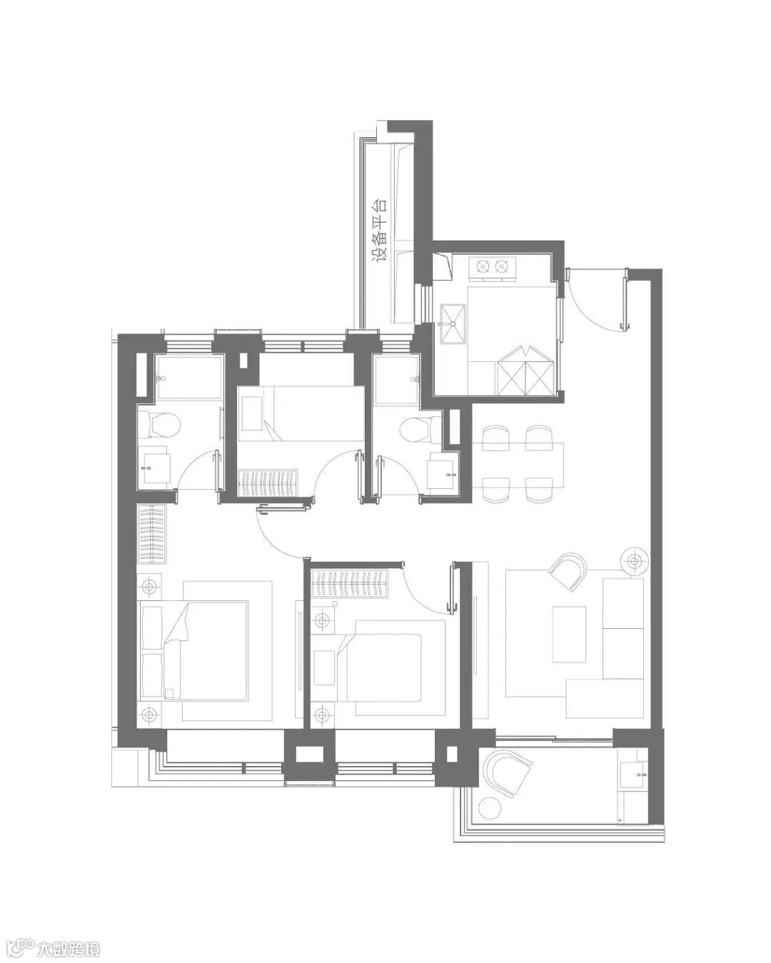
户型图曝光
(仅供参考,最终以开发商发布为准)
建面约99㎡3房2厅2卫
建面约103㎡3房2厅2卫
建面约173㎡4房2厅3卫
03
周边配套
保利越秀·和樾天汇 位于杨浦内环内,向东是东外滩,向西是虹口北外滩,地理位置优越。从规划来看,杨浦滨江与虹口北外滩是黄浦江未来十年发展的重中之重,项目位于杨浦滨江和北外滩2公里辐射范围内,受到“双滨江CAZ”辐射带动。
交通方面:双轨交环绕,交通网路通达性强,直达上海市各核心区域。项目距离18号线&12号线江浦公园站约500米;距离12号线宁国路站约500米;
自驾方面,项目临近城市主干道内环高架路,南北高架路,周家嘴路,路网密集通达性高。自驾便捷,公共交通发达。距陆家嘴4.3公里,人民广场6.7公里,上海火车站7.1公里,驾车通过内环,基本半个小时内可以到达上海市区各个核心地段。
商业方面:项目周边北外滩、外滩、陆家嘴三大顶级商圈环伺,2公里内拥有白玉兰广场、虹口北外滩来福士、瑞虹新城太阳宫等地标型商业,业主出行购物便捷,生活氛围浓厚。
教育方面:2km范围内从幼小至高中教育资源齐全,涵盖上海市一级园、十二年一贯制公办重点中学;距离市东中学1.9km,十二年一贯制公办学校,区重点。市东中学是全国百所历史名校之一,为上海市实验性示范性高级中学;距离上海市杨浦区市东幼儿园1.7km,三年制公办一级幼儿园。
医疗方面:3km范围内汇集区域高端医疗资源;距离新华医院0.7km,三级甲等公立综合医院;距离复旦大学附属妇产科医院1.5km,三级甲等公立妇科医院;距离杨浦区中心医院2.2km,三级乙等公立综合医院;距离同济大学附属同济医院分院2.6km,二级公立综合医院。
生态方面:项目毗邻江浦公园、杨浦公园、和平公园等生态休闲场所。西侧毗邻“水韵杨浦”母亲河——杨树浦港,景观生态资源优越。
本文由【沪房新传播】团队整理
转载请声明出处
上海购房政策
点击图片了解详情
热盘推荐
识别二维码
进入【和樾天汇】看房通道
案场销售会第一时间与您联系
识别二维码
进入“群”看房通道
案场销售会第一时间与您联系
媒体矩阵
觉得有用的话,记得“分享·收藏·点赞·在看”哦!













