“
#最新消息#
闵行·颛桥 全新盘
【保利联发·光合臻园】
等待认购
将推约95-105㎡3-4房
共计176套房源
均价65000元/㎡
识别二维码
进入“【保利联发·光合臻园】”看房通道
案场销售会第一时间与您联系
01
基本信息
项目地块是去年7月28日,保利与联发联合体拿下的闵行吴泾镇MHPO-0601单元16-05地块,最终成交价21.05亿元,成交楼板价34064元/平方米,溢价率0.1%,房地联动价:65000元/㎡。
地块位置示意图
保利联发光合臻园示意图
「保利联发·光合臻园」令人期待的一点,在于其超大的体量!约百万方的大体量,在主城区内属实是“史无前例”了。
以15号线元江路地铁站为核心,政府规划了集住宅、商业、办公、文化、教育、公寓、生态7大复合业态于一体的百万方滨水TOD大城!
这座大城,以地铁站点为核,从莲花南路到都会路整合片区,约百万方大体量规划包括:约20w方待出让商办地块、约4w方的创智产业、约1w方的活力街区、约2.5w方的菁英教育、约30w方的国际住宅、约20w方的滨水公园!(规划中,以政府批复为准)
业态越丰富,对于购房者来说,未来居住于此的“生活丰富程度”也会越高!
这就意味着「保利·光合臻园」拥有着让其他TOD难以超越的优势:
TA是上海首座滨水公园TOD!
难以想象在一个“超便利”的TOD项目上还能够看到“双滨水”的优质生态!上海购房者对于“自然水系”的喜爱向来是毫不掩饰的,从该项目的效果图中也能够体会到如此优质水系资源对于购房者强劲的吸引力!
TA拥有着约20w方的双主题公园!
如此大面积公园绿化别说在TOD项目之中了,在全市新盘市场中都难以见到,相当于2.5倍徐家汇公园大小!
1条最美滨水步道、2大主题公园、3大共享生活圈,打造出了独特的「保利·光合臻园」!
最美滨水步道效果图
最美滨水步道效果图
约3万方潮流体育公园将运动基因与公园森态完美融合!运动不再是孤零零的某一处特定场地,而是通过公园里的多重活力环进行有机串联,成为百万中心大城密不可分的一部分!
体育公园效果图
效果图
诸如飞盘、滑板、轮滑、陆冲板、街舞、跑酷等极限潮玩,在这里也完全能够得以实现!
效果图
效果图
约14万方潮玩艺术公园则实现了亲水体验最大化全段亲水可玩性!打造约3KM亲水岸线!形成上海全新的亲水生活地标!
效果图
效果图
同时还有约3万方城市绿地!预留大量的滨水营地空间!无论是户外露营、草坪音乐会、城市戏剧、露天电影院等都能够在此满足!
效果图
效果图
两大主题公园拥有着健康、亲水、运动、探索、艺术、社交6大沉浸式光合模块,共计100+情景场域!足以满足生活于此的各类诉求!给业主带来全新生活方式!
TA拥有约1万方活力街区!
保障了居住于此的生活便利度外,值得注意的是,其中约4600方为潮流商业街,未来将由保利商业进行运营!以保利发展的众多实际“城市运营”成功案例!例如保利商业在上海成功运营的保利时光里,引领着消费体验新风向!引入诸多艺术潮流店!是徐汇滨江潮流商业地标!我们对于该街区的未来完全可以更期待一些!
保利时光里实景图及活动照片
TA还拥有着商办、教育用地、产业等,真的是一座“大城规划”!
在教育上,这里有着约2.5万方的全龄教育(规划用地);在产业上,这里有着约4万方产业生态圈;甚至这里还有着约20万方共享商办(规划用地)!
可以说在「保利联发·光合臻园」之中,就将形成强大的产业资源、菁英人口聚合能力!将为城市生活的人们创造具有前沿性的生活、工作、休闲环境!
02
推售信息
据悉,保利联发·光合臻园 首期将推约95-105㎡3-4房,共计176套房源,均价65000元/㎡,将于近期开启认购!
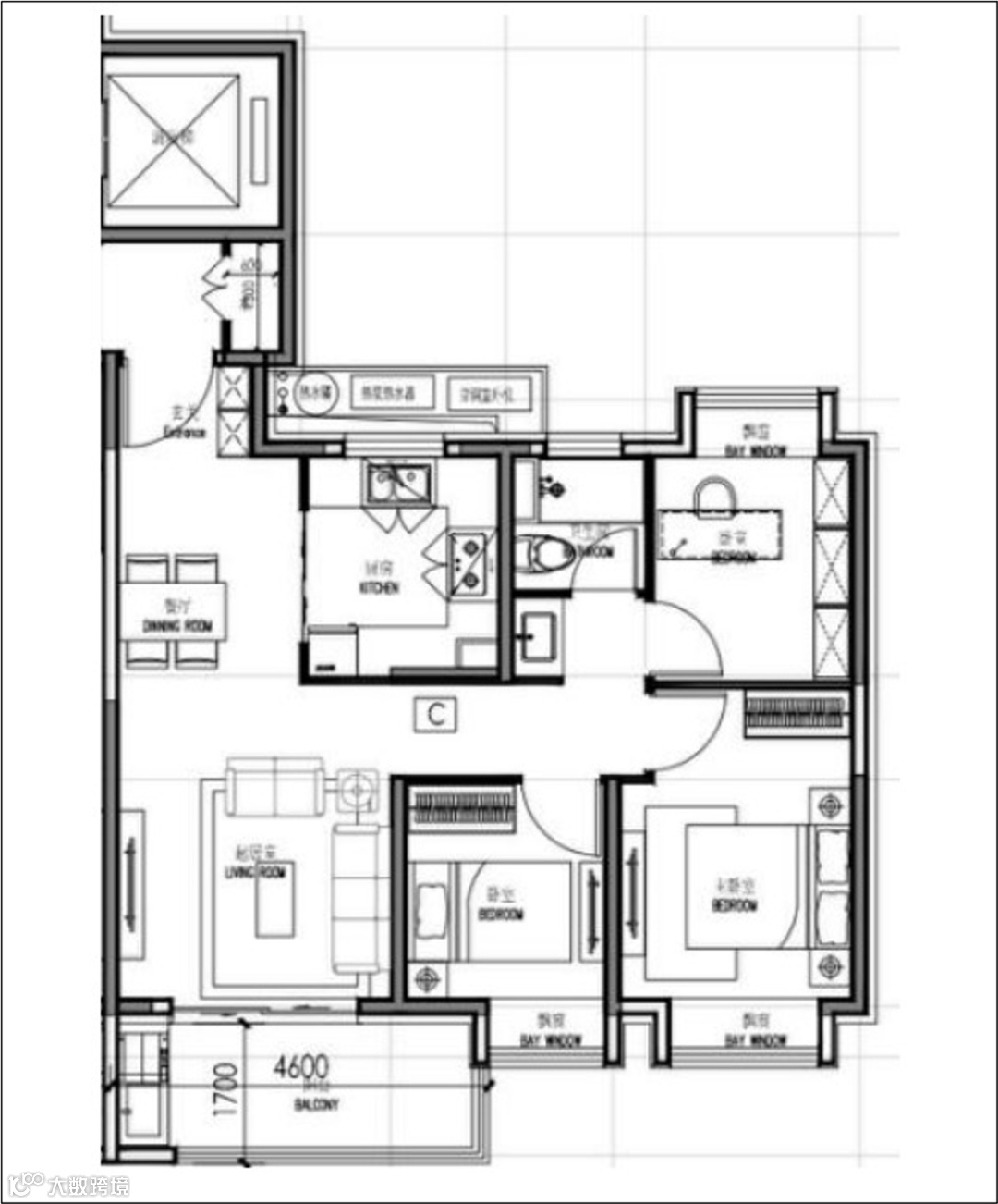
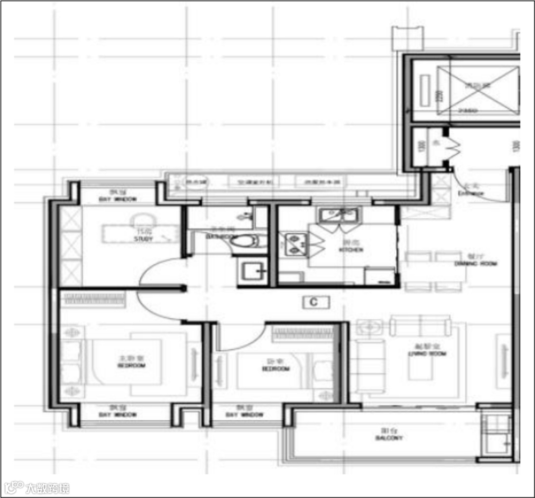
首开户型图如下:
「34套约95㎡ 3房2厅1卫」
「142套约105㎡ 3房2厅2卫」
本文由【沪房新传播】团队创作
转载请声明出处
上海购房政策
点击图片了解详情
热盘推荐
识别二维码
进入“【保利联发·光合臻园】”看房通道
案场销售会第一时间与您联系
识别二维码
进入“群”看房通道
案场销售会第一时间与您联系
媒体矩阵
觉得有用的话,记得“分享·收藏·点赞·在看”哦!













