“
#最新消息#
浦东·唐镇 全新盘
【浦发·唐城】二期
等待入市
将推约95-133㎡3-4房
共计458套房源
上期均价70620元/㎡
识别二维码
进入“【浦发唐城】”看房通道
案场销售会第一时间与您联系
01
基本信息
2017年6月30日,浦东新区人民政府正式批复了《浦东新区唐镇镇南社区(PDP0-0408)单元东区控制性详细规划》。
唐镇镇南社区单元东区即为我们所说的唐镇超大综合体地块,也叫创新中路站超级综合体项目。
创新中路站超级综合体项目紧邻地铁二号线创新中路地铁站,东至华东路,西至中心河顾唐路,南至川杨河,北至南新沟,项目内规划商办及住宅总建筑面积约92.27万㎡,由浦发集团和上海融创携手开发。
目前,唐镇超大综合体地块中设计方案已经出炉的地块有五个,分别为:浦发持有的C-13B-04地块、C-13C-01地块;融创持有的融创未来金融城(13A-01地块、13C-01地块),13B-01地块。
去年,浦东唐镇浦发唐城一期推出341套房源,吸引了1077组客户认购,入围分高达76.77分,当日无悬念售罄!
最新消息,浦发唐城二期预计将于二季度入市!
浦发唐城二期(13A-05地块)容积率仅约1.8,布局方正且错落有致,共由8栋13-14层装修小高层、配套用房及地下车库组成,人车分流设计。
浦发唐城二期|效果图
13A-05地块位于浦东新区夏榕路55弄,四至范围:东至中心河,南至夏榕路(规划中),西至顾唐路南段(规划中),北至齐芳路(在建中)。
示意图
02
推售信息
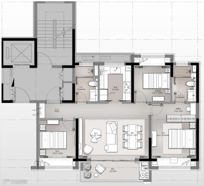
产品方面,项目推出建面约95-133㎡3-4房,共计458套房源,全部装修交付,建面约106-133㎡占比约83.8%。
「浦发唐城二期户型分布示意图」
项目二期户型包括:建筑面积约95㎡、106㎡、108㎡、124㎡、133㎡(以测绘报告为主)。
全套户型图过程稿已曝光,如下:
「约95㎡3房2厅2卫」
三开间朝南,户型方正且通透全明;
卧室全飘窗设计,增设衍伸空间;
两卫干湿分离,功能齐备;
步入玄关设计。
「约106㎡3房2厅2卫」
三开间朝南,户型方正且通透全明;
卧室全飘窗设计,增设衍伸空间;
2卫,功能齐备;步入玄关设计;
客餐厅面宽较大,尺度舒适。
「约108㎡3房2厅2卫」(横厅)
三开间朝南,户型方正且通透全明;
卧室全飘窗设计,增设衍伸空间;
2卫设计,功能齐备;步入玄关;
主卧独立衣帽空间及洗手间;
南向约5.4米厅宽及大阳台设计
让阳光更自由洒进客餐厅。
「约124㎡3房2厅2卫」(横厅)
三开间朝南,户型方正且通透全明;
卧室全飘窗设计,增设衍伸空间;
2卫设计,功能齐备;步入玄关;
主卧独立衣帽空间及洗手间;
南向约6米厅宽,配置书房或自由空间
及独立餐厅,南向大阳台设计,尺度舒适
「约124㎡4房2厅2卫」
三开间朝南,户型方正且通透全明;
4房设计,功能多样化,户型南北通透;
卧室全飘窗设计,增设衍伸空间;
2卫设计,功能齐备;
进门设计玄关;
客厅面宽4米以上,舒适感十足。
「约133㎡4房2厅2卫」(横厅)
三开间朝南,户型方正且通透全明;
4房设计,功能齐全;
卧室全飘窗设计,增设衍伸空间;
2卫设计,功能齐备;进门玄关;
主卧独立衣帽空间及洗手间;
南向约6.7米厅宽,及大阳台设计,让阳光
更自由洒进客餐厅。
03
板块潜力
去年初,项目所在的唐镇的总体规划又有了提升调整:
2022年3月18日,浦东新区人民政府网站正式公布了《浦东新区唐镇国土空间总体规划(2020-2035)》草案。根据草案文件,唐镇2035年总体目标为国际一流的“产城融合发展示范镇”,将以“产城质效双增”和“人居品质典范”为两大抓手进行发展。
作为上海新一代国际社区,定位规格更具前瞻性,唐镇是规划留白开发非常明显的地区。土地储备量多,规划清晰,门槛高,一线开发商云集,为国际社区铺路。随着人口导入,唐镇的商业医疗文化资源进一步提升,尤其是名校资源的落实及地铁站商业综合体的建立,全新的城市界面逐步形成。
同时,作为紧邻张江科学城的高端住宅区、浦东产城融合重要板块,学区、交通、商业不断升级的唐镇,早就是很多浦东购房者的第一选择。
04
周边配套
浦发·唐城 同时也是唐镇目前待售在开发项目中配套最为完善的项目之一。
商业方面:现有配套目前主要依靠地铁站周边6.6万方的阳光城modo,和旁边5.6万方的恒生万鹂广场,未来本项目自带的地铁上盖综合体体量也是非常可观,商业便利。
交通方面:项目为2号线创新中路站地铁上盖,通达性优、开放性强。另外还有华东路站,周边华东路、高科东路、龙东大道、华夏高架、中环高架、外环高架路等干道环伺,组成四通八达的路面交通网络,可畅达全城。
教育方面:项目周边有金色阳光幼儿园、中芯唐镇幼儿园、育苗小学、唐镇小学、唐镇中学、民远学院等。还有部分学校在建,12C-01幼儿园计划年底结构封顶,12B-01小学三季度开工建设,13C-03中学年底前开工建设,加快完善区域功能。
医疗方面:综合体内规划有1所三甲医院和4300㎡的社区卫生中心,此外周边有浦东新区人民医院,曙光医院(三甲)。
本文由《沪房新传播》团队整理
更多资讯请关注公众号获取
上海购房政策
点击图片了解详情
热盘推荐
识别二维码
进入【浦发唐城】看房通道
案场销售会第一时间与您联系
识别二维码
进入“群”看房通道
案场销售会第一时间与您联系
媒体矩阵
觉得有用的话,记得“分享·收藏·点赞·在看”哦!













