“
#最新消息#
徐汇·龙华
全新盘
【玖珑庭】
等待入市
将推约99-212㎡3-4房
共计330套
房源指导价11.4万元/㎡
识别二维码
进入“【玖珑庭】”看房通道
案场销售会第一时间与您联系
01
基本信息
去年10月,上海徐房以总价36亿竞得的徐汇区漕河泾街道197a-09,197b-01,196e-03,196e-04地块,新房指导价11.4万/㎡。
如今项目最新动态来了:根据徐汇规土局公布的地名命名信息,项目案名很可能为—玖珑庭!
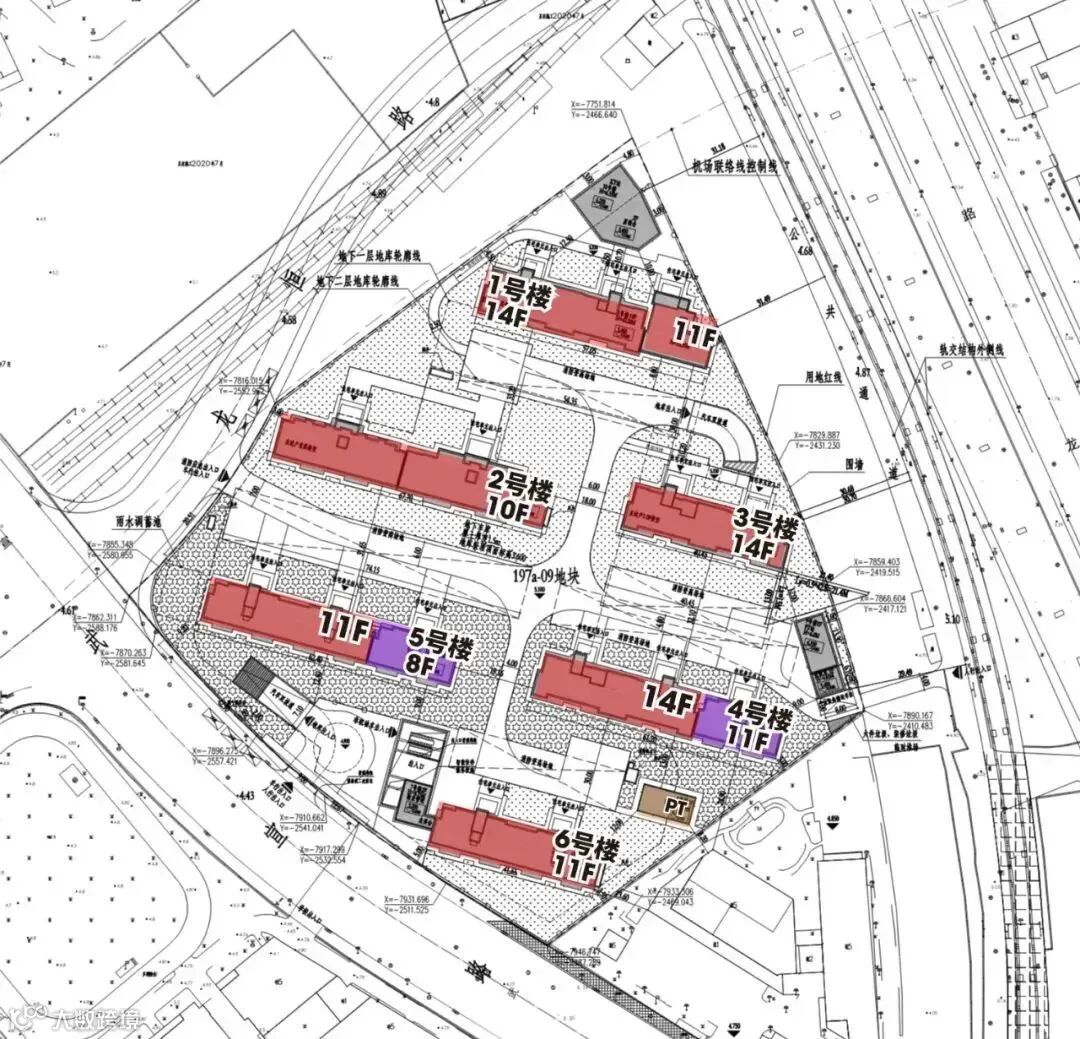
地块为商住办综合用地,出让面积48122㎡,由4幅子地块组成,且并不相邻。
其中,197a-09地块为商品房用地,位于最北侧;
196e-03、196e-04为商办用地,位于中间位置;
197b-01地块为商业用地,位于南侧。
根据公示的规划设计方案显示,197a-09地块,拟建设6幢8-14F住宅,容积率2.0,规划有330套可售住宅和33套保障房;
中小套占比约81.62%,100%全装修,机动车车位450辆,配建有5%保障房。
196e-04地块规划有约1496㎡商业,约4964㎡办公楼,1102㎡菜场;
196e-03地块规划有约11029㎡商业,约2787㎡社区服务设施,包括社区医疗、社区养老设施。
197b-01地块,由1栋5层体育馆、文化馆;1栋4+13层的商业、办公;3栋独栋办公组成。
项目预计会推出363套住宅,其中商品房330套。
从图上看,一共6幢楼,总层高10-14楼不等,预计推出建面约99-212㎡3-4房。
02
周边配套
玖珑庭位于漕河泾街道,属于龙华板块,离徐汇滨江不过2公里,未来配套可以共享到徐汇滨江高能级配套。
龙华板块几乎紧紧贴着整条徐汇滨江,先天地理优势得天独厚,龙华板块依托千年古镇,以及龙华塔、龙华寺的旅游资源,发展至今已经十分成熟。
交通方面:项目周边有3号线石龙路站和3、12号线龙漕路站,11号线龙耀路站未来还有在建中的23号线龙启路站,出行还是非常方便的。
商业方面:项目周边有绿地缤纷城、保利时光里、正大乐城,云锦天地、绿地滨江CLUB、恒基星扬等商业中心。
教育方面:周边二手房(徐汇公园道壹号&徐汇馨苑)目前对口九年制师三实验,门口就是2020年新开的汇师小学中城分校区,对教育资源的期待值可以直接拉满。
文化方面:徐汇滨江以“上海CORNICHE”为设计概念建成可以驱车看江的景观大道,建设世界级滨水开放空间。沿江龙美术馆、余德耀美术馆、西岸美术馆、星美术馆、油罐艺术公园、西岸剧场群等20+文化艺术空间串连成线,打造亚洲超大规模艺术区。
本文由【沪房新传播】团队整理
转载请声明出处
上海购房政策
点击图片了解详情
热盘推荐
识别二维码
进入【玖珑庭】看房通道
案场销售会第一时间与您联系
识别二维码
进入“群”看房通道
案场销售会第一时间与您联系
媒体矩阵
觉得有用的话,记得“分享·收藏·点赞·在看”哦!

