“
#最新消息#
17号线6站大虹桥 轨交新盘
【国贸·虹桥璟上】
等待入市
首期将推约82-129㎡2-4房
共计343套房源
指导价54500元/㎡
识别二维码
进入“【国贸赵巷项目】”看房通道
案场销售会第一时间与您联系
01
基本信息
去年12月第四批土拍,国贸&嘉悦投资竞得青浦区赵巷镇佳恒路南侧B3A-01、B3A-02、B3B-01地块,溢价率8.96%,总价约33.08亿拿下该幅打包地块,成交楼板价为24484元/㎡,房地联动价:54500元/㎡!
该项目由3个地块组成,东至佳驰路,南至佳杰路,西至佳环路,北至佳恒路,整体位于金地虹桥峯汇的西侧,距离17号线嘉松中路站约1公里!
根据出让合同显示,项目容积率为2.2,三个地块住宅套数下限1325套,需配建5%以上的保障性住房,全装修比例100%,要求中小套户型不得低于总住宅建筑面积的80%!
目前该项目设计方案已公示,具体如下:
B3A-01地块:拟建6栋17F高层住宅以及若干配套用房,住宅套数下限381套;
B3A-02地块:拟建6栋16-17F高层住宅、3栋1F商业裙房以及若干配套用房,住宅套数下限376套;
B3B-01地块:拟建7栋17F高层住宅、1栋28F保障房、1栋3F菜场以及若干配套用房,住宅套数下限568套!
根据出让文件显示,要求三地块地库不联通,各地独立。该项目总体以地下停车位为主,一共规划了6个地库出入口,三个地块各规划了2处。
项目内配套设施,在B3A-02地块的09-11号楼一楼均规划了商业设施,24号楼规划有菜场;
另外,在5号、7号、8号、12号楼和18号楼均规划了物业管理用房等社区功能设施。
另外,根据出让文件显示,该项目开发商将同期出资代建位于其西侧的06-02地块(小学)和06-03地块(初中)项目!
出让文件显示,待06-02地块(小学)和06-03地块(初中)建成后统筹划定学区,另外未来幼儿园为待建B4-02地块,该幼儿园位于其项目东侧,绝对是妥妥学区房项目啊。
02
推售信息
据悉,国贸·虹桥璟上 首期将推约82-129㎡2-4房,共计343套房源,指导价54500元/㎡,预计将于六批次入市!
【首开位置示意】
项目全套户型图如下:
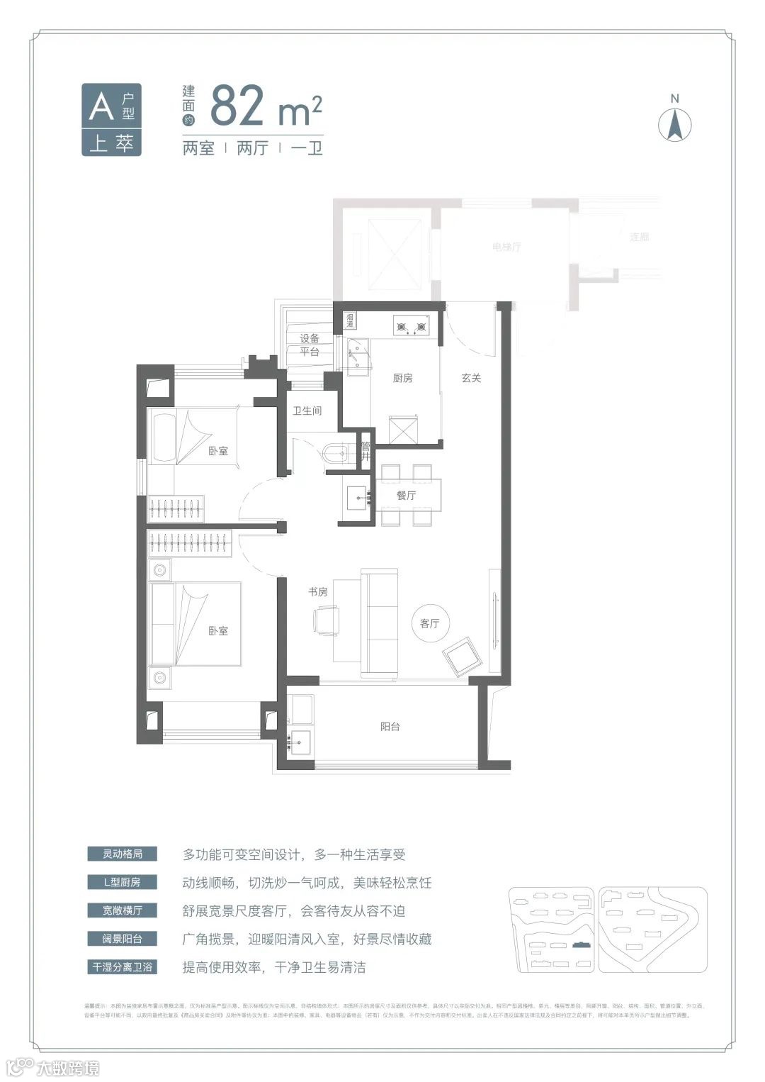
在户型设计上,建面82㎡2房,南向面宽达到约7.8米,功能空间动静分离,大阳台面积达约8㎡。
事实上市面项目起步户型以95㎡3房为主,尤其在五个新城,起步3房如今都要450万级,而国贸虹桥璟上为市场献上了难得的2房,更把门槛价下沉到了400多万,用更友好的价格买更好的地段。
【建筑面积约82㎡2+1房2厅1卫】
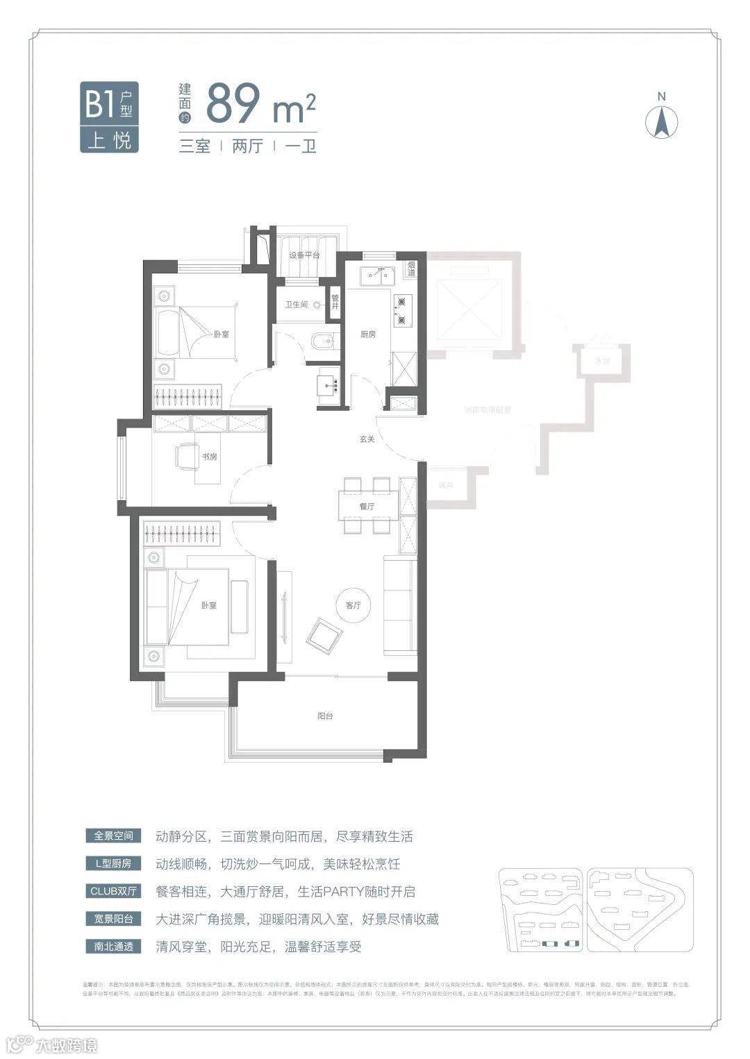
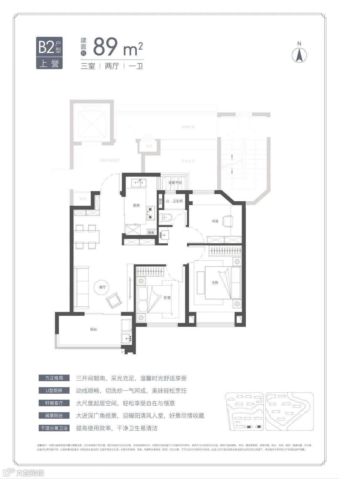
【建筑面积约89㎡3房2厅1卫】
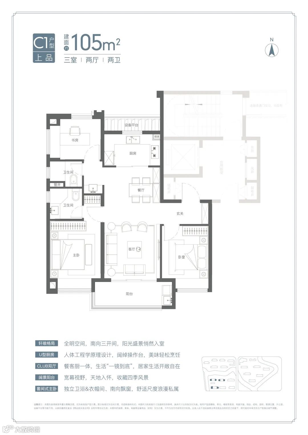
【建筑面积约105㎡3房2厅2卫】
【建筑面积约129㎡4房2厅2卫】
03
周边配套
项目东侧为金地虹桥峰汇,南侧为漕河泾开发区赵巷园区一期,东南侧距离17号线嘉松中路站800米,周边嘉松中路、盈港东路交通出行便捷,小区位优越。
交通方面:地块距离17号线嘉松中路站约800米,自驾可快速至崧泽高架与G50沪渝高速,出行非常方便。
商业方面:周边拥有奥特莱斯、合生新天地、吉盛伟邦三大百万方商业环伺。
医疗方面:地块周边有AED上海德达医院、上海市青浦区红十字护理医院等医疗服务配套。
教育方面:周边拥有青浦世外、宋庆龄学校、兰生复旦、英国学校、法国学校等多家名校。
可以说,这是一个机遇非常难得的优质项目。小编跟不少地产业内人士交流过,都认为这是一个几大价值亮点都很硬核的新盘,性价比和稀缺性都十分明显,一起来看看到底有多值得入。
本文由【沪房新传播】团队整理
转载请声明出处
上海购房政策
点击图片了解详情
热盘推荐
识别二维码
进入【国贸赵巷项目】看房通道
案场销售会第一时间与您联系
识别二维码
进入“群”看房通道
案场销售会第一时间与您联系
媒体矩阵
觉得有用的话,记得“分享·收藏·点赞·在看”哦!













