“
#最新消息#
徐汇·滨江 稀缺低密住宅
【云锦东方】三期二批次
等待认购
将推约176-570㎡ 多层&联排
共计105套房源
均价164907元/㎡
识别二维码
进入“【云锦东方】”看房通道
案场销售会第一时间与您联系
01
基本信息
【东航·云锦东方】位于徐汇滨江板块的中心位置,徐汇滨江坐拥顶级配套,这里是上海中央活动区的重要组成部分,拥有100万㎡传媒港、120万㎡智慧谷、170万㎡金融城。
【东航·云锦东方】三期 位于一二期南侧,北临龙启路、东临丰谷路、西临天钥桥南路、南侧为龙耀路(徐汇区龙启路377弄)。
三期总建筑面积约15.5万㎡,容积率仅1.0,这在滨江地段十分稀缺。其中北侧为8层洋房、南面为4层联排,共计222套住宅。
云锦东方的建筑立面,全部采用干挂花岗岩,花岗岩厚度达到3厘米,传承了外滩百年建筑的精髓,属于新古典主义建筑,堪称经得起时间和眼光考验的建筑艺术。
02
推售信息
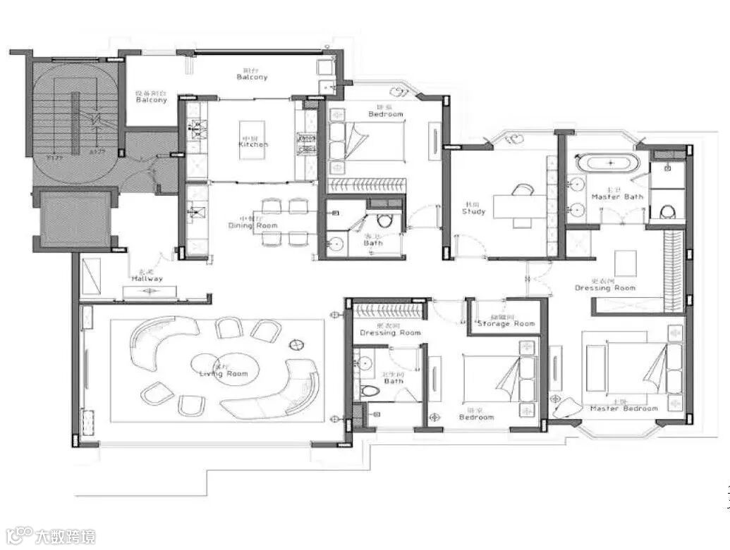
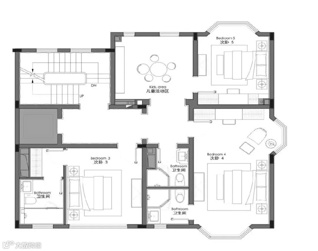
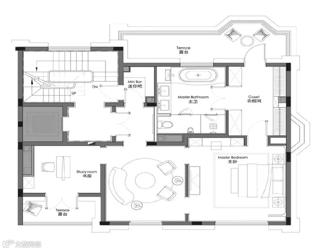
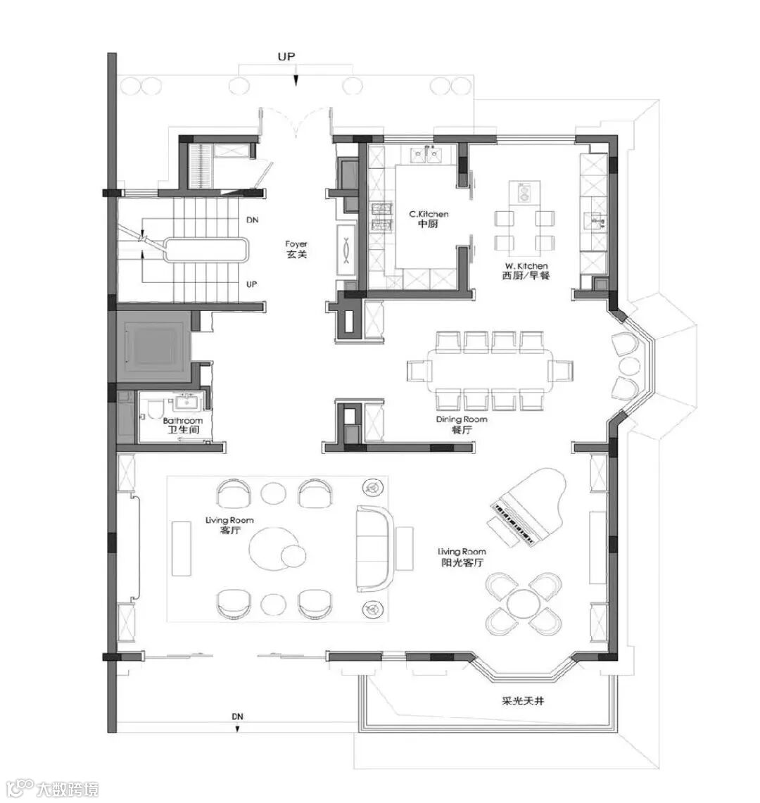
云锦东方三期规划联排别墅和多层公寓,共222套。包括98套建面约177㎡3房、240㎡4房及少量409㎡复式,以及124套建面约384-570㎡联排别墅;
云锦东方三期|沙盘图
据悉,前年项目首推95套176-570㎡房源,剩余127套多层和别墅产品,本次四批次将推出105套房源,推完105套后,整盘还剩22套房源。
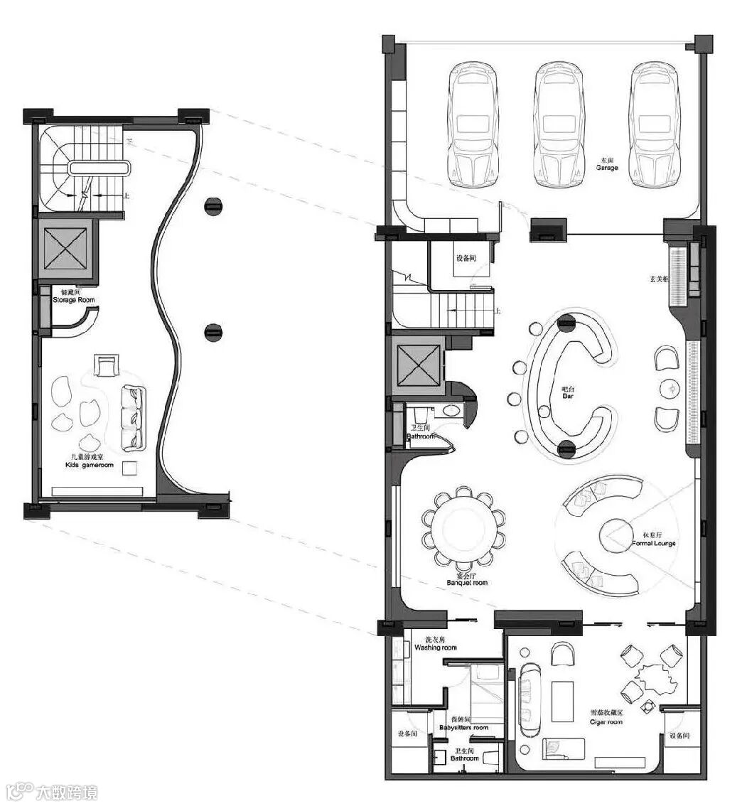
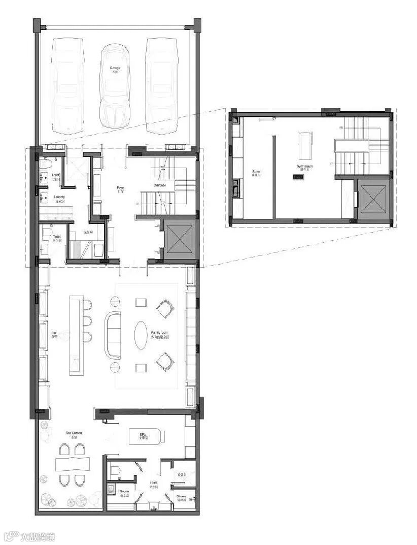
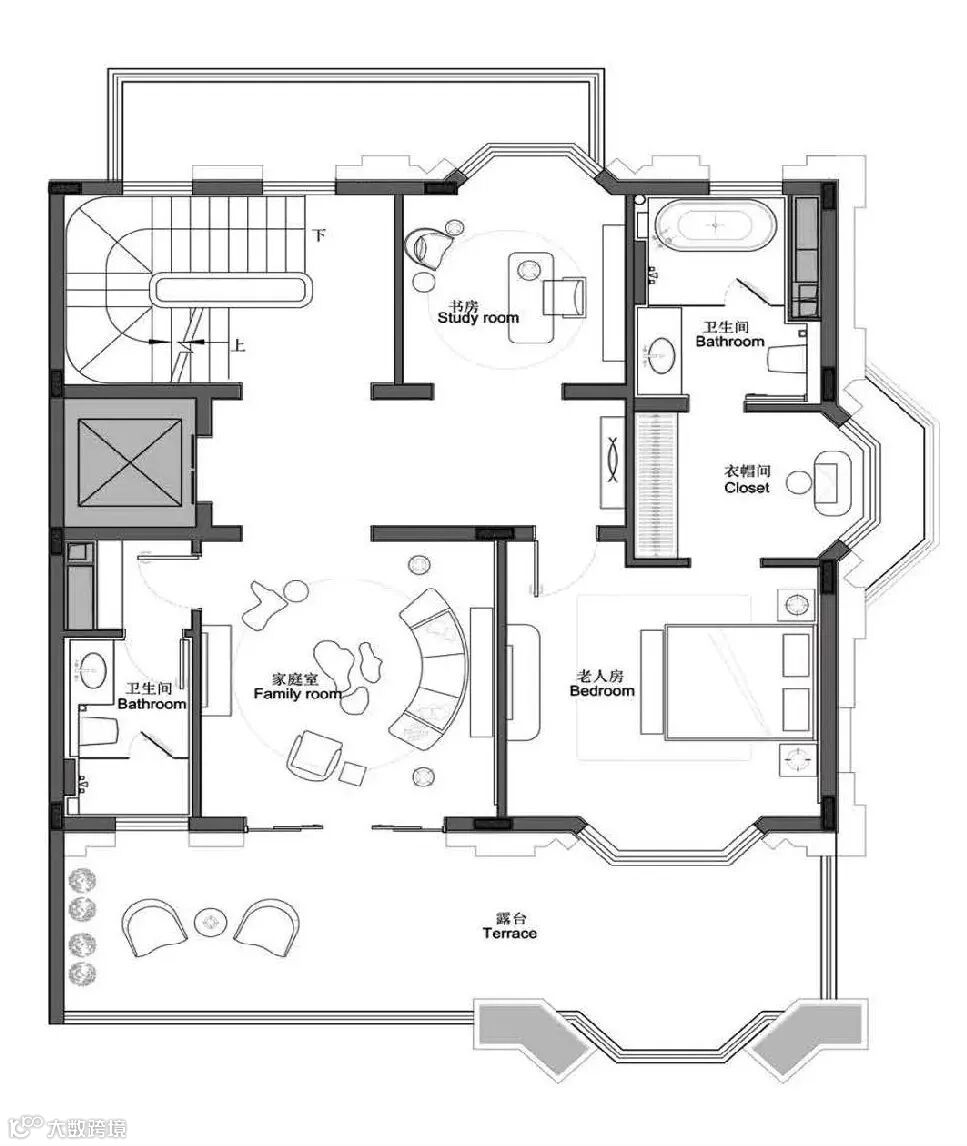
户型图如下:洋房一共8层,1-2楼为一户,复式,带地下室,单套建筑面积约409㎡;3-7楼为5户,平层,单套建筑面积约240㎡;8楼为1户,平层,单套建筑面积约177㎡。
多层公寓240㎡平面图
联排面积有384㎡、401㎡、458㎡、467㎡和570㎡,本批次没有570㎡户型。
联列别墅3系户型地下一层平面图
联列别墅3系户型一层平面图
联列别墅3系户型二层平面图
联列别墅3系户型三层平面图
联列别墅3系户型四层平面图
联列别墅4系户型地下一层平面图
联列别墅4系户型一层平面图
联列别墅4系户型二层平面图
联列别墅4系户型三层平面图
联列别墅4系户型四层平面图
联列别墅5系户型地下一层平面图
联列别墅5系户型一层平面图
联列别墅5系户型二层平面图
联列别墅5系户型三层平面图
联列别墅5系户型四层平面图
03
周边配套
徐汇滨江,毗邻黄浦江畔,区域面积9.4平方公里,规划开发总量950万㎡,是上海2035城市总体规划中承载全球城市核心功能的高品质中央活动区。
云锦东方位于徐汇滨江板块的中心位置,坐拥顶级的城市资源配套。
【交通配套】:项目周边地铁11号线云锦路站步行可达,畅达各商圈;自驾方面,云锦路、龙腾大道、内环线、中环线、龙耀路隧道等可以快速连接徐汇滨江与市区、浦东等地,出行十分便捷。
【商业配套】:本身地块就自带有商业——东航滨江中心。周边还有绿地缤纷城、上海梦中心等商业。
【教育资源】:附近的学校有上师大附中龙华中学、南洋模范中学(南校区)、徐汇中学。
【医疗配套】:周边有上海中医药大学附属龙华医院、复旦大学附属中山医院、上海敦复医院等,医疗资源非常丰富。
本文由【沪房新传播】团队整理
转载请声明出处
上海购房政策
点击图片了解详情
热盘推荐
识别二维码
进入“【蟠龙府】”看房通道
案场销售会第一时间与您联系
识别二维码
进入“群”看房通道
案场销售会第一时间与您联系
媒体矩阵
觉得有用的话,记得“分享·收藏·点赞·在看”哦!













