“
#最新消息#
黄浦·人民广场
全新盘
【海玥黄浦源】
等待入市
将推约93-577㎡高层&别墅
户型图&效果图发布
识别二维码
进入“【海玥黄浦源】”看房通道
案场销售会第一时间与您联系
01
基本信息
海玥黄浦源即为之前爆料的新昌城二期,整个项目是新昌路001、006、007街坊三个地块组成,分两期开发,项目一期(6#)就是【上海滩新昌城】,内环内有名的品质住宅小区,已经交付多年!
项目二期一共有两个地块(1#和7#),分别位于一期项目南侧和北侧(就是下图两大块旧式里弄)
目前,新昌城1#地块已经进入大底板浇筑阶段,预计1月13日完成大底板施工。7#地块保护性卸解工作基本完成,正在进行平移、原位保留建筑的加固施工,北坑地下一层开挖完成,预计农历新年前完成B1板结构施工。
1号地块底板总共分5块,浇筑顺序①→③+⑤→②+④
1#地块现场图
7#地块现场图
新昌城项目是当前上海市全面加快“两旧一村”改造攻坚战的重要组成部分,作为上海市第二批历史风貌保护街坊,被列入2022年黄浦区重大工程项目。
海玥黄浦源坐落于静安黄浦的交界处,位置得天独厚,人民广场、南京西路、南京东路等繁华商圈,静安雕塑公园就在附近!北临苏州河,西侧是交通大动脉南北高架,享尽城市核心资源~海玥黄浦源产品是超高层+低密别墅的组合,将重塑内环天际线,成为上海全新地标!
1#地块:分为南北两块:南块,东至新桥路,南至新闸路,西至成都北路,北至成都北路1012弄;北块,东至新桥路,南至新桥路51弄,西至九子公园,北至南苏州路。未来主力产品为超高层住宅。
1#地块由3栋超高层组成+1栋高层,其中1#楼建筑高度达165米!(超过海泰北外滩的160米和华侨城苏河湾双子塔的150米了)
1#49层,165米;
2#44层,142.8米;
3#45层,145.65米;
4#16层,53.70米;
1#地块效果图如下:
1#地块的北地块(即4#楼)紧邻苏州河,河对岸就是已经清盘的龙盛福新里!
7#地块:东至新昌路,南至北京西路,西至成都北路,北至山海关路。未来主力产品为别墅。
总用地面积:46089㎡;
总建筑面积:178560㎡
其中地上建筑面积:60275㎡
地下建筑面积:118285㎡;
根据规划,7#地块主要是文保建筑改造,容积率只有约1.3,限高12米,地上规划大多为2-3层——这意味着内环内非常罕见的别墅要来了!
7#地块产品为建面约238-650㎡的联排、双拼和独栋,在原有建筑的基础上做一些结构的变化,保有原来的建筑特色!
7#地块效果图如下:
02
推售信息
据悉,海玥黄浦源 将推约93-577㎡高层&别墅,预计将于下半年入市,目前项目户型图&效果图已发布!
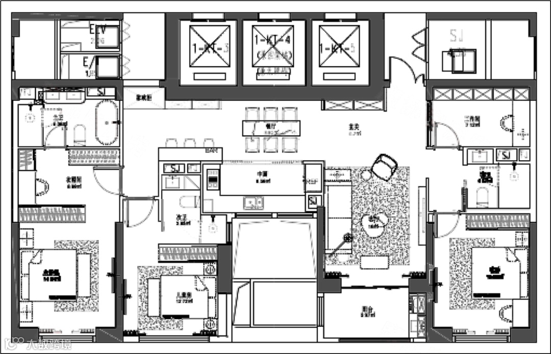
1号地块为超高层:
「93㎡1房」
「278㎡3+1房」
「186㎡3房」
「389㎡4+1房」
「577㎡6房」
「193㎡3房」
「215㎡3房」
「233㎡3房」
「396㎡4房」
「93㎡1房」
「275㎡4房」
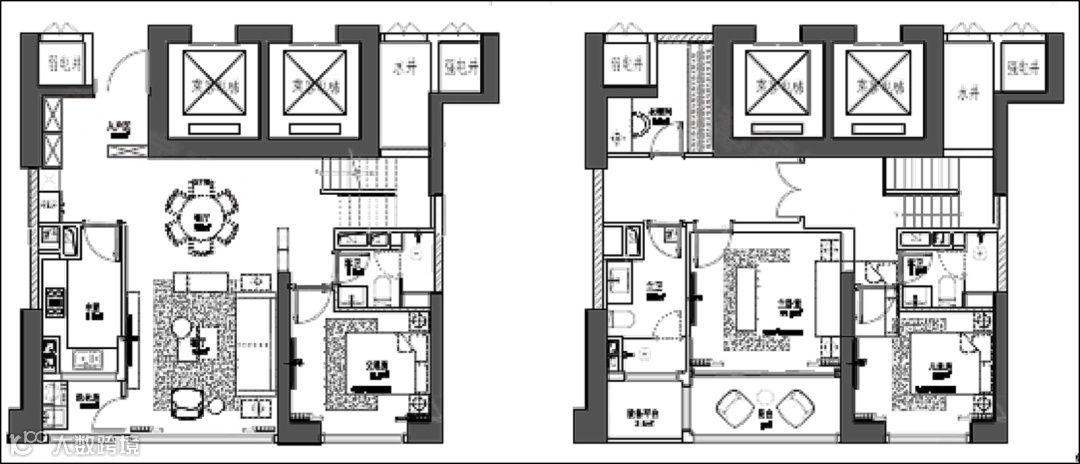
7#地块部分别墅户型:
「185㎡复式」
「329㎡别墅」
本文由【沪房新传播】团队创作
转载请声明出处
上海购房政策
点击图片了解详情
热盘推荐
识别二维码
进入“【海玥黄浦源】”看房通道
案场销售会第一时间与您联系
识别二维码
进入“群”看房通道
案场销售会第一时间与您联系
媒体矩阵
觉得有用的话,记得“分享·收藏·点赞·在看”哦!













