“
#最新消息#
浦东北蔡 内中环全新盘
【开云艾尚里】
预计六批次入市
将推约89-185㎡洋房产品
共计678套房源
效果图户型图发布
识别二维码
进入“【开云艾尚里】”看房通道
案场销售会第一时间与您联系
01
项目信息
2020年10月20日,浦开集团旗下子公司—上海北蔡新城镇开发有限公司底价竞得浦东新区北蔡南新地区1A-2、1-3地块(北蔡镇艾南村、南新村“城中村”改造地块)(即开云艾尚里)。
项目位于浦东内中环北蔡板块,与大华锦绣华城仅隔一条川杨河,具体地址是新浦路518弄。地块四至范围:东至1A-5地块、西至1A-1地块、南至1A-4地块,北至1A-9地块。
1-3地块地上建筑容积率为1.2,计容面积为29963.28㎡。1A-2地块地上建筑容积率为1.3,计容面积为58852.82平方米。
根据规划,项目拟建9栋小高层住宅、14栋多层住宅、1栋社区配套建筑、2个门卫、1个地下2层平战结合汽车库等,同时配套建设绿化、道路、广场等总体工程设施。规划房源678套。
最北侧是6栋10层高的住宅和1栋11层的租赁住宅。南侧则是5-6层低密住宅,目前从效果图基本能确定是洋房产品。
显然,这个小区将打造成中环内少有的低密度精品社区。
另外,拿地要求中有全装修比例100%,中小套比例不低于70%。
根据施工铭牌显示,项目于2021年7月28日开工,2024年7月30日竣工。
项目效果图
02
推售信息
据悉,开云艾尚里 将推主力户型约89-185㎡洋房产品,共计678套房源,价格方面可以参考,浦发仁恒有园的10.29万/㎡和大华锦宸府的10.1万/㎡;预计六批次入市!
全套户型图如下
「约89㎡ 2房2厅2卫」
「约89㎡ 2房2厅2卫」
「约95㎡ 2房2厅2卫」
「约143㎡ 3房2厅3卫」
「约146㎡ 3+1房2厅3卫」
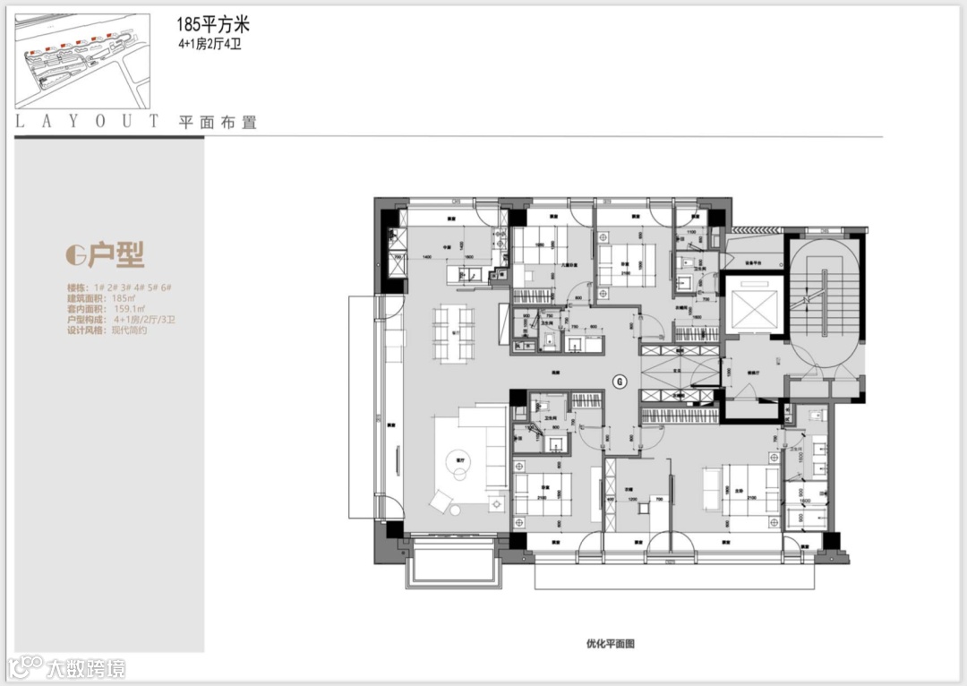
「约185㎡ 4+1房2厅3卫」
03
周边配套
北蔡,坐落于浦东的内中环间,地理位置不错,西侧是前滩与世博后滩,东侧是张江,北面是花木,周边堪称都是豪强板块。
项目地处浦东内中环,新杨思地块(高青区域)。新杨思地块(高青区域)以创新型生产服务和体验型生活服务为主导,形成多元体验的活力中心,打造成以商业、商办、文化为特色的综合型地区中心。是浦东金色中环带中少数几个位于内中环的区域。
新杨思地块位于三林镇、北蔡镇两镇交界之处,总体范围2.72平方公里,涉及核心区、东部城中村区域、南部协调区域、近期建设区共四个片区。而开云艾尚里就位于东部城中村区域。
交通方面:步行数百米可达的6号线和13号线,6号线东明路和13号线华鹏路(距离约800米),而项目正位于双轨交站点之间。
项目西侧约500米就是连接内中环的杨高南路,自驾上内环和中环直接一站式到达上海各个核心区!
商业方面:附近就有一家大型商场家乐福,家乐福商场中还有星巴克等商铺,步行就能走到。再远一些有巴黎春天和盒马鲜生等,还有浦三路菜场和大华建的一些配套商业,满足基本生活所需的配套相当齐全,居住舒适度不错,日常的生活消费基本区域内就可以解决了。
教育方面:昌里幼儿园、东方锦绣幼儿园、春之声幼儿园等。上南中学、新时代小学大华校区,尚博实验小学、昌邑小学、上海市实验学校、新世界实验小学、明珠小学C区等等。
医疗方面:板块周边有几家不错的医院,比如塘桥的仁济医院东院、儿童医学中心,第九人民医院(浦东分院)等。
生态休闲:有大华北公园、三林世博主题公园等。
本文由【沪房新传播】团队整理
转载请声明出处
上海购房政策
点击图片了解详情
热盘推荐
识别二维码
进入“【开云艾尚里】”看房通道
案场销售会第一时间与您联系
识别二维码
进入“群”看房通道
案场销售会第一时间与您联系
媒体矩阵
觉得有用的话,记得“分享·收藏·点赞·在看”哦!













