“
#最新消息#
上海政府已明确表示
要用10年时间完成“两旧一村”改造
上海到底还有多少旧房屋需要改造?
分别位于哪里?又将如何安排?
16区改造计划已曝光,一起来看!
最近,“城中村改造”的话题越来越火,上海政府也已明确表示,要用10年时间完成“两旧一村”改造。那么,上海到底还有多少旧房屋需要改造?分别位于哪里?又将如何安排?
16区改造计划已曝光,一起来看!
01
上海约697万㎡城中村待改造
前几天,国务院常务会议发布了一份文件《关于在超大特大城市积极推进城中村改造的知道意见》,重点提出:在超大特大城市推进城中村改造。
相比深圳、广州等大片城中村,上海更多的是旧式里弄、不成套的老式住宅。于是,上海政府紧跟国务院,对外官宣:要用两届政府10年时间完成“两旧一村”改造,主要包括:旧区改造、旧住房成套改造和“城中村”改造。
Photo by@上海黄浦
早在2014年上海就已经启动城中村改造。根据上海房管局最新数据介绍,2014-2020年第一轮启动49个城中村改造项目,2021-2022年第二轮新批准13个项目,一共62个城中村改造项目。
来源:上海徐汇
截至2022年底,上海市中心城区剩余零星二级旧里以下房屋约38万平方米,不成套旧住房总量约659万平方米,城中村总体量达到697万平方米,涉及18.1万住户。
62个城中村项目前期的拆迁、土地征收已接近完成。2016年至2020年“十三五”期间完成了281.3万平方米,2021年完成90.1万平方米,2022年1-7月完成20万平方米。城中村改造总共完成了约391.4万平方米。
数据来源:上海发布
2023年上海将完成中心城区零星旧改12万平方米,旧住房成套改造28万平方米,启动城中村改造项目10个。
来源:上海发布
2023-2025年城中村改造三年行动计划提出在未来三年改造项目30个,每年新启动10个改造项目,房屋面积不少于400万平方米,受益村民不少于1.3万户。
来源:上海市政府
更长远来看,上海为10年后也立下了奋斗目标,到2032年底将全面完成全市62个城中村改造项目。
数据来源:上海发布
Photo by@上海黄浦
截至去年年底,上海成片二级旧里以下房屋全部改造完成,还剩余零星二级旧里以下房屋约38万㎡,不成套旧住房总量约659万㎡待改造。也就是说,上海接下来还有约697万㎡的旧改任务。
02
16区城中村改造计划曝光
通过各区公众号资料整理,请以实际公布为准
随着城中村改造的全面启动,上海各区也都在纷纷推进中,目前16区改造计划已曝光!
其中,2023年将完成中心城区零星旧改12万㎡,旧住房成套改造28万㎡,以及启动“城中村”改造项目10个。
未来三年,计划改造项目30个,每年新启动10个改造项目,房屋面积不少于400万㎡,受益村民不少于1.3万户。最终到2032年底,城中村改造项目将全面完成!
上海16个区中,青浦区城中村改造项目最多,共有17个城中村改造项目,覆盖全区7个街镇。其次闵行9个,分布在七宝、梅陇、颛桥、浦江、华漕、吴泾等板块。嘉定也有3个城中村改造项目,朱桥、黄渡、新成村。而浦东新区计划有40个城中村点位。市中心和宝山暂未公布。
与此同时,上海在今年年初新还认定了八个区域为城中村改造项目。分别为:浦东北蔡镇、嘉定区工业区、宝山区顾村镇、青浦区赵巷镇、青浦区金泽镇、闵行浦江镇、松江洞泾镇、宝山大场镇。
召家楼改造规划图
未来,这些城中村将以全新面貌出现,提升居住环境的同时,也会进一步更新城市面貌。注:不成套旧住房一般是指厨卫不在房屋内,在过道另一面,通常是几户人家共用一个厨卫。一般老式住宅或公有住房是非成套住宅,如工人新村、老公房。
03
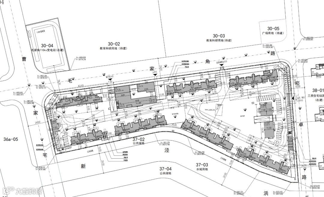
建发联发曹路项目
7月13日,建发&联发以总价133651万元摇中浦东新区曹路基地15-01地块,成交楼面价28369元/㎡,溢价率10%,房地联动价51500元/㎡。
8月4日,该地块设计方案公示,从拿地到规划方案公示,用时21天。
根据公示,项目由6栋16F高层住宅(包含保障房)以及2栋1-3F配套用房组成,预计可提供448套可售商品房,社区内部规划有健身点和儿童活动场地,1梯2户,仅12、15F带连廊。
目前该项目户型信息还未发布,但主力户型同样为100㎡以内的三房。
04
华发洞泾项目
7月11日,华发以70.63亿元竞得松江区洞泾镇SJS30006单元04-04、05-01、05-05号地块,成交楼面价19182元/平方米,溢价率10%,房地联动价50000元/平方米。
8月4日,该地块设计方案公示,从拿地到规划方案公示,用时21天。
根据公示,该地块规划为高层&洋房&叠加别墅产品,是个超大体量盘,其中04-04地块的门位于东面与南面,有8栋18层高高楼,6栋6层楼栋以及6栋4层高楼栋。18层高度约为57.2m,6层为18.55m,4层为12.55m。
05-01地块的门位于西面与东南角,有9栋18层高高楼,6栋6层楼栋以及5栋4层高楼栋。18层高度约为57.2m,6层为18.55m,4层为12.55m。
05-05地块的门位于西南角与东面,有一栋保障房、7栋18层高高楼、6栋6层楼栋以及2栋4层高楼栋。18层高度约为57.2m,6层为18.55m,4层为12.55m,保障房也为18层,高度为57.2m。
05
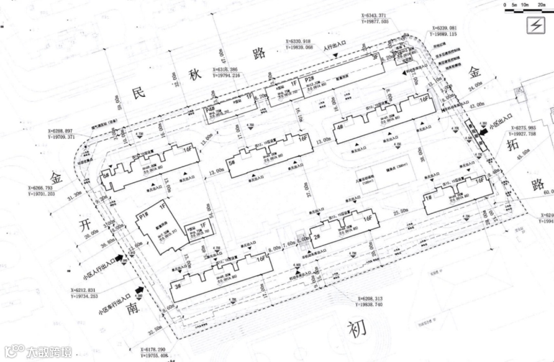
招商蛇口永丰街道项目
7月11日,招商蛇口以18.479亿元竞得松江区永丰街道SJC10011单元H02-16、H02-18号地块,成交楼面价25574元/平方米,溢价率10%,房地联动价49000元/平方米。
8月2日,该地块设计方案公示,从拿地到规划方案公示,用时19天。
根据项目规划设计方案,拟建17幢4-13F的商品住宅和1幢配套用房,其中H02-16地块可售住宅套数384,H02-18号地块可售住宅套数233。
06
大家嘉定新城项目
7月12日,大家&钱江&宁波维科以170836万元竞得嘉定区嘉定新城G09-2地块,成交楼面价25850元/平方米,溢价率10%,房地联动价50400元/平方米。
8月1日,该地块设计方案公示,从拿地到规划方案公示,用时19天。
规划设计方案公示,地块将建10幢15-25F的商品住宅和1幢公共配套,其中17层住宅楼4幢,22层住宅楼2幢,23层住宅楼1幢,25层住宅楼2幢,15层住宅带裙房(公共配套)1幢,1层公共配套1幢。
有消息称,该项目预计明年入市,主力户型为建面约100-129㎡3-4房,共计632套,联动价5.04万/㎡。
该地块坐落于嘉定新城板块,位于璀璨湖畔南侧,距离11号线嘉定新城站直线约2.5公里,距离马路站直线约2公里,交通出行略有不便,不过生活配套比较齐全。
07
保利发展重固项目
7月12日,大家&钱江&宁波维科以170836万元竞得嘉定区嘉定新城G09-2地块,成交楼面价25850元/平方米,溢价率10%,房地联动价50400元/平方米。
8月1日,该地块设计方案公示,从拿地到规划方案公示,用时19天。
规划设计方案公示,地块将建7幢13-16F的商品住宅,最高建筑高度为49.8米。
08
绿城梅陇地块
8月1日,绿城61.756亿元竞得闵行区梅陇社区MHP0-0304单元02-07-07地块,溢价率10%,成交楼板价47853元/平方米,地块房地联动价76000元/平方米。
8月10日,该地块设计方案公示,从拿地到规划方案公示,用时仅9天。
根据公示,项目由15幢15-26F住宅组成,含1幢保障房、1幢配套用房。其中,6号、11号两幢位于社区的核心位置,属于楼王;南北向的最大楼间距达到了63米;最大程度上保证了视野和采光,而且,6号、11号之间还建设了泳池。
本文由【沪房新传播】团队整理
转载请声明出处
上海购房政策
点击图片了解详情
热盘推荐
识别二维码
进入“群”看房通道
案场销售会第一时间与您联系
媒体矩阵
觉得有用的话,记得“分享·收藏·点赞·在看”哦!
最近,“城中村改造”的话题越来越火,上海政府也已明确表示,要用10年时间完成“两旧一村”改造。那么,上海到底还有多少旧房屋需要改造?分别位于哪里?又将如何安排?













