“
#最新消息#
闵行浦江镇
地铁浦江线汇臻路站
万达广场+上师大附中旁
「大华·星曜」
预计四季度开放售楼处
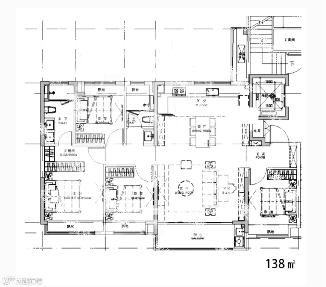
建面约85-130㎡3-4房
房地联动价4.3万/㎡
识别二维码
进入“【大华·星曜】”看房通道
案场销售会第一时间与您联系
01
基本信息
7月12日,上海二批次土拍第一轮,大华以总价473520万元成交闵行区浦江镇浦江拓展大型居住社区44-01、45-01地块,地块出让面积95129.6㎡,容积率2,溢价率10%,楼板价24888元/㎡,房地联动价43000元/㎡。
该地块地块直线距离浦江线汇臻路站约1.3公里,地块旁建发、新城、旭辉3个楼盘于2020年至2021年间陆续入市,售价约4.04万元/㎡。四至范围:东至新港河路、南至闸航路、西至永杰路、北至跃进河路,面积9.51公顷,容积率2,为住宅用地。
根据项目规划设计方案,拟建30幢11-17F住宅(含1幢保障房)以及配套用房等建筑。
44-01地块未来将会建设14栋12-17层的高层;
45-01地块拟建16栋11-17层高层住宅,其中E-14#为保障房。
值得注意的是,该地块并非是全部精装交付;
对于商品房住宅装标的规定是不低于3000元/平;
全装修住宅建面在50%以上;也就是说,未来最多有一半是毛坯交付的。
具体经济指标如下:
全套户型图首发:(过程稿,以开发商发布为准)
02
周边配套
大华浦江项目 位于闵行浦江镇板块,闵行区东南部,黄浦江东岸,是“一城九镇”中离市中心最近的新城镇,8号线与卢浦大桥更进一步拉近了浦江镇与市区的距离,区位优势为浦江镇发展提供了良好条件。
地块位于闵行区浦江镇南部黄浦江以东、大治河北岸,属于鲁汇居住社区,规划以宜居居住功能为主,区域属于新发展区域,城市界面较新。
交通方面,距离地铁8号线汇臻路站1.3公里,可直达中心城区,此外外有外环高速、红梅高架等高快速路。
自驾方面,项目距离浦星公路约400m,一路向北通达前滩,快速连接建设中的济阳路高架,连通中环,外环两大交通动脉。距离申嘉湖高速开车约4公里。
此外已经由市发改委批复的银都路越江隧道新建工程项目,建成后将进一步缩短去莘庄和虹桥机场的时间,提⾼交通便捷性。
论生活配套的好坏,有什么比家门口的万达广场更有说服力!距离地块0.4公里就有万达广场,是浦江目前最大的商业综合体,总建筑面积16万平方米。
而且万达看中的地方,人口密集程度可见一斑,自然而然成为板块价值高地。
教育方面,地块西面就是上海师范大学附属闵行实验学校,1公里外还有浦江第三小学。
项目距离国家级4A级旅游景区浦江郊野公园仅约2.5公里。
郊野公园总面积约15.29平方公里,相当于10个世纪公园,并拥有约5.3公里黄浦江岸线资源,是深受年轻人喜爱的网红打卡地!
识别二维码
进入“【大华·星曜】”看房通道
案场销售会第一时间与您联系
本文由【沪房新传播】团队创作
转载请声明出处
上海购房政策
点击图片了解详情
热盘推荐
识别二维码
进入“群”看房通道
案场销售会第一时间与您联系
媒体矩阵
觉得有用的话,记得“分享·收藏·点赞·在看”哦!













