“
#最新消息#
闵行·梅陇 全新盘
「绿城梅陇项目」 等待入市
将推约100-170㎡3-4房
指导价76000元/㎡
销售团队已组建!
可线上登记咨询!
01
项目信息
8月1日,今年二批次土拍第二轮首日,梅陇社区MHP0-0304单元02-07-07地块经多轮报价和摇号,最终由绿城房地产集团有限公司以617560万元(楼板价47852元/平方米)竞得,溢价56140万元,溢价率10%,房地产联动价7.6万元/㎡。
地块位置示意
项目土地面积51621.7平方米(折合77亩),规划用地性质为三类住宅组团用地,容积率2.5,地上计容建筑面积129054.25平方米。
项目规划设计方案已经公示。
据规划显示,项目由15栋15-16层高层组成,其中2#楼为17层的保障房,13-2#、15-2#、25#,三幢楼为社区配套。
值得注意的是,6号、11号两幢位于社区的核心位置,属于楼王;南北向的最大楼间距达到了63米,最大程度上保证了视野和采光,而且,6号、11号之间还建设了泳池。
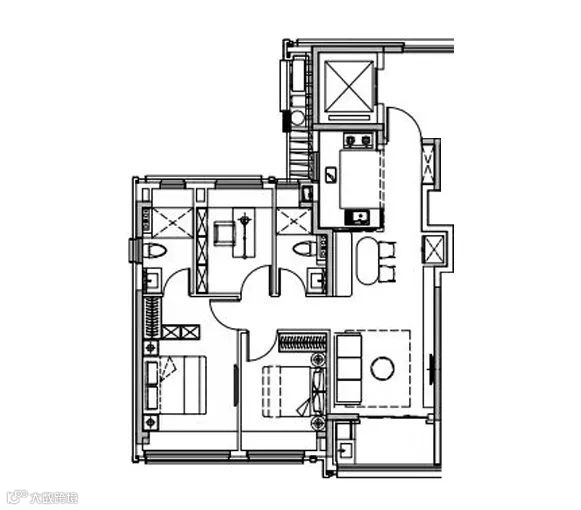
根据设计方案,项目共计提供主力3个户型,约100㎡3房约1056套,约130㎡3房约69套,约170㎡4房约64套,具体户型分布可参考下图:
项目户型图
(过程稿仅供参考,可能存在一定偏差)
建面约100㎡ 3房2厅2卫
建面约130㎡ 3房2厅2卫
建面约170㎡ 4房2厅2卫
识别二维码
进入“「 绿城梅陇项目 」”看房通道
案场销售会第一时间与您联系
02
开发商品牌
绿城中国控股有限公司于1995年1月在中国杭州成立,2006年7月在香港联交所上市,并先后引入九龙仓、中交集团作为重要股东。于2022年12月31日,绿城中国的最大单一股东中交集团持有本公司已发行股本总额约28%的权益。
历经二十八年的发展,公司秉持「品质为先」的发展战略指引,布局房地产上下游业务,形成重资产、轻资产和「绿城+」三大板块。重资产板块聚焦房产开发业务,轻资产板块强化代建业务,「绿城+」板块为两者提供强力支撑,上游加强产业整合,下游延展服务内涵。
作为中国精品物业营造专家,绿城中国一直坚持创新,不断探索人居关系,在营造美丽建筑的基础上,致力于为更多人打造美好生活。公司立足于浙江,聚焦核心区域,深耕一二线及优质三四线城市。在传统开发业务基础上,大力发展特色房地产业务,包括小镇、TOD及城市更新等相关业务。绿城中国凭借优质的开发品质、丰富的土地储备、高效的组织架构、优秀的管理团队,在业务所及的城市成功树立品牌形象,并累积了大量高质量项目的开发经验和卓越的营运能力,为可持续发展提供了强劲动力。
面向未来,公司将保持战略定力,围绕「战略2025」规划,以打造「TOP10中的品质标杆」为目标,以「最懂客户、最懂产品」为战略支点,轻重并举,全面提升能力,坚定走「全品质、高质量、可持续」的发展道路。
来源:绿城中国官网
03
周边配套
项目位于闵行梅陇板块,闵行2035规划全新公布,梅陇地区也再次被提上日程——中部地区被定位为“闵行新中心”,规划范围东至景洪路、南至银都路、西至梅富路、北至梅南路-春申塘,总用地面积约118万㎡!
绿城梅陇项目地处闵行、徐汇交界处优势区域。地块紧邻的在建上海中心城区西南部大型购物中心之一——“华之门”复合型地标型一站式消费商业文化综合体(计划2027年建成开业),未来将全面提升区域消费能级,促进生活品质的提档升级。
梅陇板块占据虹桥枢纽和南部科创中心结合点的中心区位,是上海西南重要门户区域。总体量约117.58万方,周边聚焦3大国家级产业区、5大科创中心、12大科创园等百亿科创资源,以及城市之门双子星,将打造宜居、宜商、宜业的城市新名片!作为梅陇新中心核心启动区的住宅组成部分,本项目未来将塑造城市美好人居蓝本。
地块坐拥三轨交汇的交通优势条件,700米内有轨交15号线华泾西站,未来可换乘轨交19号线、机场联络线。
另外,周边配套设施完善,与地块相邻的景东路,华展路、平驰路、华济路,均已完成建设,地块西侧规划有社区商业及相关配套设施用地,其中永联幼儿园已建成开园。地块1公里范围内有华泾镇社区卫生服务中心、华阳社区卫生服务站等医疗设施,有银行、邮局等日常生活网点,交通方面有770路、1210路、714路、718路、731路、浦西滨江1路等多条公交路线。
识别二维码
进入“「 绿城梅陇项目 」”看房通道
案场销售会第一时间与您联系
本文由【沪房新传播】团队创作
转载请声明出处
上海购房政策
点击图片了解详情
热盘推荐
识别二维码
进入“群”看房通道
案场销售会第一时间与您联系
媒体矩阵
觉得有用的话,记得“分享·收藏·点赞·在看”哦!













