

闵行·梅陇 全新盘
将推约100-177㎡3-4房
共计1172套房源
指导价76000元/㎡

玉质兰心,上海灵感。作为绿城2023海上人文新章,绿城·沁蘭园深度对话城市底蕴,于海派文化源点之上,乘风双TOD生活宏图:以“玉”和鸣建筑美学,以“兰”入园海派风情,著写精致而优雅的高阶生活理想。
识别二维码
进入“「绿城·沁蘭园」”看房通道
案场销售会第一时间与您联系
8月1日,今年二批次土拍第二轮首日,梅陇社区MHP0-0304单元02-07-07地块经多轮报价和摇号,最终由绿城房地产集团有限公司以617560万元(楼板价47852元/平方米)竞得,溢价56140万元,溢价率10%,房地产联动价7.6万元/㎡。
项目土地面积51621.7平方米(折合77亩),规划用地性质为三类住宅组团用地,容积率2.5,地上计容建筑面积129054.25平方米。
该地块拿地仅9天,设计方案今天就已经出炉,速度之快堪称奇迹!
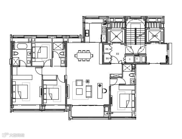
据规划显示,项目由15栋15-16层高层组成,其中2#楼为17层的保障房,13-2#、15-2#、25#,三幢楼为社区配套。

值得注意的是,6号、11号两幢位于社区的核心位置,属于楼王;南北向的最大楼间距达到了63米,最大程度上保证了视野和采光,而且,6号、11号之间还建设了泳池。

根据设计方案,项目共计提供主力3个户型,约100㎡3房约1056套,约135㎡3房约69套,约177㎡4房约64套,具体户型分布可参考下图:

项目户型图:
建面约100㎡ 3房2厅2卫

建面约135㎡ 3房2厅2卫

建面约177㎡ 4房2厅2卫
识别二维码
进入“「绿城·沁蘭园」”看房通道
案场销售会第一时间与您联系
绿城中国控股有限公司于1995年1月在中国杭州成立,2006年7月在香港联交所上市,并先后引入九龙仓、中交集团作为重要股东。于2022年12月31日,绿城中国的最大单一股东中交集团持有本公司已发行股本总额约28%的权益。
历经二十八年的发展,公司秉持「品质为先」的发展战略指引,布局房地产上下游业务,形成重资产、轻资产和「绿城+」三大板块。重资产板块聚焦房产开发业务,轻资产板块强化代建业务,「绿城+」板块为两者提供强力支撑,上游加强产业整合,下游延展服务内涵。
作为中国精品物业营造专家,绿城中国一直坚持创新,不断探索人居关系,在营造美丽建筑的基础上,致力于为更多人打造美好生活。公司立足于浙江,聚焦核心区域,深耕一二线及优质三四线城市。在传统开发业务基础上,大力发展特色房地产业务,包括小镇、TOD及城市更新等相关业务。绿城中国凭借优质的开发品质、丰富的土地储备、高效的组织架构、优秀的管理团队,在业务所及的城市成功树立品牌形象,并累积了大量高质量项目的开发经验和卓越的营运能力,为可持续发展提供了强劲动力。
面向未来,公司将保持战略定力,围绕「战略2025」规划,以打造「TOP10中的品质标杆」为目标,以「最懂客户、最懂产品」为战略支点,轻重并举,全面提升能力,坚定走「全品质、高质量、可持续」的发展道路。
识别二维码
进入“「绿城·沁蘭园」”看房通道
案场销售会第一时间与您联系
绿城梅陇项目地处闵行、徐汇交界处优势区域。地块紧邻的在建上海中心城区西南部大型购物中心之一——“华之门”复合型地标型一站式消费商业文化综合体(计划2027年建成开业),未来将全面提升区域消费能级,促进生活品质的提档升级。

地块坐拥三轨交汇的交通优势条件,700米内有轨交15号线华泾西站,未来可换乘轨交19号线、机场联络线。

另外,周边配套设施完善,与地块相邻的景东路,华展路、平驰路、华济路,均已完成建设,地块西侧规划有社区商业及相关配套设施用地,其中永联幼儿园已建成开园。地块1公里范围内有华泾镇社区卫生服务中心、华阳社区卫生服务站等医疗设施,有银行、邮局等日常生活网点,交通方面有770路、1210路、714路、718路、731路、浦西滨江1路等多条公交路线。
识别二维码
进入“「绿城·沁蘭园」”看房通道
案场销售会第一时间与您联系
识别二维码
进入“群”看房通道
案场销售会第一时间与您联系