“
#最新消息#
浦东400万级年度爆款红盘!
18号线约500米进站
低密精致社区+1梯2户无连廊神户型
森兰·航荟名庭
劲爆优惠首开热销中!
建筑面积约90-136㎡3-4房
均价约4.8万/㎡!
叠加新政后,首套30%首付,4.1%利率
上车门槛进一步降低,入手正当时
如果把森兰·航荟名庭放到总价约400万级新房赛道,无论是哪个维度,项目都具备降维打击般的优势!
①地段:森兰航荟名庭占位浦东中部腹地,纵享张江一线产业利好辐射,坐拥航头丰盛城市配套!
②交通:浦东目前总价400万级仅有的步行进站地铁房,距离18号线航头站仅约500米!
③社区:容积率仅约1.5低密社区!
④户型:你敢信,森兰·航荟名庭用3个神户型重新定义了浦东400万级人居品质新高度,后面我们深度聊!
⑤装修:硬核装修,大牌云集!全屋配备东芝空调、威能两用壁挂炉;卫生间马桶、台盆、龙头皆选用科勒品牌;厨房燃气灶、油烟机选用老板品牌!
⑥开发商:浦东国民开发商——外高桥集团股份倾力打造,买得放心住得舒心!
综上所述,无论是地段、交通、社区、品牌、户型还是装修,森兰·航荟名庭都无懈可击,堪称上海总价约400万级新房的真“六边形战士”。
对于全市刚需客户来说,项目都是错过不再有的城市级爆款,务必好好把握!
项目效果图仅供参考,非交付标准
识别二维码
进入“【森兰·航荟名庭】”看房通道
案场销售会第一时间与您联系
01
18号线地铁房,浦东腹地成熟居住区
丰盛配套无需等待入住即享!
航头一直是浦东腹地人口较为密集的居住区,板块发展多年,各项生活配套已然醇熟。森兰·航荟名庭又占据航头板块核心位置,所以入住后即可享受丰盛配套,无需等待。
首先是交通,森兰·航荟名庭直线距离18号线航头站仅约500米,18号线是公认的浦东换乘王,去往陆家嘴的沿途可换乘多条轨交,几乎畅达浦东所有重要城市节点,也可直达浦西杨浦。
自驾方面,项目邻近沪南公路、林海公路等主干道,串联S32申嘉湖、S2沪芦高速、中环路等,畅达全城!
示意图,仅供参考商业方面,项目周边有上海苏航生活广场、咸塘小镇商业步行街,集中式大型商业有周浦万达广场、浦乐生活广场(在建中)。
医疗方面:项目周边有上海龙华医院浦东分院 (三甲医院)、上海南航医院等。
休闲娱乐方面:项目可自驾迅捷通达召稼楼古镇、新场古镇、浦江郊野森林公园、上海野生动物园、迪士尼度假区等。
示意图,仅供参考
示意图,仅供参考
尤其值得一提的是教育方面。
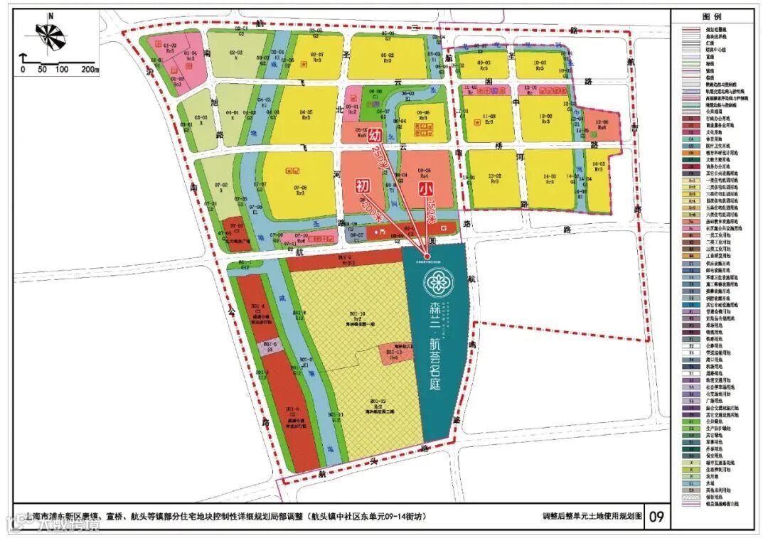
项目隔壁就是海洲幼儿园,北面还有2块教育用地,可以说从幼儿园小学到初中的教育都近在咫尺。未来业主每天可步行接送孩子上下学,让孩子的成长之路更从容,也更安全。(免责声明:以上学校相关信息来自上海2035航头板块规划公示,仅供参考。不作学区承诺,对口信息以每年政府公示为准)
来源上海2035航头公共服务与基础教育设施规划图
02
浦东“国民”开发商打造森系生活!
区域品质新标杆来了!
在当下这个时代,开发商的品牌分外重要。而这一点正是森兰·航荟名庭的底气与优势!项目由浦东“国民”开发商——外高桥集团股份开发,品牌值得信赖,品质值得期待!
外高桥集团股份与城市共融共进,先后打造外高桥保税区、外高桥港综合保税区、浦东机场综合保税区。可以说,没有人比外高桥集团股份更懂浦东的发展脉络。跟着这样的开发商买房,无疑是躺赢的节奏。
外高桥集团曾经一手打造了浦东北部低密品质住区标杆:“森兰国际社区”,森兰·航荟名庭可以说是外高桥集团带给浦东南部首个诚意满满的作品。
项目秉持“生态、宜居”开发理念,为航头带来了高品质“森系生活”。
项目不辜负容积率仅1.5的土地天赋,秉持“生态、宜居”开发理念,打造了小高层结合洋房的低密社区。
项目效果图,非交付标准,仅供参考
社区建筑采用当下流行的现代简约设计风格,中轴对称景观,立面线条运用简洁大气,营造沉稳大气、高端奢华的社区品质。
社区内部,项目以“森氧家园”为设计理念,以公园+花园的双园社区、品质归家入口、特色阳光草坪、双会客系统、主题儿童乐园、健身系统这六大功能价值为主,并且融合由三条不同主题的林荫步道和三个圆形景观节点组成的“绿林项链”全区漫步系统,共同构成全区“6+1”森氧家园系统。
结合航头当地鹤文化IP形象,塑造“森氧鸟”,将融入社区景观中。另外项目自带约1360㎡商业配套,让业主足不出户纵享繁华日常!
森兰·航荟名庭效果图
项目占地约6.9万平方米,容积率1.5,总建筑面积15.9万平方米(地上10.7万、地下5.2万平方米)。
整体规划层数南低北高,北侧沿街布置商业,形成国际住区合理化布局,提供居民生活的便利性和品质感;中轴对称的景观大花园布局,融合简约现代的立面风格,兼具实用性于美观性,让森系生活的景观价值最大化。
视频https://mp.weixin.qq.com/s/vsu3WpggSyeVVIPg5MCgGA
据悉,航头镇将2023年定位为高质量发展中追赶超越的重要一年。「森兰·航荟名庭」是外高桥集团股份在航头打造的首个项目,集团将与航头镇携手把握时代机遇,发挥国企担当,以丰富的开发经验和管理能力,努力为航头再添绿色生态、宜居生活的高品质住宅。
03
一梯两户、无连廊、神户型!
森兰·航荟名庭在传统飞机户型上做出了创新,在有限的面积段做出了足够的功能性和空间尺度感。这足以让项目在一众刚需盘中脱颖而出。
项目还推出了精装和毛坯两种交付标准,无论是喜欢精装交付省心更省力还是偏爱毛坯交付后期个性化装修,都能找到合适的产品
首先是洋房的建面约90㎡的3室2厅2卫,一梯两户的设计,有着不低的得房率。
这个户型最大的特点是,没有一寸面积是浪费的,约90㎡的建面上做足了功能。
建面约90㎡3房2厅2卫户型图解读
入户便是宽敞的近正方形玄关空间,这在90㎡的小户型中不算常见。入户门和入厅空间视觉错位,增强了隐私性。
竖向的LDK设计,让厨房与客餐厅空间南北正对。足够大的面宽,让厨房做出来扁U型的设计,厨房的窗也更大,北向采光更优秀。
预留更是可以放下一个大双开门冰箱,拿洗切炒的动线也十分合理。厨房空出的空间也足以容纳下两个人的忙忙碌碌。
由于玄关和三个卧室以及客卫呈两边垂直布置,整个户型没有走廊,客厅空间更宽敞。阳台两面开窗,采光更好。
北房间利用飘窗可以做出床和柜子当卧室使用。主卧套房宽敞明亮。次卧更是可以隔出学习工作区和休息区,若做儿童房非常实用,功能性很强。
建面约90㎡3房2厅2卫样板间实拍
而小高层的设计则是更独具匠心,14层的层高全楼无连廊
入户设计更是独树一帜,森兰·航荟名庭将原本1梯2户的设计做成了类1梯1户
无论是100㎡的3房2厅2卫还是建面约136㎡的4房2厅2卫,每位户业主都能拥有私人专属的入户空间!
类1梯1户入户设计
来看建面约100㎡的3房2厅2卫,所有功能空间都围绕LDK横厅设计,全屋没有走廊,每一寸空间都用在了刀刃上。
建面约105㎡的3房2厅2卫户型图解读
玄关空间宽敞大气,不仅可以打一组大玄关柜增加收纳,还能放下卡座,坐着换鞋更舒适。入户门视角和屋内视角基本错开,隐私性杠杠的。
LDK的横厅设计,在100㎡的面积段实属少见。足够的面宽,更是让阳台更加宽敞明亮。
U型厨房,不仅兼顾了采光和收纳,足够长得径深更是足以容纳三个人同时操作。
客卫做了三分离设计,淋浴房利用墙体的空隙预留了壁龛空间。还有个亮点是洗手台后侧就是北房间的门,完美利用空间,没有丝毫浪费。
北房间放得下1.5米的床,也能利用飘窗做出床体让空间更加宽敞。
主卧有一小段室内玄关,隐私性更好。
次卧同样可以分出学习工作区和休息区,功能性十足。
建面约105㎡3房2厅2卫样板间实拍
建面约130㎡的4房2厅2卫更是有豪宅大平层的空间感和功能划分。
建面约136㎡4房2厅2卫户型图解读
宽敞的玄关和U型厨房与百平三房类似不多赘述。
大面宽纯客厅的设计,让人眼前一亮,餐厅与客厅空间分离,功能划分更加彻底
4个房间中3个都是南向,主卧更是做出了步入式衣帽间,豪宅感十足,其余3个房间也足够宽敞明亮,非常适合3代同堂的生活模式
建面约136㎡4房2厅2卫样板间实拍
识别二维码
进入“【森兰·航荟名庭】”看房通道
案场销售会第一时间与您联系
2024沪房新传播助力新房置业
推出9大免费服务,详情可添加选房师微信咨询!
咨询9大免费服务,口令“购房无忧”
本文由【沪房新传播】团队创作
转载请声明出处
上海购房政策
点击图片了解详情
热盘推荐
识别二维码
进入“群”看房通道
案场销售会第一时间与您联系
媒体矩阵
觉得有用的话,记得“分享·收藏·点赞·在看”哦!













