“
#最新消息#
徐汇·滨江 全新品
「中海西岸徐汇滨江项目」 等待入市
将推约100-270㎡房源
指导价142000元/㎡
「最新公区|效果图」
识别二维码
进入“【徐汇龙华项目】”看房通道
案场销售会第一时间与您联系
01
基本信息
2023年上海三批次土拍,中海集团&上海龙华建设(中海&上海西岸)以240.16亿元,成功竞得徐汇区西岸数智中心地块,即龙华街道198-A-03、198-A-04、188N-F-04、188N-F-05、188N-U-04、198-C-02等6个地块,住宅房地联动价为14.2万/㎡!
188N-F-04地块:普通商品房用地,用地面积52514.3㎡,计容面积132336.04㎡,容积率约2.52,限高100米;
188N-F-05地块:科研设计用地,用地面积5914.1㎡,计容面积47431.08㎡,容积率约8.02,限高120米;
188N-U-04地块:租赁住房、办公、商业用地,用地面积16266.4㎡,计容面积131757.84㎡,容积率8.1,限高130米,其中租赁住房24%、办公楼38%、商业用地38%;
198-A-03地块:租赁住房用地,用地面积10499.3㎡,计容面积33177.79㎡,容积率3.16,限高100米;
198-A-04地块:普通商品房用地,用地面积29195㎡,计容面积76782.85㎡,容积率2.63,限高100米;
198-C-02地块:商业、办公用地,用地面积20786.1㎡,计容面积251719.67㎡,容积率12.11,限高250米,其中商业用地34%、办公楼66%!
另外住宅部分要求需配建5%以上的保障性住房,中小套户型不得低于商品住宅部分建筑面积的20%,也就是说未来该项目小户型仅占比约20%,具备成为真正成为豪宅社区的关键因素;全装修比例100%,商品住宅部分的房屋装修标准为5000元/平方米!
项目将建成涵盖办公、商场、高端住宅、长租公寓复合型业态的综合体项目,与毗邻的西岸数字谷、西岸传媒港联合打造“产业黄金三角”。项目地块位于“一江一河”中黄浦江滨江核心地段,这里也是西岸滨江功能区,不仅有高品质的公共开放空间,还有串珠成链的产业组团。
实景航拍图
该项目的初步计划面积已初露端倪。建面约100㎡、建面约145㎡、建面约180㎡、建面约200㎡和建面约270㎡。
西岸数智中心 4#住宅地块总平面图初稿
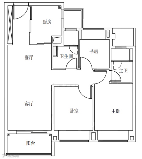
网传户型图如下:(过程稿仅供参考)
建面约100㎡ 3房2厅2卫
建面约145㎡ 4房2厅2卫
建面约180㎡ 4房2厅3卫
02
开发建设要求
一、公共服务设施要求:
在198-A-03、198-A-04、188N-F-04、188N-F-05、188N-U-4地块内配置11321平方米(计容)的公共配套设施。
其中198-A-03地块配建不小于3240平方米公共配套设施,包含长者食堂465平方米,社区学校1200平方米,养育托管点500平方米,文化活动室500平方米,生活服务点375平方米,健身驿站200平方米;
198-A-04地块沿龙兰路配建不小于3850平方米公共配套设施,包含居委会200平方米,综合为老服务中心2000平方米,卫生服务站1000平方米,老年活动室300平方米,生活服务点350平方米;
188N-F-04地块沿绿地配建不小于2250平方米公共配套设施,包含居委会200平方米,文化活动室800平方米,日间照料中心500平方米,养育托管点500平方米,生活服务点250平方米;
188N-F-05配建不小于400平方米公共配套设施,为文化活动室。188N-U-4地块配建不少于1581平方米的公共配套设施,包含卫生服务站700平方米、养育托管点500平方米、生活服务点381平方米!
公共配套设施需和所属地块同步建设,同步竣工,同步交付,布局应相对独立,相对集中,沿街布置,建成后产权无偿交政府相关部门!
二、公共空间建设要求:
设置环通龙启路以及规划一路的地上连通道系统,连接商业、商办、科研地块二层及以上;
鼓励188N-U-04、198-C-02、198-C-03地块间整体开发,198-C-02、198-C-03在不突破198-C-02地块限高前提下开展一体化设计;
商办总建筑量及跨规划一路上方联通建筑计容面积可以与198-C-02、198-C-03、188N-U-04地块间统筹布置,受让人需出资建设公共部位连廊,跨龙吴路部分公共连廊需整体设计,并预留相应接口,具体以审定方案为准!
三、功能管理要求
1、功能业态要求: 依托浦江实验室国家级科研平台,推动打造黄浦江南延伸段WS5单元西片区成为上海人工智能产业集聚标杆,通过与周边功能组团的有效联动,构建产、城、人融合为一体的西岸数智中心 。
2、引入行业要求: 188N-F-05地块引入企业应符合区域功能定位,依托周边国家级重大项目落户契机,引入人工智能头部企业,推进人工智能产业赋能,实现传统工业智能化升级,加强培育高能级孵化器,着重科研成果转化!
四、部分其他特别约定
198-C-02、188N-U-04地块配建地下停车场,满足24小时开放要求;
198-C街坊、188N-U街坊、188N-F-05地块地下空间整体开发,198-C街坊地下空间可以与23号线龙启路站轨交站厅层连通;
188N-F-04地块沿天钥桥南路一侧,需预留3米空间作为公共人行通道,适应未来天钥桥南路交通需要;
受让人需出资建设198-A-01、188N-F-01、188N-F-03、188N-U-01、188N-U-03、198-C-01等6处公共绿化,计16721.6平方米,建设标准不低于1500元/平方米;
为确保产业落地,188N-F-05地块须与188N-F-04住宅地块同步开工!
03
周边配套
徐汇西岸滨江功能区着力打造“一港一谷一城一场一湾一心”六个百万级产业组团,构建起数字经济、生命健康、文化创意、现代金融互为支撑的产业结构,在服务国家、上海战略和区域发展中发挥产业联动作用,努力成为经济高质量发展的强劲增长极。
其中的“一心”就是西岸数智中心。这里将建成涵盖办公、商场、高端住宅、长租公寓复合型业态的综合体项目,与毗邻的西岸数字谷、西岸传媒港联合打造“产业黄金三角”。同时,这里也是浦江实验室的配套延伸,依托其自身的全业态打造能力,建设上海人工智能产业集聚标杆。
片区规划示意图
作为徐汇滨江西岸产业组团布局中的重要一环,西岸数智中心被寄予引领上海人工智能产业发展的厚望。
十四五规划的六大国家实验室之一——浦江实验室已确定入驻西岸数智中心,该实验室聚集了上海期智研究院团队、上海鲲鹏生态创新中心团队(华为)等国内行业顶尖团队,将建设全球领先的人工智能实验室。而未来的西岸数智中心将以浦江实验室为核心,建设上海人工智能产业集聚标杆。
项目周边未来发展潜力巨大,1km距离外就是已经逐渐成型西岸智慧谷&传媒港。西岸智慧谷引入了腾讯、阿里巴巴、网易、微软、小米、寒武纪等企业总部入驻,涵盖中国互联网的半壁江山。
西岸传媒港在西岸艺术走廊的美术馆群的基础之上,吸引了中央电视台、湖南卫视、灿星、华人文化等中国传媒届的顶级流量,几乎承包了你收看的大部分爆款电视节目、艺术展览。
除此之外,就在项目周边空地,还承载着规模宏大的徐汇滨江中城规划。
商业方面:项目周边有绿地缤纷城、保利时光里、正大乐城,云锦天地、绿地滨江CLUB、恒基星扬等商业中心。
教育方面:周边二手房(徐汇公园道壹号&徐汇馨苑)目前对口九年制师三实验,门口就是2020年新开的汇师小学中城分校区,对教育资源的期待值可以直接拉满。(教育免责:政府不对预售房屋进行学区划分,项目对口学校最终以交房后教育主管部门公布为准)
交通方面,项目距离11号线龙耀路站仅400米,地块北面就是龙耀路隧道出入口,前往前滩、后滩等地区也非常便捷。
除此之外,项目位于徐汇滨江岸边距离也并不远,距江边直线距离不到3公里,近十年的发展,徐汇滨江已经变成了徐汇的文化名片,云集沪上知名艺术馆,每年接纳来自全球的知名大展,举办各类音乐节等。
识别二维码
进入“【徐汇龙华项目】”看房通道
案场销售会第一时间与您联系
本文由【沪房新传播】团队整理
转载请声明出处
上海购房政策
点击图片了解详情
热盘推荐
识别二维码
进入“群”看房通道
案场销售会第一时间与您联系
媒体矩阵
觉得有用的话,记得“分享·收藏·点赞·在看”哦!













