“
#最新消息#
徐汇·华泾 华之门TOD品质新盘
「嘉华·嘉俊庭」 等待认购
将推约99-146㎡3-4房
预计440套房源
均价8.1万元/㎡
「嘉俊庭 部分户型样板房实拍」
「设计师专访|嘉俊庭—筑建格调至上」
识别二维码
进入“「嘉华·嘉俊庭」”看房通道
案场销售会第一时间与您联系
01
基本信息
去年9月23日,第三批次集中土拍中,徐汇城投集团联合合作方竞得两地块:联合招商蛇口,以22.6亿元竞得华泾镇XHPO-0001单元D2B-1地块(雍汇庭,已入市);同时联合嘉华集团、上海龙华,以37.3亿元竞得华泾镇XHPO-0001单元D1-2、D5B-1地块。
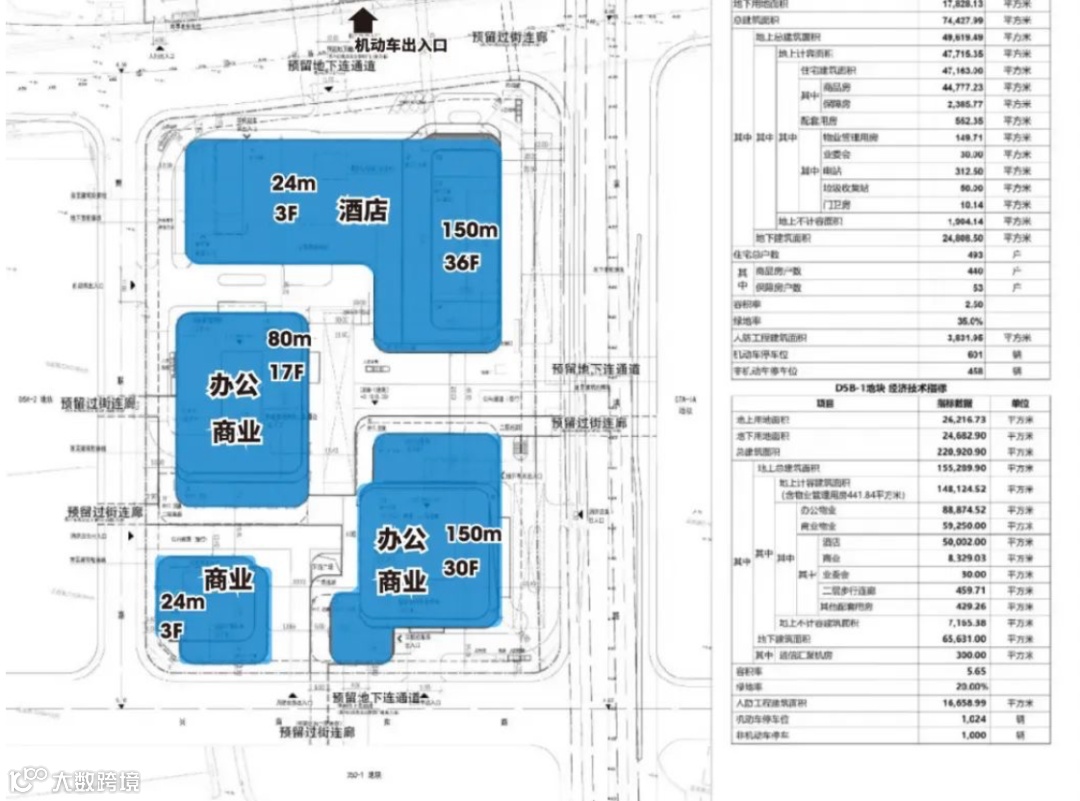
嘉俊庭共由D1-2、D5B-1两块地共同构成。
总建面约19.6万㎡,其中住宅仅占约1/4的体量,其余为办公、商业与酒店业态。
D1-2是纯住宅地块,容积率2.5,限高80米,80%百平米中小套型,100%全装修,有5%保障房,住宅套数下限为487套,房地联动价为8.1万元/㎡。
D5B-1地块,包含了酒店、办公和商业用地,商业40%、办公60%,未来将会诞生一栋150米高的摩天大楼。办公40%自持,商业100%需自持。
开发商品牌
嘉华国际集团有限公司(「嘉华国际」或「集团」;股份代号:00173)为嘉华集团旗下之房地产业务旗舰,创立并扎根于香港,至今已发展成以香港、长三角及珠三角地区为策略据点之综合发展商及投资者,所开发之项目均以品精质优见称。
05:30
02
推售信息
据悉,嘉俊庭 将推约99-146㎡3-4房,指导价8.1万元/㎡,预计将于明年一季度入市!
最新户型图如下:
99㎡户型2梯4户,总高26层,共计308套,首层层高3.4米,标准层高3米,顶层2.9米;
122㎡西边套,17层,两梯两户(一梯一户),34套,首层3.4米,标准3.1米,顶层3米;
146㎡东边套,17层,两梯两户(一梯一户),34套,首层3.4米,标准3.1米,顶层3米。
03
周边配套
交通方面:项目紧邻地铁15号线华泾西站。除了其本身是建立在轨交华泾西站上盖的大型综合体之外,整个华之门周边,未来将有4条轨交与三座站点。
轨交线路包含已开通的15号线、在建中的23号线和机场联络线,还有规划中的19号线。它们也将华泾和城央各地拉得更紧密,补足板块的交通短板。
整个华之门地上总开发体量超过81万平方米,直逼香港置地西岸金融城项目的108.7万平方米体量。规划业态涵盖了商业、办公、酒店、住宅、教育与社区服务等各类设施,交通条件也比较好。
规划图
据悉,华之门购物中心将于今年年中全面开工,预计2027年建成开业。
华之门总商业面积将达到30万㎡,是兴业太古汇、国金中心商业面积的3倍多,建成后将是徐汇区最大的商业地标!其中地上商业面积24万㎡,地下商业规划面积也超过了6万㎡。
除了高能级的规划和便捷的通勤方式之外,华泾目前的发展也已经非常完善,特别是在教育和医疗资源方面。
区位示意图,仅供参考
教育方面:徐汇的资源非常丰富,有众多优秀的公办和民办学校。小学有徐浦小学、华泾小学、高安路第一小学;中学有位育中学、徐汇中学南校、紫阳中学、上汇实验学校等。(新房不承诺学区,具体信息以教育局政府机关单位确认为准)
位育中学实景图,仅供参考示意
医疗方面:徐汇中心区汇聚了多家著名医院,包括市六院、八院、龙华医院、中山医院等,都是上海知名的三级甲等医院。未来徐汇区南部医疗中心建成后,将整合中心医院、大华医院和区精神卫生中心的医疗资源,成为徐汇区医疗网络中建筑体量最大的医疗共同体,就医更加便利。
六院实景图,仅供参考示意
识别二维码
进入“「嘉华·嘉俊庭」”看房通道
案场销售会第一时间与您联系
本文由【沪房新传播】团队整理
转载请声明出处
上海购房政策
点击图片了解详情
热盘推荐
识别二维码
进入“群”看房通道
案场销售会第一时间与您联系
媒体矩阵
觉得有用的话,记得“分享·收藏·点赞·在看”哦!













