“最新消息
普陀·长征 全新盘
「越秀·苏河·和樾府」等待入市
将推主力约99-188㎡3-4房
联动价10.2万元/㎡
线上接待预约中!!
项目生活馆已开放,五一气味艺术展进行时,现场实拍图。
项目推荐 · 理由
项目推荐理由丨展开动画
内容提要:
*01基本信息
*02推售信息
*03周边配套
2023年上海四批次土拍中,热门地块无疑是普陀区北新泾产业园区W061001单元pt0259a街坊pt0259a-09地块,共计11家房企参与由越秀竞得,成交价约47.85亿,溢价率10%,楼板价66210元/㎡,房地联动价为102000元/㎡!
据悉,项目将推建面约99-188㎡户型3-4房,品质不俗,据说还自带恒温泳池!容积率只有1.8,比常规市区住宅项目要更低一点,所以越秀打造的清一色小高层,全都无连廊,楼间距也很快宽阔!
除了全石材干挂的外立面、小区会所设置恒温泳池、精装地下车库等硬性指标,各楼栋均为一梯一户,并配置私家电梯厅;据悉,厨房将采用Miele或者Gaggenau,冰箱也基本确定为Gaggenau(最终以装修交付为准)。
公园绿岛一半公园,一半城。本案不仅享受超百万方公园环抱,其内部还打造了约9500m²核心景观轴,营造高品质绿色社区。
高定会所本案配置含恒温泳池、私人健身房、儿童活动空间等功能场域的约1300m²私享会所,打造社交公共活动空间。
本案为12-13层的纯低密社区(2023年上海土拍市场仅供应3幅低于容积率2.0的地块)约5000元/㎡装标,100%全屋精装,精甄国际一线前沿品牌。四重原石配置:外立面、地库车行道、人行路、围墙需铺设石材,四重原石营造,延续了外滩百年建筑的永固质感。
识别二维码
进入“「越秀·苏河·和樾府」”预约看房通道
案场销售会第一时间与您联系
据悉,越秀·苏河·和樾府 将推约99-188㎡3-4房(其中建面约99㎡户型占比约30%,建面约127㎡户型占比约40%,建面约143㎡和188㎡户型各占约15%;),共计520套房源,房地联动价102000元/㎡,预计二季度入市!
全套户型图
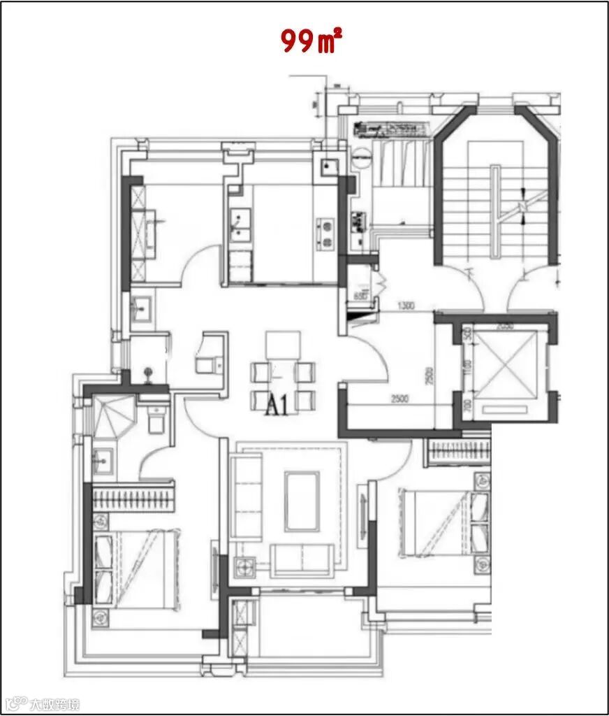
A1:99㎡边户户型
99㎡边户户型:该户型为飞机户型,南北通透,三面宽朝南,采光通风良好。电梯配置双侧贯通门,相当于独享前室空间,私密性较高。户型亮点:客餐厨一体化空间,动线流畅;双卧朝南,主卧套配置齐全,外加转角飘窗,视野光照较好;全飘窗设计带来更多使用空间。缺点是,无独立玄关,餐厅处在交通空间,略小且无自然采光,南次卧采光稍差。
A2:99㎡边户户型
99㎡中间户户型:该户型为飞机户型,南北通透,三面宽朝南,采光通风良好。电梯配置双侧贯通门,相当于独享前室空间,私密性较高。
户型亮点:客餐厨一体化空间,动线流畅;双卧朝南,主卧套配置齐全;全飘窗设计带来更多使用空间。
户型缺点: 缺乏独立玄关,餐厅无采光,和边户相比缺少转角飘窗,主卫窗户开在凹槽处,南次卧采光略差。
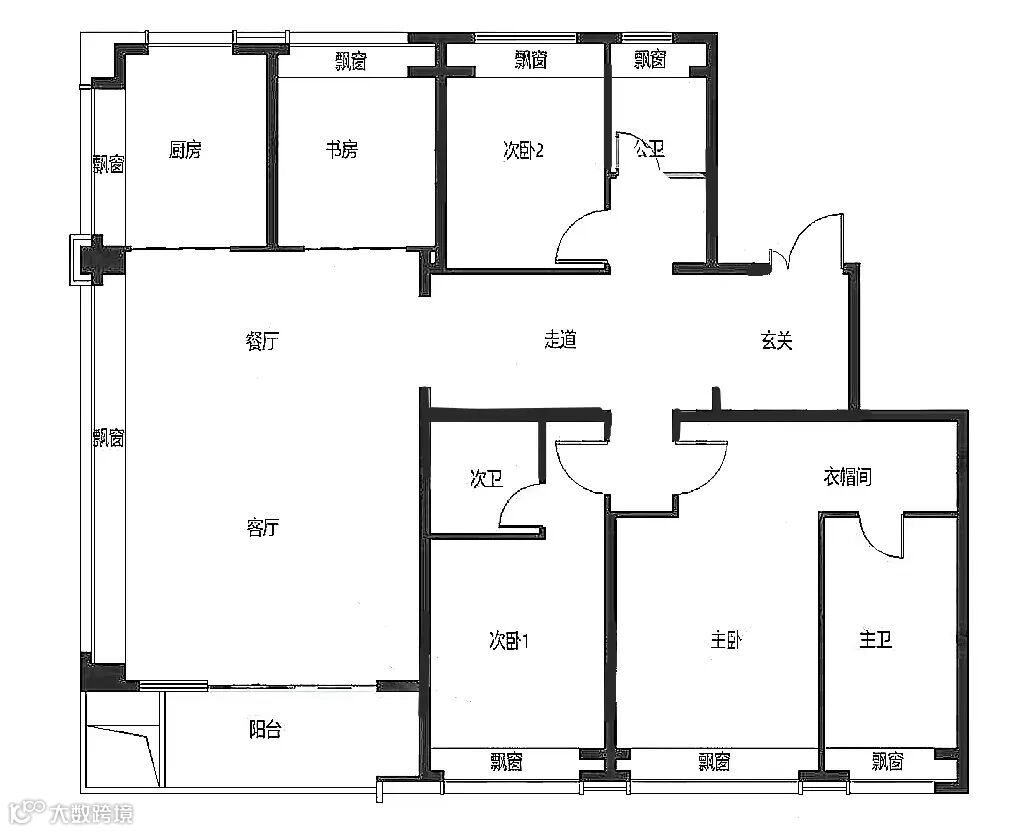
B1:127㎡边户户型
127㎡边户户型:该户型为飞机户型,南北通透,三面宽朝南,采光通风良好。电梯配置双侧贯通门,相当于独享前室空间,私密性较高。独立玄关入户,LDK大空间配置,双卫全明。
户型亮点:主卧套配置齐全,外加转角飘窗,视野光照较好;两间次卧面积较舒适,全飘窗设计带来更多使用空间。
户型缺点:南次卧由于阳台凸出较多产生自遮挡,导致采光较暗,餐厅无自然采光。
B2:127㎡边户户型
127㎡中间户户型:该户型为飞机户型,南北通透,三面宽朝南,采光通风良好。电梯配置双侧贯通门,相当于独享前室空间,私密性较高。独立玄关入户,LDK大空间配置,双卫全明。
户型亮点:主卧套配置齐全,两间次卧面积较舒适,全飘窗设计带来更多使用空间。
缺点:南次卧由于阳台凸出较多产生自遮挡,导致采光较暗,餐厅无自然采光;和边户相比主卧缺少转角飘窗,主卫窗户开在凹槽处。
C1:143㎡边户户型
143㎡边户户型:该户型为飞机户型,南北通透,四面宽朝南,采光通风俱佳。电梯配置双侧贯通门,相当于独享前室空间,私密性较高。独立玄关入户,开阔LDK空间配置,中西厨齐备,双卫全明,体现社交休闲属性。
户型亮点:主卧套配置齐全,拥有步入式衣帽间和独立卫生间,外加转角飘窗,视野光照较好;三间次卧面积较舒适,其中一间南次卧为套房形式,满足全龄段居住需求;全飘窗设计带来更多使用空间。
缺点:交通空间略有浪费,南次卧的卫生间为暗卫且无淋浴功能。
C2:143㎡边户户型
143㎡中间户户型:该户型为飞机户型,南北通透,四面宽朝南,采光通风俱佳。电梯配置双侧贯通门,相当于独享前室空间,私密性较高。独立玄关入户,开阔LDK空间配置,中西厨齐备,双卫全明,体现社交休闲属性。
户型亮点:主卧套配置齐全,拥有步入式衣帽间和独立卫生间;三间次卧面积较舒适,其中一间南次卧为套房形式,满足全龄段居住需求;全飘窗设计带来更多使用空间。
缺点:交通空间略有浪费,南次卧的卫生间为暗卫且无淋浴功能。和边户相比主卧缺少转角飘窗,拼接户的卧室采光不如边户。
188㎡边户户型
188㎡边户户型:该户型南北通透,四面宽朝南,边厅设计,采光通风俱佳。电梯配置双侧贯通门,相当于独享前室空间,私密性较高。独立玄关入户,过道拥有整墙收纳空间,采光和视野最好的区域给到客餐厨空间,餐厅全明预留岛台位,南侧大面宽观景阳台设置,加强社交休闲属性。
户型亮点:边厅配备超大观景飘窗带来绝佳的空间体验感;主卧为豪华套配置,拥有步入式衣帽间和四件套独立卫生间;南次卧为套房形式,书房尺度舒适可兼做客房使用,满足全龄段居住需求;全飘窗设计带来更多使用空间。
缺点:厨房设在动线尽头,阳台兼做洗晒空间,主仆动线略有交叉,但整体瑕不掩瑜。
188㎡中间户户型
188㎡中间户户型:该户型为飞机户型,南北通透,四面宽朝南,采光通风较好。电梯配置双侧贯通门,相当于独享前室空间,私密性较高。独立玄关入户,横厅配置外加全明餐厅,中西厨齐备,双卫全明,南侧大面宽观景阳台,加强社交属性。
户型亮点:客厅自带书房办公区,面宽略大于边套户型;主卧为豪华套配置,拥有步入式衣帽间和四件套独立卫生间;其中一间南次卧也为套房形式,满足全龄段居住需求;全飘窗设计带来更多使用空间。
缺点:主卧和次卧内凹,导致采光可能不如边套户型。
识别二维码
进入“「越秀·苏河·和樾府」”预约看房通道
案场销售会第一时间与您联系
「越秀·苏河·和樾府」项目不仅坐拥苏州河北岸,拥有一线河景,还与半马苏河公园紧密相邻,置身于绿意盎然中,预示着一种全新的居住品质提升。
交通方面:距项目距离13号线真北路站差不多要2.1公里,步行距离大约要25分钟左右,可以说是项目的硬伤。
地铁13号线是长征的交通动脉,横穿市区,终点站在浦东世博板块,辐射范围广,使得居民的工作通勤也方便不少。
自驾方面,长征是一个被城市主干道“包围”的板块,距离中环路、外环高速、京沪高速都很近,不管是去市区还是郊区都很方便。区域内主干道有金沙江路、真北路、梅川路,道路四通八达。
商业方面:周边有118广场、近铁城市广场,可满足日常生活所需!
金沙江路商圈近铁广场挺厉害的,跨着金沙江路、南北两个区,基本上4个街角形的商业体一半给都给了它,形成了一个非常大的单体商业,虽然不能说人气特别旺,但也是能够基本满足整个商圈的一个消费状态。
生态环境方面:越秀苏河·和樾所处的普陀区域,绿化覆盖率极高,人均绿地面积达到10平方米,超出上海平均水平10倍,这在城市中极为罕见。半马苏河公园的开放与即将完成的苏州河岸线公园,使得项目几乎被绿意环抱,形成一个生态的居住环境。内部约9500m²的景观轴,更让居住者仿佛置身公园之中,享受自然与建筑的和谐共生。这也让苏河成为上海最美也最火的city walk路线!
教育方面:参考项目西侧上河湾目前对口的是曹杨中学附属学校,九年一贯制公办学校,教育质量一般;云岭西路北侧目前在建的是华师大二附中普陀校区(高中)。
根据之前华二普陀公众号发布的一则消息来看,此区域还规划有华二初中部,占地面积约2万方,但目前还没有任何实质性的消息。
而且普陀区是学籍对口,未来也不太可能把曹杨附校拆开,来对口华二普陀初中部;究竟是小学有自己的本校对口,还是会对口周边小区,又或者是摇号,存在着很大的不确定性;而关于教育问题,在此地块答疑纪要中的回复是:该地块学校待新建校区有对口生源后会根据实际情况进行划分。
综合来看,该项目区位优势比较明显,中外环间,可快速直达市区、虹桥商务区等和核心板块;项目的开发建设也做出了比较明确的细节化要求,预计会有一个非常不错的社区品质,但项目缺点是距离地铁站较远,在价格上也没有很明显的优势;关于不确定的华二,目前只能说先保持关注,待项目销售阶段,看是否会有进一步的消息,如果未来有机会对口,将会是一大利好!
识别二维码
进入“「越秀·苏河·和樾府」”预约看房通道
案场销售会第一时间与您联系
2024沪房新传播助力新房置业
推出9大免费服务,详情可添加选房师微信咨询!
咨询9大免费服务,口令“购房无忧”
9大免费服务丨展开动画
本文由【沪房新传播】团队创作
转载请声明出处
点击图片 了解详情
「时代之城」
沪房新传播 · 好房推荐
「招商臻境」
沪房新传播 · 好房推荐
「新杨思·上园」
沪房新传播 · 好房推荐
「宝华紫薇花园」
沪房新传播 · 好房推荐
「张江金茂府」
沪房新传播 · 好房推荐

