“最新消息
闵行·古美 全新盘
「中铁华发古美项目」 等待入市
将推约103-130㎡3-4房
共计552套房源
房地联动价8.58万元/㎡
线上接待预约中!!
每日沪房网签快报丨展开动画
项目推荐 · 理由
项目推荐理由丨展开动画
内容提要:
*01基本信息
*02推售信息
*03周边配套
今年3月14日,闵行区七宝镇古美北社区S110501单元17-01、21-01地块共吸引了12家单位报名参拍,为当日最热门的地块。
这也是2023年三批次开始重启招挂复合后,首宗需要“打分入围”地块。
最终该地块被中铁置业联合华发以总价34.71亿元竞得,溢价率10%,成交楼板价55066元/㎡,住宅指导价为85800元/㎡!
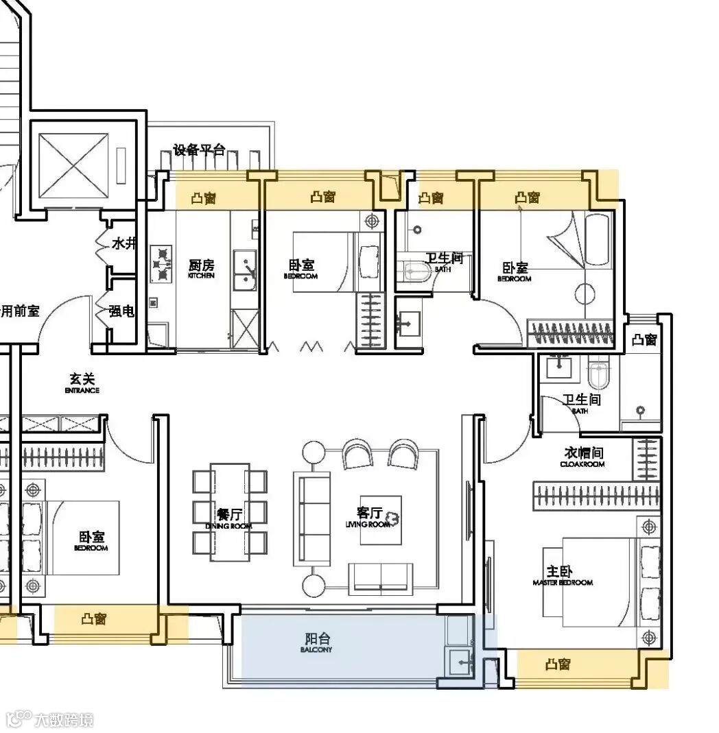
根据设计方案显示,地块拟建8栋14-16F高层住宅、1栋17F保障住宅以及若干配套用房,可售住宅约552套。
仅2种户型,大面积130㎡约80套,其余472套全部为103㎡;计划下半年入市。
地块建设指标如下:
其他建设规划要求摘要:
1、公共服务设施、公共空间建设要求:该地块内应设置建筑面积不小于400平方米的公共服务设施(不计容),包括:17-01地块内设置社区食堂200平方米,21-01地块内设置文化活动室200平方米。2、其他土地、规划建设条件:该地块住宅层数不得低于8层。
识别二维码
进入“「中铁华发古美」”预约看房通道
案场销售会第一时间与您联系
根据设计方案显示,项目拟建8栋14-16F高层住宅、1栋17F保障房以及若干社区配套用房,其中可售商品房约552套,主力户型预计为建面约100㎡3房2厅2卫,和少量建面约130㎡4房2厅2卫户型(仅供参考,具体信息待定)
户型图
(仅供参考,最终以实际为准)
「约103㎡ 3房2厅2卫」
「约130㎡ 4房2厅2卫」
识别二维码
进入“「中铁华发古美」”预约看房通道
案场销售会第一时间与您联系
项目所在的古美背靠漕河泾,这是一个真正的万亿产业园,聚集字节跳动、商汤科技、腾讯、3M、米哈游、莉莉丝等一批世界500强企业和独角兽企业,并持续不断吸引优秀高薪人才。
而漕河泾几乎都是产业园,古美近水楼台,凭借优越的宜居属性更好地承接其高收入人群的居住需求。
漕河泾的产业厚度能保证古美的价值始终坚挺。
更别说上海产业重镇汇聚西南侧,这一带高收入人群非常多,而古美板块也成了很多购房者置业的首选区域!
另外,板块认可度很重要,认可度高意味着它不是一个“一时炒作”的板块,价值就更站得住脚。
古美这几年深受中产群体青睐,已成为名副其实的“中产社区“,在这里中产想要的都有。
交通方面,古美坐拥双轨交,项目北有9号线星中路站,线路能级高,2站漕河泾、5站徐家汇,还能直达浦东世纪大道站。南邻12号线虹莘路,可直达漕河泾、徐汇滨江、南京西路、苏河湾、北外滩等核心板块。另外,规划中的嘉闵线通车后,3站直达虹桥核心区。
自驾方面,项目临近外环高速、中环高架、莘闵高架与漕宝路城市快速路,自驾出行也十分便捷!
商业方面,周边有万象城、爱琴海购物广场、七宝万科城市广场、凯德龙之梦、南方商城、中庚漫游城等繁盛商场。不仅商圈林立,规格还很高,能给到业主更高阶的生活品质。
教育资源方面:教育资源是闵行的优势,项目周边云集上宝中学、七宝中学、文来中学、明强小学、万源城协和双语学校等近20所学校。值得一提,南侧规划中的九年一贯制公办学校,从目前一些公开的信息获悉,或许会有一个比较不错的学区属性!
生态方面,项目西侧就是闵行体育公园,是上海第一个城市体育公园,是约84万方的超级公园湿地。除闵行体育公园、闵行文化公园、黎安公园等3个大城市公园之外,项目所处的板块内还有3块规划公共绿地。
识别二维码
进入“「中铁华发古美」”预约看房通道
案场销售会第一时间与您联系
2024沪房新传播助力新房置业
推出9大免费服务,详情可添加选房师微信咨询!
咨询9大免费服务,口令“购房无忧”
9大免费服务丨展开动画
本文由【沪房新传播】团队创作
转载请声明出处
点击图片 了解详情
「时代之城」
沪房新传播 · 好房推荐
「招商臻境」
沪房新传播 · 好房推荐
「新杨思·上园」
沪房新传播 · 好房推荐
「宝华紫薇花园」
沪房新传播 · 好房推荐
「张江金茂府」
沪房新传播 · 好房推荐

