“
#最新消息#
普陀·长征 全新盘
「越秀·苏河·和樾府」等待入市
将推主力约99-188㎡3-4房
联动价10.2万元/㎡
识别二维码
进入“【越秀·苏河·和樾府】”看房通道
案场销售会第一时间与您联系
01
基本信息
2023年上海四批次土拍中,热门地块无疑是普陀区北新泾产业园区W061001单元pt0259a街坊pt0259a-09地块,共计11家房企参与由越秀竞得,成交价约47.85亿,溢价率10%,楼板价66210元/㎡,房地联动价为102000元/㎡!
住宅建设要求:
为提升地区住宅品质,结合上位规划、住宅特点和地块实际情况,制定本建设要求,以规范和指导本区域住宅开发的设计、建设和运营管理。
一、建筑主体部分
(一)外立面部分
1、 建筑设计整体高端大气,外立面应采用全石材干挂。
2、 建筑外立面尽量减少使用金属材质。若使用金属材质,须采用铝合金或紫铜等防锈防腐金属材料。
(二)建筑基座与线脚
建筑基座与线脚应采用石材干挂工艺。
二、公共区域部分
(一)小区主出入口大堂
1、 小区人行主入口宜设置入户精装大堂。
2、 主入口人行大堂墙面与地面装饰材质应以石材为主。
3、 主入口大堂与社区内步道不可设置台阶,确保无障碍通行。
(二)小区功能区
1、小区应设置有会所功能,并由受让方自主运营管理,正式开放使用时间不得晚于交房后半年。
2、小区会所内应设置恒温泳池。
3、小区会所应设置独立的健身器械室、儿童娱乐区等功能区。
(三)地下车库
1、 地下车库应全部精装交付。
2、 地下车库行车道部分应采用石材铺设。
3、 车库立柱应采用石材贴面。
4、 车库顶部无管线外露,吊顶后主车道净高不低于3.2米。
三、住宅景观部分
(一)小区围墙
围墙主体应采用石材干挂工艺。
(二)小区道路
小区内道路路面应全石材铺装。
四、室内部分
1、 室内装修标准要求按建筑面积不低于5000元/㎡(集采价格),品牌应采用国际一线前沿品牌。
2、 厨房应采用橱柜、厨电一体化设计。应配置冰箱、燃气灶、油烟机、洗碗机等厨电。
3、 卫生间应设置防水吊顶,地面和墙面采用石材。应配置浴缸或钢化玻璃淋浴房,配置淋浴龙头和座便器;台盆柜采用石材台面配洗面盆和水龙头。
五、其他部分
1、交付样板房应设置在可售的住宅实体房源内,按照交付标准实景展示。
2、交付样板房应于住宅实体房源预售前完工。
02
推售信息
据悉,越秀·苏河·和樾府 将推约99-188㎡3-4房(其中建面约99㎡户型占比约30%,建面约127㎡户型占比约40%,建面约143㎡和188㎡户型各占约15%;),共计520套房源,房地联动价102000元/㎡,预计二季度入市!
全套户型图如下:
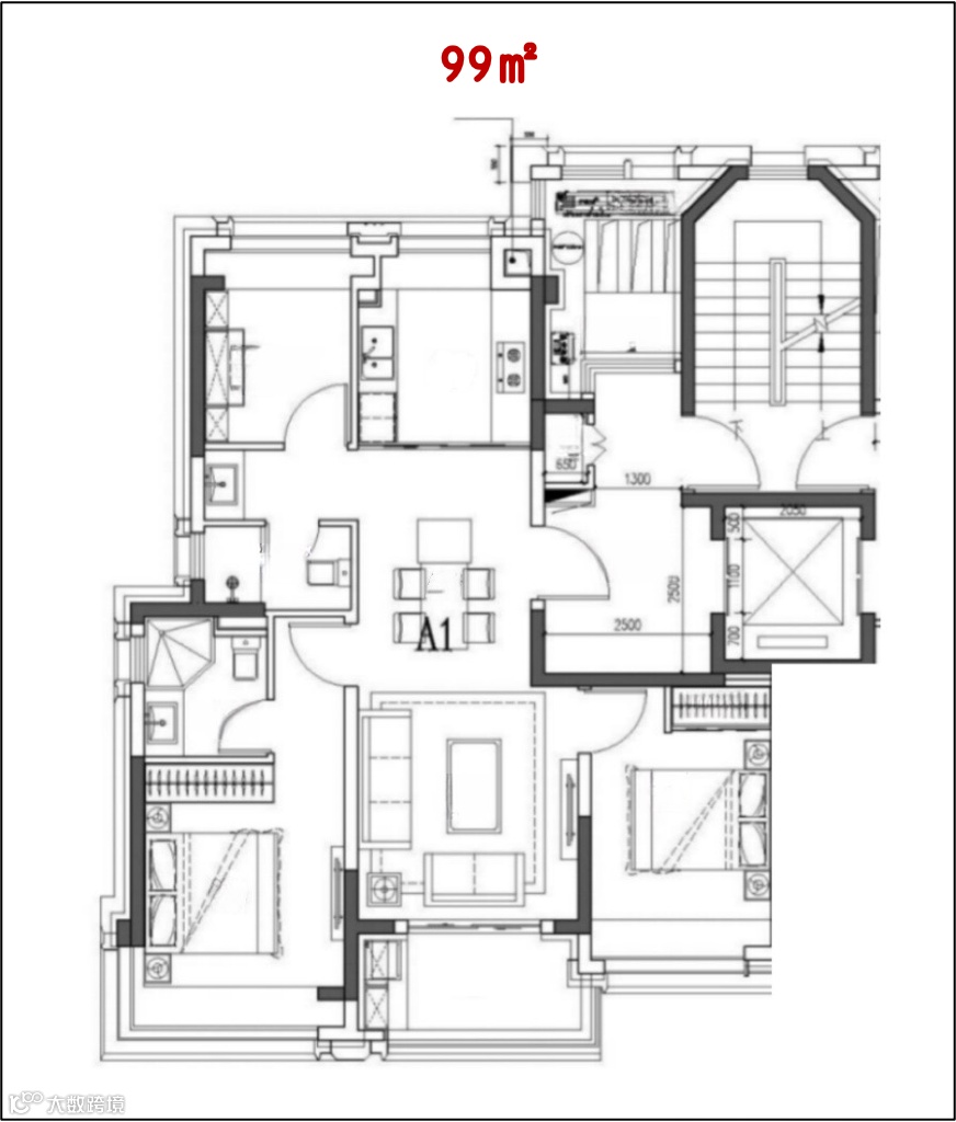
99㎡边户户型:该户型为飞机户型,南北通透,三面宽朝南,采光通风良好。电梯配置双侧贯通门,相当于独享前室空间,私密性较高。
户型亮点:客餐厨一体化空间,动线流畅;双卧朝南,主卧套配置齐全,外加转角飘窗,视野光照较好;全飘窗设计带来更多使用空间。
缺点是,无独立玄关,餐厅处在交通空间,略小且无自然采光,南次卧采光稍差。
99㎡中间户户型:该户型为飞机户型,南北通透,三面宽朝南,采光通风良好。电梯配置双侧贯通门,相当于独享前室空间,私密性较高。
户型亮点:客餐厨一体化空间,动线流畅;双卧朝南,主卧套配置齐全;全飘窗设计带来更多使用空间。
缺点是,缺乏独立玄关,餐厅无采光,和边户相比缺少转角飘窗,主卫窗户开在凹槽处,南次卧采光略差。
127㎡边户户型:该户型为飞机户型,南北通透,三面宽朝南,采光通风良好。电梯配置双侧贯通门,相当于独享前室空间,私密性较高。独立玄关入户,LDK大空间配置,双卫全明。户型亮点:主卧套配置齐全,外加转角飘窗,视野光照较好;两间次卧面积较舒适,全飘窗设计带来更多使用空间。
缺点是,南次卧由于阳台凸出较多产生自遮挡,导致采光较暗,餐厅无自然采光。
127㎡中间户户型:该户型为飞机户型,南北通透,三面宽朝南,采光通风良好。电梯配置双侧贯通门,相当于独享前室空间,私密性较高。独立玄关入户,LDK大空间配置,双卫全明。户型亮点:主卧套配置齐全,两间次卧面积较舒适,全飘窗设计带来更多使用空间。缺点是,南次卧由于阳台凸出较多产生自遮挡,导致采光较暗,餐厅无自然采光;和边户相比主卧缺少转角飘窗,主卫窗户开在凹槽处。
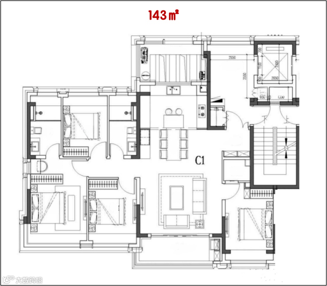
143㎡边户户型:该户型为飞机户型,南北通透,四面宽朝南,采光通风俱佳。电梯配置双侧贯通门,相当于独享前室空间,私密性较高。独立玄关入户,开阔LDK空间配置,中西厨齐备,双卫全明,体现社交休闲属性。
户型亮点:主卧套配置齐全,拥有步入式衣帽间和独立卫生间,外加转角飘窗,视野光照较好;三间次卧面积较舒适,其中一间南次卧为套房形式,满足全龄段居住需求;全飘窗设计带来更多使用空间。
缺点是,交通空间略有浪费,南次卧的卫生间为暗卫且无淋浴功能。
143㎡中间户户型:该户型为飞机户型,南北通透,四面宽朝南,采光通风俱佳。电梯配置双侧贯通门,相当于独享前室空间,私密性较高。独立玄关入户,开阔LDK空间配置,中西厨齐备,双卫全明,体现社交休闲属性。
户型亮点:主卧套配置齐全,拥有步入式衣帽间和独立卫生间;三间次卧面积较舒适,其中一间南次卧为套房形式,满足全龄段居住需求;全飘窗设计带来更多使用空间。缺点是,交通空间略有浪费,南次卧的卫生间为暗卫且无淋浴功能。和边户相比主卧缺少转角飘窗,拼接户的卧室采光不如边户。
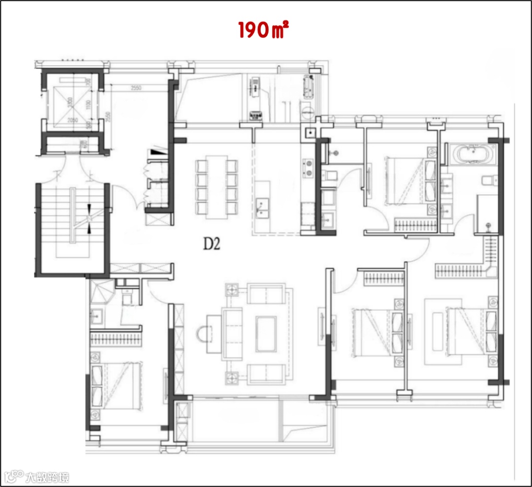
188㎡边户户型:该户型南北通透,四面宽朝南,边厅设计,采光通风俱佳。电梯配置双侧贯通门,相当于独享前室空间,私密性较高。独立玄关入户,过道拥有整墙收纳空间,采光和视野最好的区域给到客餐厨空间,餐厅全明预留岛台位,南侧大面宽观景阳台设置,加强社交休闲属性。
户型亮点:边厅配备超大观景飘窗带来绝佳的空间体验感;主卧为豪华套配置,拥有步入式衣帽间和四件套独立卫生间;南次卧为套房形式,书房尺度舒适可兼做客房使用,满足全龄段居住需求;全飘窗设计带来更多使用空间。
缺点是,厨房设在动线尽头,阳台兼做洗晒空间,主仆动线略有交叉,但整体瑕不掩瑜。
188㎡中间户户型:该户型为飞机户型,南北通透,四面宽朝南,采光通风较好。电梯配置双侧贯通门,相当于独享前室空间,私密性较高。独立玄关入户,横厅配置外加全明餐厅,中西厨齐备,双卫全明,南侧大面宽观景阳台,加强社交属性。
户型亮点:客厅自带书房办公区,面宽略大于边套户型;主卧为豪华套配置,拥有步入式衣帽间和四件套独立卫生间;其中一间南次卧也为套房形式,满足全龄段居住需求;全飘窗设计带来更多使用空间。
缺点是,主卧和次卧内凹,导致采光可能不如边套户型。
03
周边配套
提起长征板块,人们最先想到的就是近年兴起的真北商务圈。不仅商业,它在房产发展方面也可以说是一个“后起之秀”,规划定位是"低密度低层加多层和小高层的混合型绿色园区"。经过多年的发展,多种风格的建筑并存,该板块现已逐渐形成了自己独特的居住环境和风貌。
相比普陀其他板块,长征的楼盘房龄相对较新,社区环境较好,成为了年轻白领们首次置业的好选择。
交通方面:距项目距离13号线真北路站差不多要2.1公里,步行距离大约要25分钟左右,可以说是项目的硬伤。
地铁13号线是长征的交通动脉,横穿市区,终点站在浦东世博板块,辐射范围广,使得居民的工作通勤也方便不少。
自驾方面,长征是一个被城市主干道“包围”的板块,距离中环路、外环高速、京沪高速都很近,不管是去市区还是郊区都很方便。区域内主干道有金沙江路、真北路、梅川路,道路四通八达。
商业方面:周边有118广场、近铁城市广场,可满足日常生活所需!
金沙江路商圈近铁广场挺厉害的,跨着金沙江路、南北两个区,基本上4个街角形的商业体一半给都给了它,形成了一个非常大的单体商业,虽然不能说人气特别旺,但也是能够基本满足整个商圈的一个消费状态。
教育方面:参考项目西侧上河湾目前对口的是曹杨中学附属学校,九年一贯制公办学校,教育质量一般;云岭西路北侧目前在建的是华师大二附中普陀校区(高中);
根据之前华二普陀公众号发布的一则消息来看,此区域还规划有华二初中部,占地面积约2万方,但目前还没有任何实质性的消息;
而且普陀区是学籍对口,未来也不太可能把曹杨附校拆开,来对口华二普陀初中部;究竟是小学有自己的本校对口,还是会对口周边小区,又或者是摇号,存在着很大的不确定性;而关于教育问题,在此地块答疑纪要中的回复是:该地块学校待新建校区有对口生源后会根据实际情况进行划分。
综合来看,该项目区位优势比较明显,中外环间,可快速直达市区、虹桥商务区等和核心板块;项目的开发建设也做出了比较明确的细节化要求,预计会有一个非常不错的社区品质,但项目缺点是距离地铁站较远,在价格上也没有很明显的优势;关于不确定的华二,目前只能说先保持关注,待项目销售阶段,看是否会有进一步的消息,如果未来有机会对口,将会是一大利好!
识别二维码
进入“【越秀·苏河·和樾府】”看房通道
案场销售会第一时间与您联系
2024沪房新传播助力新房置业
推出9大免费服务,详情可添加选房师微信咨询!
咨询9大免费服务,口令“购房无忧”
本文由【沪房新传播】团队创作
转载请声明出处
上海购房政策
点击图片了解详情
热盘推荐
识别二维码
进入“群”看房通道
案场销售会第一时间与您联系
媒体矩阵
觉得有用的话,记得“分享·收藏·点赞·在看”哦!













