“最新消息
7号线潘广路旁 全新盘
「招商·时代乐章」2期 正在认购
首期将推约89-126㎡3房
共计138套房源
均价48500元/㎡
线上接待预约中!!
每日沪房网签快报丨展开动画
项目推荐 · 理由
项目推荐理由丨展开动画
内容提要:
*01.基本信息
*02.推售信息
*03.周边设施
2023年上海第四轮集中供地中,最引入关注的莫过于潘广路TOD地块!作为土拍中备受瞩目的地块,潘广路TOD项目最终被招商蛇口以约46亿收入囊中。
作为近年来在综合体领域持续发力的企业,招商蛇口再一次重仓北上海,这座超大TOD综合体项目,不仅助力宝山未来的生活蝶变,也进一步彰显招商蛇口在综合体赛道上的实力。
本次共出让12.94公顷,土地属性为普通商品房+商业用地。「招商潘广路TOD项目」由3幅地块组成。
【0303-02地块】为普通商品房用地,用地面积约39769㎡,容积率2.2,限高60米;
规划图 仅供参考
据规划显示,0303-02地块,拟建12栋17-18F高层住宅,2栋区配套,无保障住宅,共计规划901户。
仅供参考
【0309-04地块】为普通商品房用地,用地面积约29337㎡,容积率2.3,限高60米,含商业建筑面积5100㎡;0309-04地块,拟建8栋17-18F高层住宅、1栋17F保障住宅以及3栋1-3F商业,共计规划645户。
规划图 仅供参考
仅供参考
【0304-06地块】为商业用地,用地面积约60299㎡,容积率2.9,限高80米,含文化建筑面积10000㎡!
整个地块中商业占比53%,约17.48万㎡,住宅占比47%,约15.49万㎡,本次全新升级花园城商业,为招商蛇口在上海打造的第四座花园城,将延续商业X+的模式。
招商时代乐章将商业、酒店、公园住区多元业态及生态糅合,以多样的生活场景为平台,赋予多样内容,给予城市一种全新放松、悦己、由我的生活方式,凭借轨道交通7号线带来的快意出行,直达静安寺,2站换乘15号线。周边顾村公园的生态自然,构建出上海主城难得的Chill氛围生活所在。
自带约25万方的商业体量,以及招商300+战略合作品牌的强大实力加持,意味着未来这里必将带来这北上海生活方式全面升级。项目联通城市轨交、快速直达主干道和开放街区步道,打造三重立体路网体系,并借此串联起TOD大城里的商业、公园、街区、广场、地铁、酒店,六大场景。让社区即城市,以多样业态构建生活底色,用更极致的便捷,来实现生活更自由的节奏,营造城市Chill基调。
规划示意图 不作为交付标准
效果示意图 不作为交付标准
效果示意图 不作为交付标准
效果示意图 不作为交付标准
以新一代的产品迭新,推动更加理想的人居时代的到来。招商时代乐章带给北上海的,不仅是一座约52万方TOD超级大盘的强大信心,更来自于硬核产品力带给市场生活进阶的可能。
更舒适、更是性能、更精致悦己,这正是招商时代乐章作为新一代TOD愿景作品,回应理想生活的答案。
识别二维码
进入“「招商·时代乐章」”预约看房通道
案场销售会第一时间与您联系
据悉,招商·时代乐章 首期将推约89-126㎡3房,共计209套房源,均价48500元/㎡,正在认购!
二期 推售楼栋户型分布
全套户型图发布
「约89㎡ 3房2厅1卫」
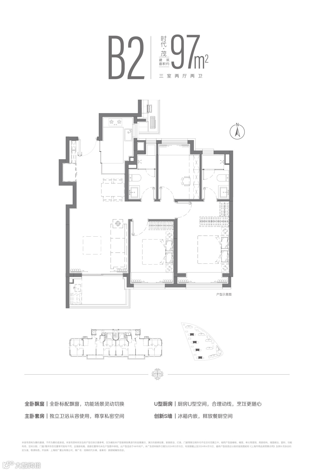
「约97㎡ 3房2厅1卫」
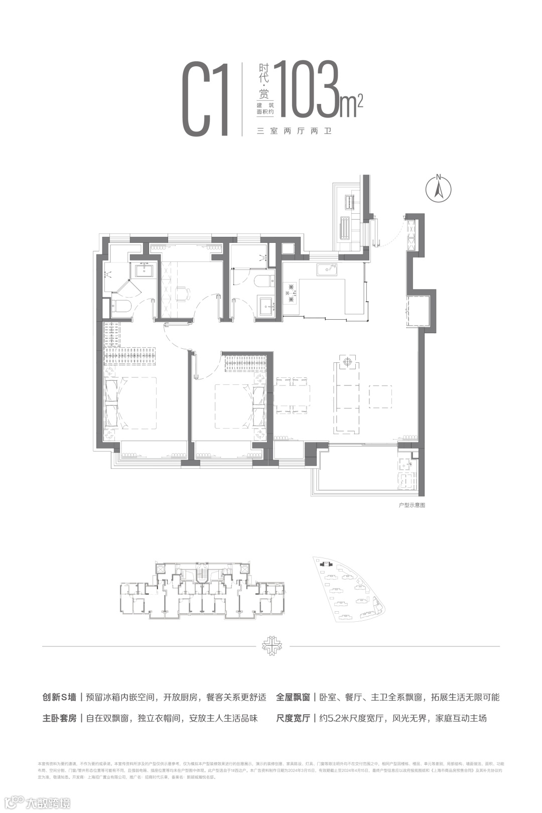
「约103㎡ 3房2厅2卫」
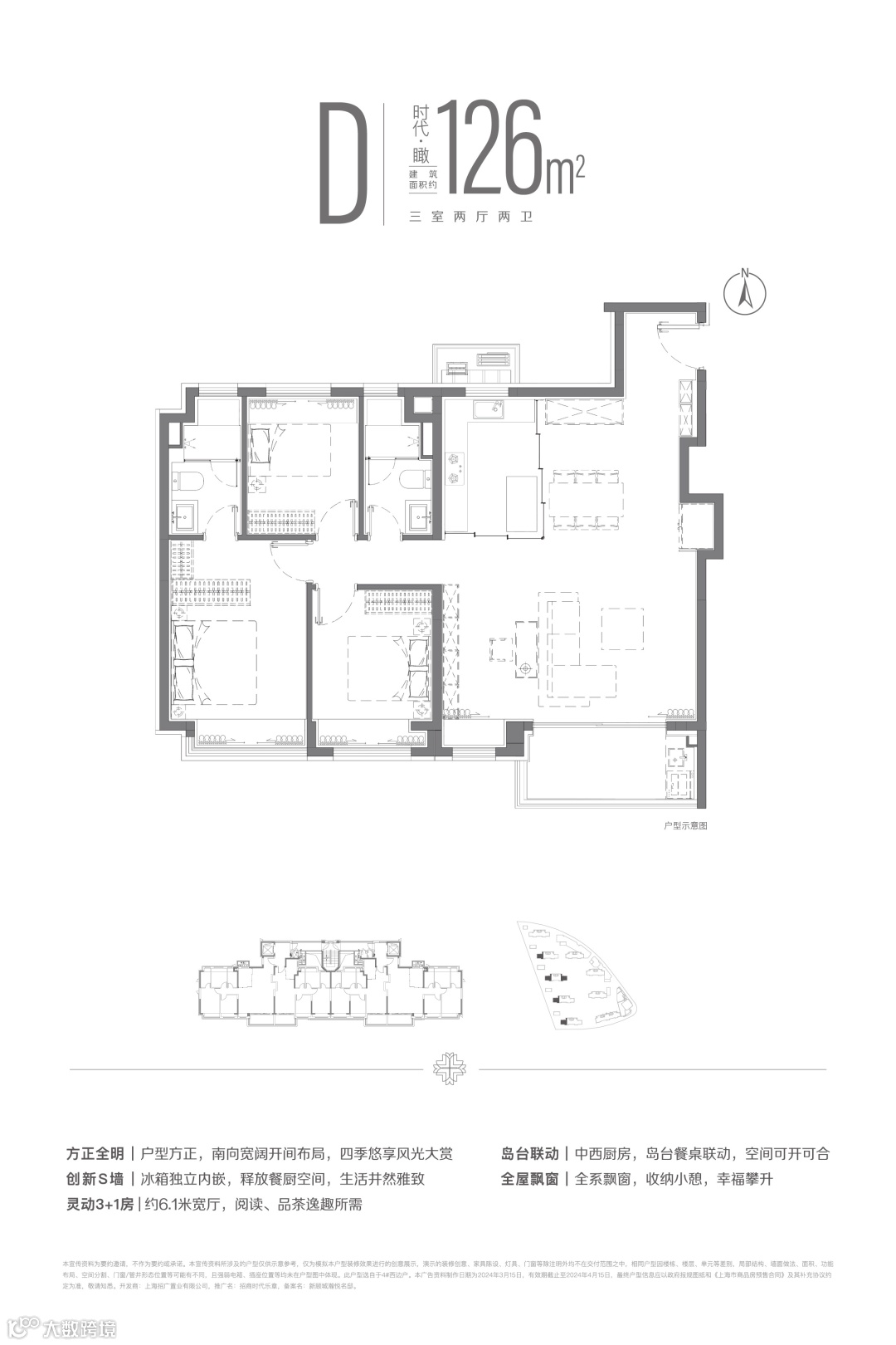
「约126㎡ 3房2厅2卫」
识别二维码
进入“「招商·时代乐章」”预约看房通道
案场销售会第一时间与您联系
地块地段站位,可以用“同级别中没有对手”来形容。
项目位于上海主城区,距离人民广场直线约18km,而以这个距离为半径画个圈,同纬度的是徐泾、南翔、颛桥以及唐镇。
这些无一不是600万以上的置业地。
直白点来说,项目与同等地段项目,总价上有着近200万的剪刀差。
一方面,这是建发熙和府地段环线价值的铁证。另外一方面,也意味着,如今不足500万的预算想在同样的地段环线上买房,或许只有建发熙和府可选。
地段优势带给项目的性价比之高,不言而喻。
随着核心区的发展逐渐完善,顾村的发展中心也逐渐向以北拓展至新顾城区域。也就是建发熙和府所在的区域。在2035规划中,这里被明确点出将成为上海主城又一新兴的城市重点板块。其中,新顾城规划总建筑面积约638万平方米,规划人口约14.2万。
以“改善民生、促进城市更新”为导向,新顾城将集聚城市功能,建设成为一个宜居、宜业、宜商、产城高度融合的新一代大型居住社区。整个中央生活区集产业,商业,文化,居住,学校于一体。
更重要的是,您会发现这里整体的未来规划更是尤为优秀:以项目自有,大体量商办地块将打造区域转型典范的综合体,从目前新顾城的商业来看,最大的就是7号线刘行站上盖的龙湖天街。
印象城的到来,无疑将会为新顾城的商业锦上添花,甚至会辐射整个宝山区域。另外,项目一路之隔则是一块教育用地。
2站汇聚了两个板块内超大的TOD,也将会是整个顾村板块优质城市资源的聚集之地。
项目含金量非常高的轨交盘:项目距离7号线潘广路站直线约300米,可以轻松步行至潘广路站。
另外,上车后2站就能换乘15号线。从项目出发,业主能无缝直达普陀长风、静安寺、长宁古北、上海南站、徐汇滨江以及紫竹高新等多个市区CBD板块。这样的地段&公共交通优势,即使是很多600万级置业地,都无法比拟。
项目周边未来整体基础建设将会非常完善,以400w+的总价买入,性价比非常高。
识别二维码
进入“「招商·时代乐章」”预约看房通道
案场销售会第一时间与您联系
2024沪房新传播助力新房置业
推出9大免费服务,详情可添加选房师微信咨询!
咨询9大免费服务,口令“购房无忧”
9大免费服务丨展开动画
本文由【沪房新传播】团队创作
转载请声明出处


点击图片 了解详情
「时代之城」
沪房新传播 · 好房推荐
「招商臻境」
沪房新传播 · 好房推荐
「新杨思·上园」
沪房新传播 · 好房推荐
「宝华紫薇花园」
沪房新传播 · 好房推荐
「张江金茂府」
沪房新传播 · 好房推荐

