
日前,东进通注意到,芙蓉花语建设项目设计-施工总承包/标段开始启动招标了,项目业主为成都兴东乡村发展集团有限公司,招标人为成都经开产投建设投资有限公司。项目净用地面积为约98.95亩,总建面约29万㎡,计划工期为1095天。
01
项目区位
芙蓉花语安居工程项目位于东安街道,项目地块与地铁轨道2号线连山坡站直线距离约500米,项目东西地块均为规划用地,北侧紧邻桃都大道西段、东侧近至善南路,南侧为北川路。
项目区位上,由于靠近2号线连山坡地铁站约500米,轨道交通出行效率非常便捷高效,并且规划有连山坡TOD城市级站点,未来连山坡TOD将提供站城一体化的商业消费场景。
02
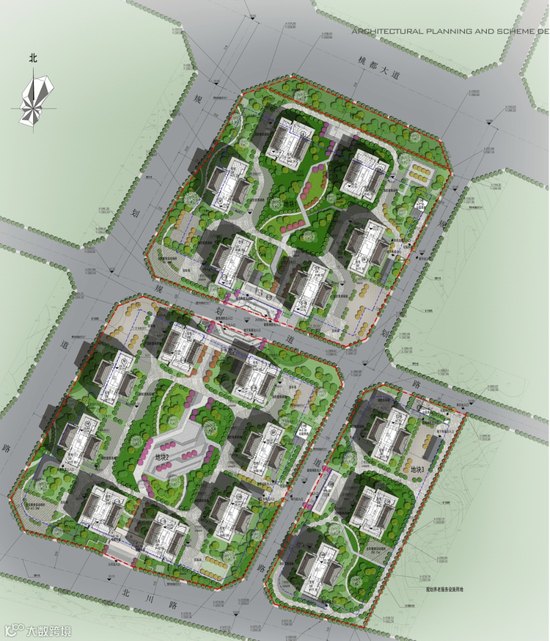
楼盘规划
根据项目初步设计方案显示,芙蓉花语项目共计约98.95亩,包括地块1、地块2、地块3三个地块,地块之间为规划市政道路,规划设计为高层住宅区,建筑层数为20~25F。
其中,地块1用地面积为:23546.04㎡(合约36亩),容积率3.0,总建筑面积:104209.35 ㎡,规划有6栋高层建筑,总户数920户。
地块2用地面积为:30043.07 ㎡(合约46亩),容积率3.0,总建筑面积:131902.14 ㎡,规划有8栋高层建筑,总户数1294户。
地块3用地面积为:12377.13㎡(合约17亩),容积率3.0,总建筑面积:56134.93㎡,规划有3栋高层建筑,总户数478户。
|项目景观设计
|项目临街透视图
除了3个地块统一报建,一次性建设之外,项目还有3条配套道路。
其中,道路一长421.277m,宽30m-35m(标准宽度30m,局部宽度35m);道路二长388.700m,宽16m;道路三长351.856m,宽16m;建设内容包括道路工程、综合管网工程、照明工程、景观绿化工程、交通工程等其他附属设施工程。
信息来源:成都东进通,素材参考自项目初步设计方案等。
龙泉人都使用以下这几种方式找工作招人才:

二、关注龙泉人才招聘公众号(服务号)
三、关注龙泉招聘网公众号(订阅号)

四、更多招聘信息请点击“阅读原文”进入龙泉招聘网

