“最新消息
闵行·梅陇 全新品
「安高申陇院」规划方案公示
将推约107-170㎡3-4房
房地联动价76000元/㎡
每日沪房网签快报丨展开动画
鸟瞰图,仅供参考
项目推荐 · 理由
项目推荐理由丨展开动画
内容提要:
*01.基本信息
*02.推售信息
*03.周边配套
2024年5月28日,上海第二批次土拍交易活动中,安高+安联联合体以54.64亿摘得闵行区梅陇社区03单元01-26-01地块,溢价率10%,楼面价48407元/㎡,指导价7.6万元/㎡。
梅陇地块的热度仅次于上钢街道,共有4组竞买人——中海、绿城、金茂+首开+北京城建、安高+安联。
但这次报价焦灼得很,平均每分钟两次报价...加价幅度从1000万加到2000万、再加到2200万,总共45轮才触发最高限价。出价相当积极的金茂联合体和佛系出价的绿城,在摇号前夕放弃了摇号,只有安高安联和中海走到了“决赛圈”!
总算,这次好运没有辜负拼命做方案的安高安联了!总价54.6亿拿下了梅陇地块!
安高安联梅陇项目东至梅富路,南至梅南路,西至集心路,北至梅美商务园区,位于春申景城湖畔林语东侧。根据出让合同显示,该项目占地面积约5.64万方,计容面积约11.29万方,容积率为2.0,限高50米,住宅套数下限735套;
此外,项目还需满足一些建设要求,包括配建至少5%以上的保障性住房,中小套户型不得低于总住宅建筑面积的50%,全装修比例为100%,且装修标准不低于3000元/㎡
。
6月7日,安联&安高闵行区梅陇项目发布公示,项目拟建13栋13-16F高层住宅、1栋16F保障房以及若干社区配套及公共服务设施,规划可售住宅共计约888套;
同时,从设计方案也可以看出,项目地面无车位,全人车分流,社区内规划有下沉式庭院等;楼间距约30.1-50.9米;
全一梯两户,仅1#、5#(总高16F)有部分连廊,其余楼栋全部无连廊!
其他规划建设要求摘要
01
公共服务设施、公共空间建设要求:该地块内应设置建筑面积不小于2160㎡的公共服务设施(不计容);
其中:老年活动室200㎡、养育托管点360㎡、生活服务点100㎡、社区文化展示空间300㎡、多功能运动场1000㎡、儿童服务中心200㎡。
02
其他土地、规划建设条件:该地块住宅层数不得低于8层,地面不得设置停车位!
活力街区效果图,仅供参考
识别二维码
进入“「安高申陇院」”预约看房通道
案场销售会第一时间与您联系
据悉,盘古箐峰华庭 将推约75-122㎡2-4房,共计468套房源,房地联动价4.3万元/㎡,目前售楼处已开放,预计8月中旬入市;
根据规划,项目将建设包含13栋13至16层的高层住宅、1栋16层的保障性住房,预计可售住宅数量将达到约888套。联动价7.6万/㎡!
社区内部规划有下沉式庭院等特色景观,以营造宜人的居住环境。同时,楼间距控制在30.1至50.9米之间,确保充足的采光与通风效果。
在建筑结构上,本项目全面采用一梯两户的设计理念,仅1#、5#(总高16层)部分楼栋设有连廊,其余楼栋均实现无连廊设计,以最大化提升居住舒适度。
项目毗邻春申景城,周边还有在售的朗拾花语项目。距离地块 700米内有轨道交通15号线景西路站。周边公共设施较齐全。学校有上海市第二中学(梅陇校区)、闵行区春申景城幼儿园等;商业设施有绚荟城、麦多生活广场等;医疗设施有上海市老年医学中心等;此外,还有银行、邮局、公园等,能满足日常生活的需要。
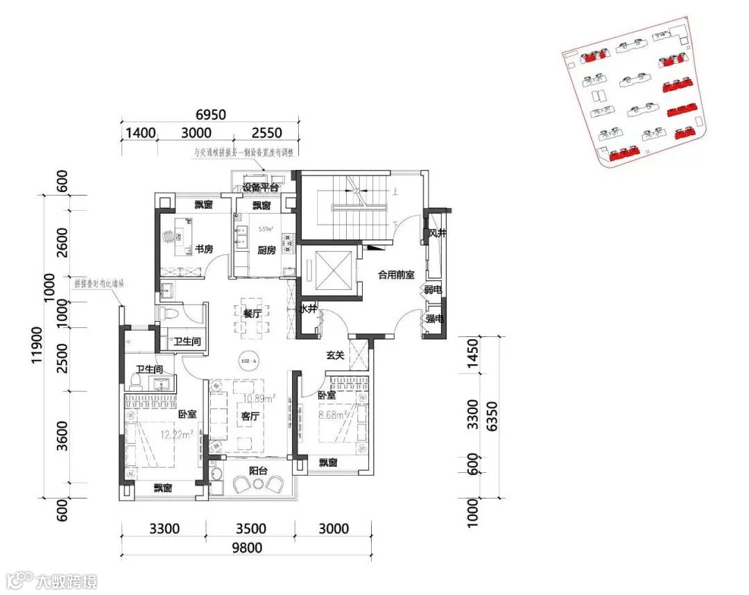
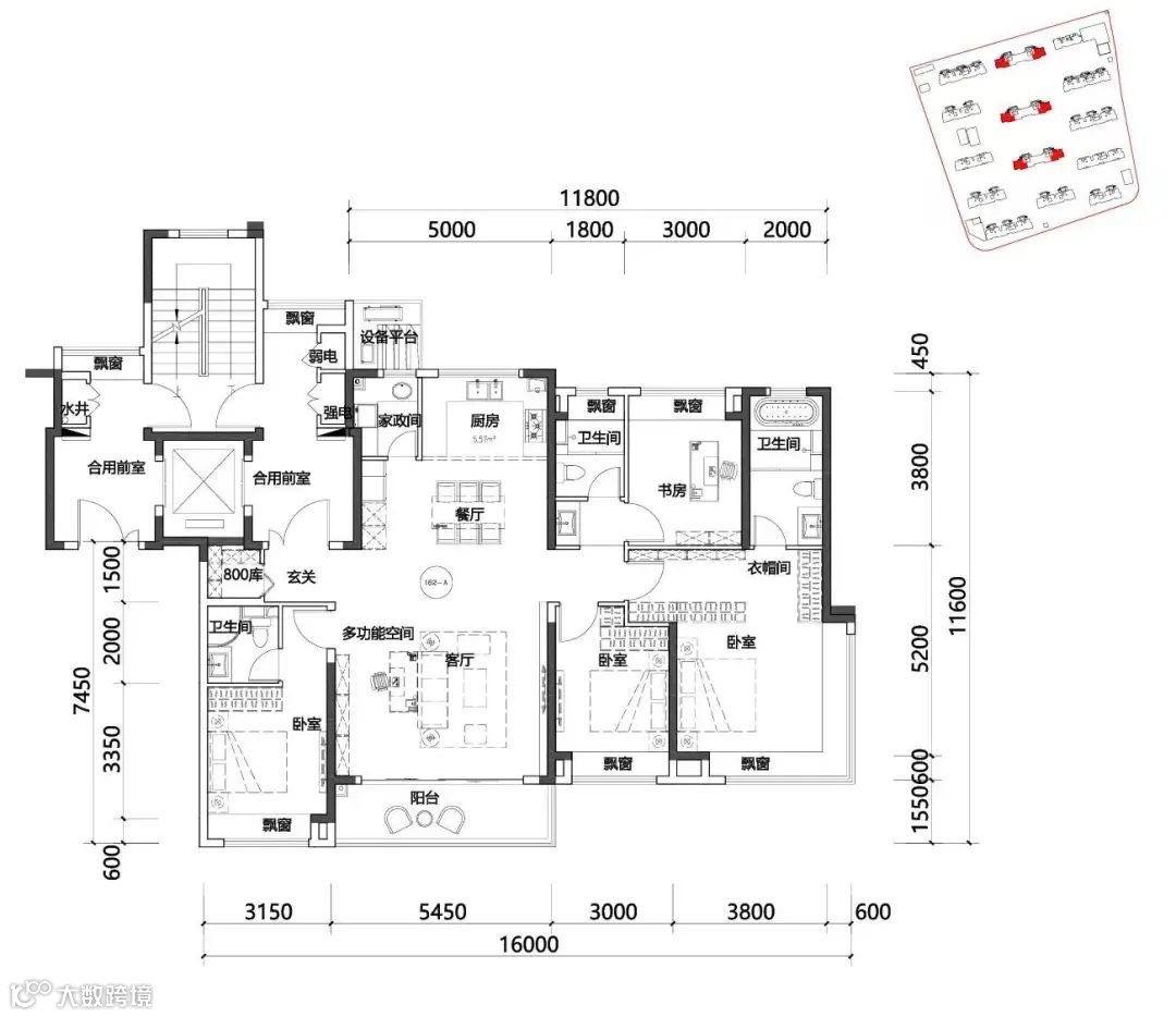
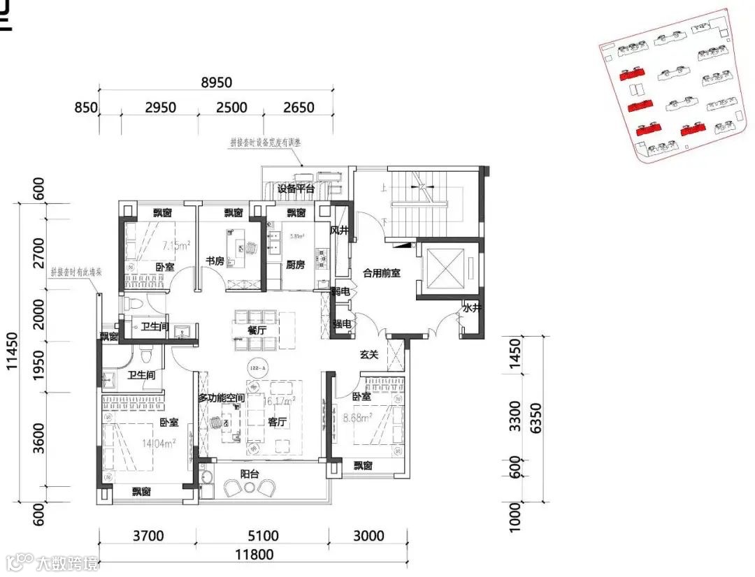
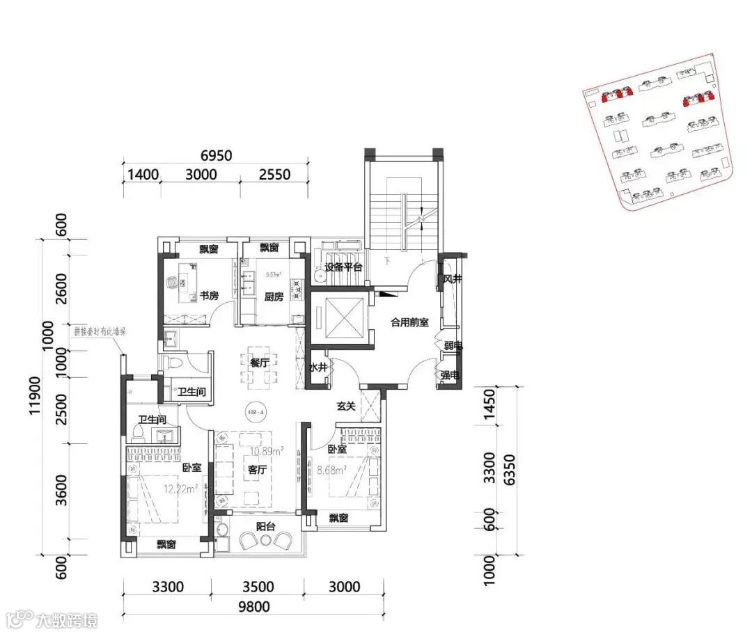
全套户型图发布
建面约107㎡3房2厅2卫户型图
建面约130㎡4房2厅2卫户型图
建面约170㎡4房2厅3卫户型图
识别二维码
进入“「 安高申陇院」”预约看房通道
案场销售会第一时间与您联系
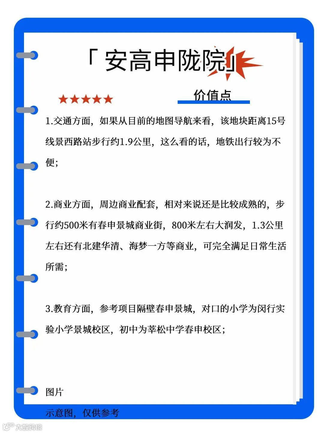
交通方面:
如果从目前的地图导航来看,该地块距离15号线景西路站步行约1.9公里,这么看的话,地铁出行较为不便;
但根据区域规划,未来项目东侧梅富路将会跨春申塘打通,新建跨春申塘桥,目前初步设计已完成,计划于年内动工;
届时道路打通以后,景西路地铁站步行距离将缩短至800米左右,算是一大利好!
商业方面
周边商业配套,相对来说还是比较成熟的,步行约500米有春申景城商业街,800米左右大润发,1.3公里左右还有北建华清、海梦一方等商业,可完全满足日常生活所需;
教育方面:
参考项目隔壁春申景城,对口的小学为闵行实验小学景城校区,初中为莘松中学春申校区;
其中小学按照目前的情况,至少需要满足2年落户要求,否则会被统筹到畹町校区;另外在项目东侧有新建的莘松中学兴梅校区,个人认为,未来新地块对口此新校区的概率较大,至于小学,存在一定的不确定性。
整体来看,该项目的区位优势还是比较明显的,周边配套成熟,出行相对来说也比较方便,跨春申塘桥建成以后,到地铁站的距离也会大大缩短,同时也潜在一定的学区价值;
另外项目也不受BYG的直接影响!但项目缺点也很明显,实地看下来,项目南侧临近高压线走廊、环卫公司停车场,西南角还靠近垃圾站等不利因素;其实南侧看出去的视野很开阔,也没有什么遮挡,又临近春申塘河道,原本属于南向的优势,就变得很可惜......所以说,未来在选房时,如不能接受以上不利因素,可优先考虑小区中间的楼栋!
识别二维码
进入“「安高申陇院」”预约看房通道
案场销售会第一时间与您联系
2024沪房新传播助力新房置业
推出9大免费服务,详情可添加选房师微信咨询!
咨询9大免费服务,口令“购房无忧”
9大免费服务丨展开动画
本文由【沪房新传播】团队创作
转载请声明出处
点击图片 了解详情
「时代之城」
沪房新传播 · 好房推荐
「招商臻境」
沪房新传播 · 好房推荐
「新杨思·上园」
沪房新传播 · 好房推荐
「宝华紫薇花园」
沪房新传播 · 好房推荐
「张江金茂府」
沪房新传播 · 好房推荐

