“最新消息
松江·新城 全新品
「国贸·海上原墅」等待入市
将推洋房&叠墅&联排产品
共计675套可售房源
房地联动价63000元/㎡
每日沪房网签快报丨展开动画
这个女神节,沪房新传播为你准备了
双重惊喜,叠加优惠
当天买房并下定金
可同时享受惊喜一和惊喜二
「展厅现场实拍」

项目推荐 · 理由
项目推荐理由丨展开动画
内容提要:
*01.基本信息
*02.推售信息
*03.周边配套
2024年5月28日上海第二批次土拍中,国贸&松江交投以26.98亿元摘得该地块,成交楼面价28000元/㎡,溢价率0%。
项目四至东至辰晓路,西至龙源路,南至广轩路,北至骏安路。
项目容积率1.2,占地面积约8.03万方,计容面积约9.64万方;保障房占比5%,类型为公共租赁住房;中小套户型不得低于总住宅建筑面积的30%,全装修比例50%!指导价6.3万/㎡,装标要求不低于2500元/㎡!
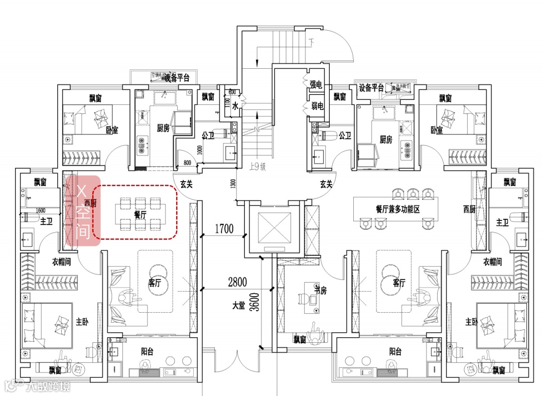
从设计方案来看,该项目由9栋7-8F多层住宅、9栋4F多层住宅、12栋3F低层住宅、1栋8F保障房以及若干社区配套用房组成,共计规划778户(含保障房)。
项目将推出洋房、叠墅、联排三种产品,其中洋房约381套,叠墅约132套,联排约162套,户型图即将发布!
值得一提的是项目亮点在于,项目容积率只有1.2,地面无车位,全人车分流,规划地下车位1414辆,小区在西南角规划了下沉式庭院和配套用房,还有公共开放空间。
据悉,目前销售团队已组建,将于来年小阳春入市!
识别二维码
进入“「国贸·海上原墅」”预约看房通道
案场销售会第一时间与您联系
据悉,国贸海上原墅 将推约110-196㎡洋房&叠墅&联排产品,共计674套房源,房地联动价63000元/㎡,预计将于3月1日开放展厅!
产品方面:
洋房380套
洋房约110㎡、120㎡ 、145㎡(6-8楼)
叠墅约132套
上叠约140㎡、下叠约150㎡
联排约162套
联排约155、176、196㎡
最新效果图图如下:
部分户型图如下:
洋房110㎡:
洋房120㎡:
洋房145㎡:
叠加户型:
下叠
上叠
地块所在的广富林板块,本身的生态资源非常优秀!项目西侧一路之隔就是广富林文化遗址、广富林郊野公园、直线距离约1km+是辰山植物园,北面直线距离约3km是佘山国家森林公园、月湖雕塑公园等。
广富林公园 图源:上海松江
商业方面,项目周边涵盖了约60万方(数据来源:上海松江)综合性商业集群——松江万达、开元地中海、五龙广场、马利来广场......还有地标性商业松江印象城一期!更有印象城二期(待建成),一期+二期总商业体量将高达约40万方!
松江印象城一期 图源:上海松江
广富林的教育资源也相当丰富。项目周边落座了松江大学城、上海外国语大学松江外国语学校、上海外国语大学附属外国语学校松江云间中学、上海实验学校松江新城分校(规划中),还有华东政法附属学校、上师大附属学校、东华大学附属学校等丰富的教育资源。(注:本资料中学校信息仅作介绍不做入学承诺,项目对口学校最终以教育部门划分为准。)
松江新城 图源:航拍上海·松江篇
医疗方面,附近有上海市第一人民医院南院,为三甲综合性医院,以及养志康复医院、
第一人民医院南院 图源:上海松江
识别二维码
进入“「国贸·海上原墅」”预约看房通道
案场销售会第一时间与您联系
2024沪房新传播助力新房置业
推出9大免费服务,详情可添加选房师微信咨询!
咨询9大免费服务,口令“购房无忧”
9大免费服务丨展开动画
本文由【沪房新传播】团队创作
转载请声明出处
点击图片 了解详情
「招商臻境」
沪房新传播 · 好房推荐
「保利·光合跃城」
沪房新传播 · 好房推荐
「时代之城」
沪房新传播 · 好房推荐
「华发海上都荟」
沪房新传播 · 好房推荐
「华发观澜半岛」
沪房新传播 · 好房推荐

