“最新消息
闵行·梅陇 全新盘
「保利·海上印」等待入市
将推约108-148㎡3-4房
共计406套房源
预计今年上半年入市
每日沪房网签快报丨展开动画
项目推荐 · 理由
项目推荐理由丨展开动画
内容提要:
*01.基本信息
*02.推售信息
*03.周边配套
2024年11月27日,保利置业以约25.95亿元竞得闵行区MHP0-0303单元01-28-01a地块,溢价率约18.5%,折合楼板价48665元/㎡。
HU FANG
沪房新传播出品
保利置业梅陇地块根据要求,需要配建5%以上的保障性住房,中小套户型不低于30%,装标≥3000元/㎡。
从目前公示的规划方案来看,项目容积率约1.8,规划打造8栋13-14F小高层住宅+1幢保障性住房,此外还有若干社区配套用房。
项目地面无车位,全人车分流,一梯两户无连廊设计,楼间距约30-32米另外,项目设置有下沉式庭院,同时在5#、7#、10#、11#设置有架空层,预计会配置地下会所。
识别二维码
进入“「保利海上印」”预约看房通道
案场销售会第一时间与您联系
据了解,保利置业梅陇项目 将推出建面约108㎡、128m以及建面约148m3-4房,共计约406套可售房源,预计均价8万元左右,最快将于今年一季度入市!
HU FANG
沪房新传播出品
建面约108m3房2厅2卫,共计约136套,一梯两户无连廊;
建面约128m4房2厅2卫,共计约188套,一梯两户无连廊;
建面约148m4房2厅2卫,共计约80套,一梯两户(电梯门双开)!
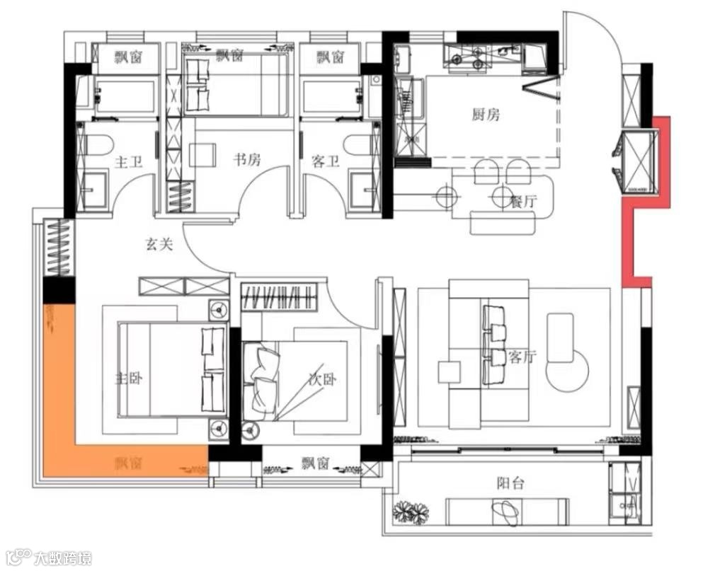
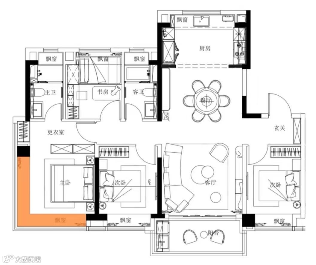
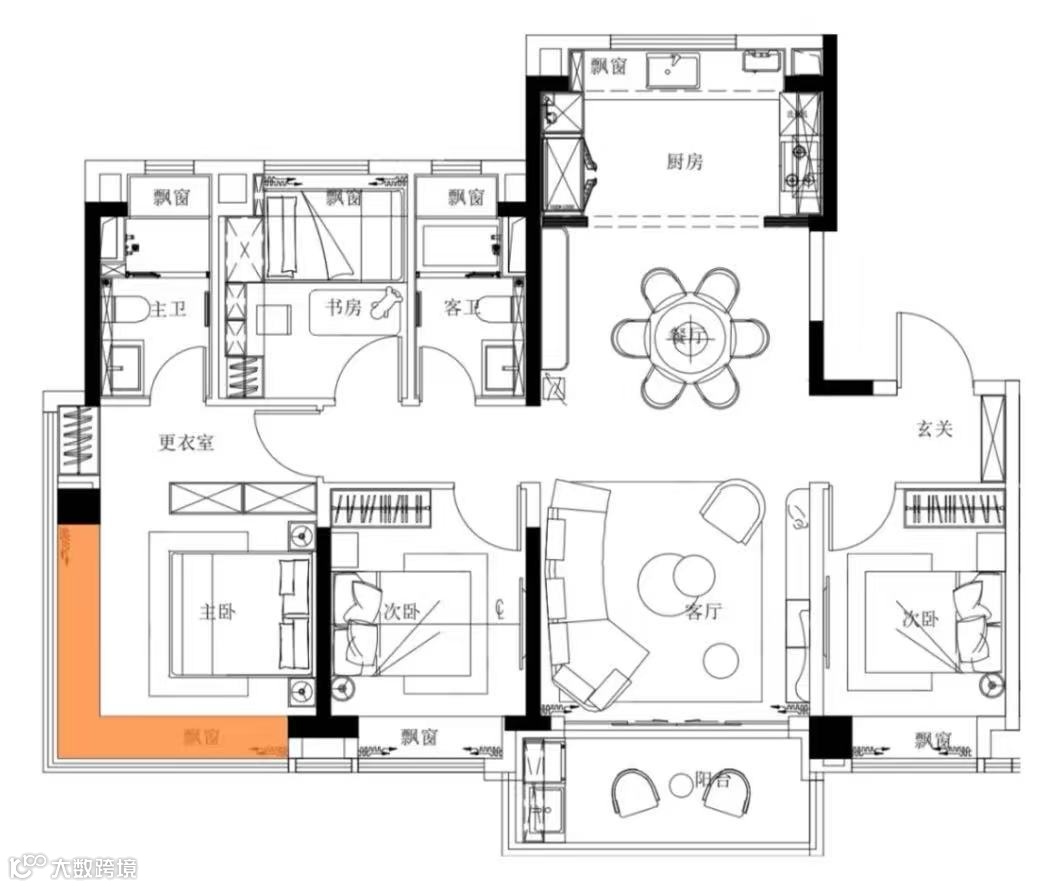
网传户型图发布(仅供参考,以开发商发布为准)
「约108㎡ 3房2厅2卫」
建面约108㎡3房,该户型为经典的动静分离户型,三开间朝南,预留分户S墙设计,客厅面宽约4.85米,边套户型主卧为270°转角飘窗。
「约128㎡ 4房2厅2卫」
建面约128㎡4房2厅2卫,独立入户玄关,四开间朝南,客厅面宽约4.05米,南北直通,厨房附赠飘窗,可增加实用面积,边套户型主卧为270转角飘窗。
「约148㎡ 4房2厅2卫」
建面约148㎡4房2厅2卫,该户型也可以说是128户型的进阶版本,各个空间会稍微大一些;客厅面宽约5米,厨房同样附赠飘窗,边套户型主卧为270转角飘窗。
识别二维码
进入“「保利海上印」”预约看房通道
案场销售会第一时间与您联系
交通方面
项目距离15号线景西路站直线距离仅约500米(来源于百度地图测距),未来春申塘建桥后,将迅速抵达地铁站,通达全城,未来还有机场联络线、23号线。
商业方面
周边商业除了沿街商铺以外,还有众多商业中心:兴梅路尚乐坊、海梦一方、绚荟城、以及麦多生活广场等等,完全可以满足日常购物需求。
海梦一方实景,图源网络
教育方面
周边有整个闵行区知名度非常高的办学时间已达119年的闵行实验小学;以及录取率也是十分优秀的市重率、区重率在闵行区的公办学校里数一数二的莘松中学;还有蔷薇小学、罗阳中学等学校、上海市第二中学(梅陇校区)、闵行区春申景城幼儿园,还有在规划在建的学校,教育资源丰富。
(免责:以上教育资源整理仅代表楼盘与学校的距离,该房屋所在项目暂未划分学区,开发商不对项目交房后所属学区、学校做任何承诺。教育资源分配或学校/学区划分以及学校的具体招生规则等请以政府相关主管部门、教育机构公开的最新信息为准。)
识别二维码
进入“「保利海上印」”预约看房通道
案场销售会第一时间与您联系
2024沪房新传播助力新房置业
推出9大免费服务,详情可添加选房师微信咨询!
咨询9大免费服务,口令“购房无忧”
9大免费服务丨展开动画
本文由【沪房新传播】团队创作
转载请声明出处
点击图片 了解详情
「招商臻境」
沪房新传播 · 好房推荐
「保利·光合跃城」
沪房新传播 · 好房推荐
「时代之城」
沪房新传播 · 好房推荐
「华发海上都荟」
沪房新传播 · 好房推荐
「华发观澜半岛」
沪房新传播 · 好房推荐

