“最新消息
浦东·北蔡 全新盘
「浦发·莲园」 等待入市
将推约95-200㎡3-4房
预计均价9.2万元/㎡
每日沪房网签快报丨展开动画
项目推荐 · 理由
项目推荐理由丨展开动画
内容提要:
*01.基本信息
*02.推售信息
*03.周边配套
日前,上海浦东新区政府官网发布公告,拟以协议方式出让浦东新区北蔡社区Z000502编制单元2-01a街坊2-01a-11b地块。
4月19日根据公告显示,上海浦发集团通过协议方式拿下关于浦东新区北蔡社区Z000502编制单元2-01a街坊2-01a-11b地块(“城中村”改造项目北蔡镇老集镇地块)。
浦发·莲园位于浦东新区内中环间,北蔡老镇核心莲中路莲园路口,距离最近的18号线北中路站直线距离仅约500米。
项目北面临川杨河,南侧为新浦路,东侧为1A-2地块、规划路及1-3地块,西侧紧靠浦三路,是北蔡艾南、南新“城中村”改造地块中的最后一个商品房项目。
项目总用地面积约29376.03平方米,容积率2.0,总建筑面积约85387.83平方米,地上建筑面积约60493.46平方米,地下建筑面积约24894.37平方米,建筑密度19.05%,绿地率35%,中小套型住宅建筑面积占比为50%。
根据设计方案显示,项目拟建1幢11层高层住宅、2幢14层高层住宅、6幢16层高层住宅、1幢7层保障房、以及4幢1-2层配套用房、1层地下车库和垃圾房电站等附属设施。
浦发北蔡老镇项目5月30日起就开工了:
北蔡社区Z000502单元2-01a-11b地块项目,开发商为浦发御湾房地产开发有限公司,这个公司也是22年4季度大卖热盘「浦发仁恒有园」的项目主体。
让我们来看看该项目的大致规划细节。
效果图抢先看:
让我们看看浦发北蔡老镇项目和中铁建&国贸北蔡楔形绿地项目之间的位置对比。由于这个项目没有联动价,所以参考楔形绿地项目9.2万元/㎡,预计浦发北蔡老镇项目入市时候可能会定价在9.2-9.5万元/㎡左右。
识别二维码
进入“「浦发·莲园」”预约看房通道
案场销售会第一时间与您联系
据悉,浦发·莲园 将推约95-200㎡3-4房,共计124套房源,预计均价9.2万元/㎡。
这次要推出是1号楼和5号楼,1号楼是99B户型,5号楼是99A户型和133户型。
得房率我们也大概测算了一下,1号楼大概是76%左右,5号楼大概在79%左右。
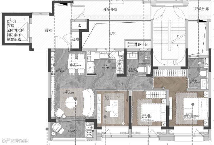
户型图
建面约99㎡B户型
先来看1号楼。总高14F,一梯两户,都是99B户型 ,横厅设计,净面宽约5.1m,进深大概4.2m左右;
靠近门口的南次卧净面宽约2.8m,进深大概2.95m这样,测算下来可以放置5尺的床,2个40cm左右的床头柜,还有深60cm左右的衣柜是够的,飘窗无墙垛设计,空间感会更好一些;
主卧净面宽大概3.1m不到,进深大概3.35m的样子,放置6尺的床,2个40cm的床头柜,深60cm左右的衣柜也是ok的。独立卫生间带飘窗;
厨房U型台面设计,这里次卫并没有做干湿分离;
整体看下来空间利用率还是比较高的,没有什么浪费面积的地方,横厅设计对于空间感和视野都有不错的提升。
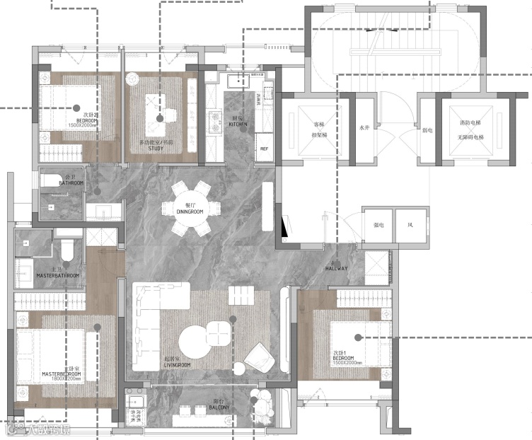
再来看5号楼。中间套是99A户型,边套是133户型。
建面约99㎡A户型
99A户型是相对比较常规的类飞机户型,三开间朝南。
客厅净面宽大概3.5m左右,客餐厅的整体进深将近6m。
南次卧约2.8m的净面宽,放5尺的床;
主卧约3.25m左右的净面宽,可以放6尺的床,主卫这里并没有设计飘窗,次卫做了干湿分离。
建面约99㎡G户型
建面约99㎡H户型
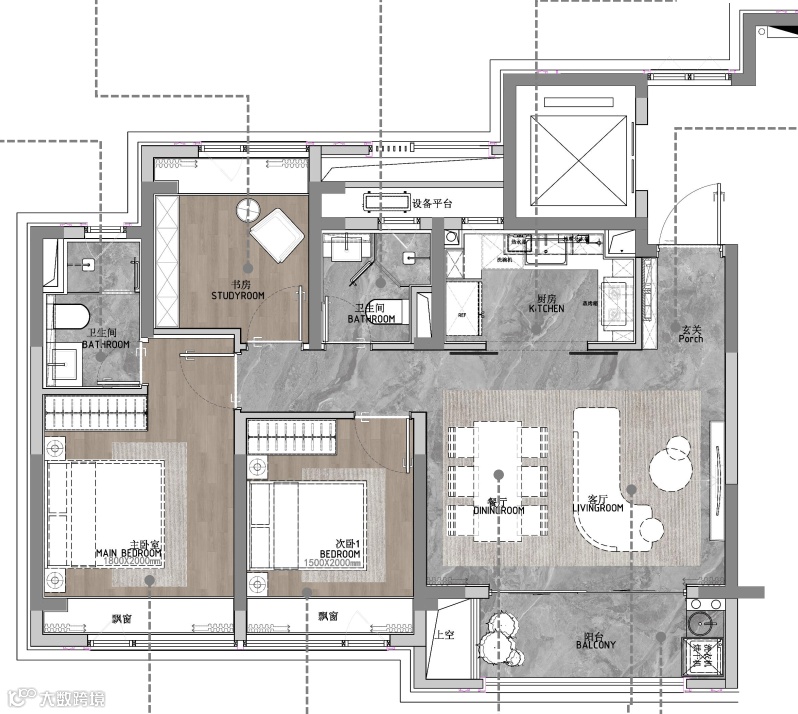
建面约133㎡户型
再来看133户型,有点像是综合了两个99户型的一些优点,净面宽约5.2m的横厅,客餐厅进深将近7m,横向设计的厨房,主卧净面宽大概3.3m,收纳啊的空间也增加了,L型的衣柜,门后面还有储藏室的空间。北侧的书房约3.2m的进深,要做卧室也是可以的。
单从户型角度来看,这次浦发莲园的户型设计是比较好的。空间利用率都还不错。
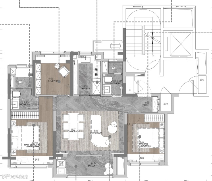
建面约140㎡户型
建面约193㎡户型
识别二维码
进入“「浦发·莲园」”预约看房通道
案场销售会第一时间与您联系
交通方面
交通方面,项目周边有轨交7、13、18号线,步行距离大约600多米,步行到13号线北蔡站大约1.1km。
实景图
商业方面
商业方面,项目西侧直线距离约2km就是北蔡大盘大华锦绣华城,配套已然非常成熟,大华锦绣华嘉年华、巴黎春天、北蔡休闲广场等。
教育、医疗方面
项目周边有莲溪小学、北蔡中学、海事大学附属北蔡高级中学等。
医疗方面,项目直线距离约3km范围内有上海九院、交大口腔医院、曙光医院、一妇婴等医疗资源。
识别二维码
进入“「浦发·莲园」”预约看房通道
案场销售会第一时间与您联系
2024沪房新传播助力新房置业
推出9大免费服务,详情可添加选房师微信咨询!
咨询9大免费服务,口令“购房无忧”
9大免费服务丨展开动画
本文由【沪房新传播】团队创作
转载请声明出处
点击图片 了解详情
「招商臻境」
沪房新传播 · 好房推荐
「保利·光合跃城」
沪房新传播 · 好房推荐
「时代之城」
沪房新传播 · 好房推荐
「华发海上都荟」
沪房新传播 · 好房推荐
「华发观澜半岛」
沪房新传播 · 好房推荐

