“最新消息
宝山·大场 低密新盘
「大华·梧桐院」等待入市
将推约139-142㎡叠加别墅
&158-165㎡联排别墅
共计141套房源
每日沪房网签快报丨展开动画
项目推荐 · 理由
项目推荐理由丨展开动画
内容提要:
*01.基本信息
*02.推售信息
*03.周边配套
大华·梧桐院由27栋联排+4栋叠拼组成,是中环旁仅有的高阶纯粹臻墅,目前已实景呈现,占地面积约5.19万㎡,建筑面积约2.29万㎡,车位配比1:2.3。
效果图过程稿
社区整体设计借鉴江南园林建筑的设计理念,确保每一栋建筑都能拥抱充足的阳光与四季更迭的景致。
效果图过程稿
“碧梧、花影、秋月、玉阶、闲庭”五大院落设计,通过景观轴线串联,演绎优雅别致、移步异景的雅居格调。
效果图过程稿
第一院:花影—营造穿林荫,夹道开合有序的空间
第二院:秋月—穿过林荫峡谷,忽遇开阔视野空间,叠石气势恢弘,引人深入
效果图过程稿
第三院:玉阶—枯山水景观让人豁然开朗,点式水景探水而出,倒影天空,人仿若翱翔天镜
第四院:碧梧—叠石、夹道若隐若现,忽现建筑的模样,峰回路转又见另一番天地
第五院:闲庭—无边界的景观体验空间,让人独处,寻觅属于自己的梧桐树
效果图过程稿
整个社区以经典的错落有致的巷院布置形式,形成多个独立的居住组团和围合的景观空间,辅以景观隔离,营造奢雅兼具的江南人文邸院。
另外,精装地下车库做的非常精致。
效果图过程稿
识别二维码
进入“「大华梧桐院」”预约看房通道
案场销售会第一时间与您联系
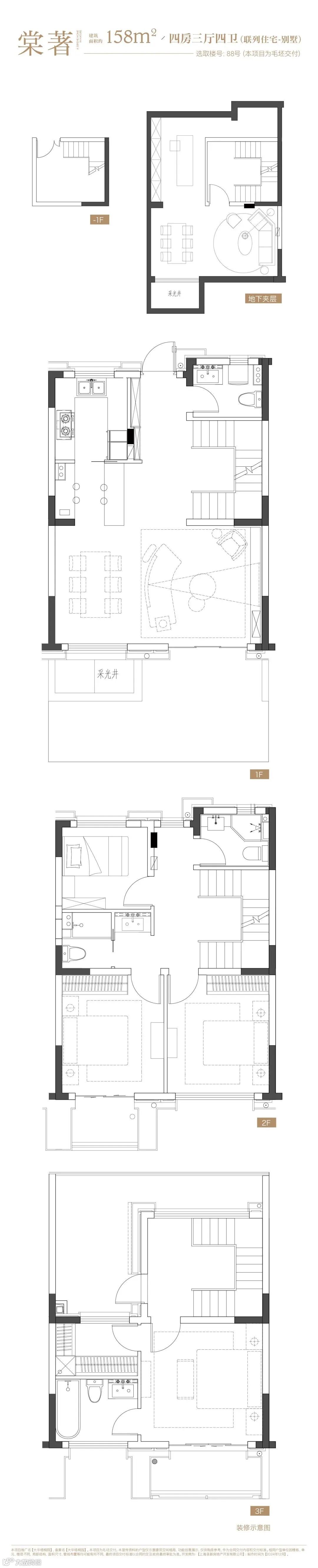
据悉,大华梧桐院 将推约139-142㎡叠加别墅、158-165㎡联排别墅!总计141套!项目容积率仅0.75!
最新户型图如下:
(过程稿,以开发商公示为准)
识别二维码
进入“「大华梧桐院」”预约看房通道
案场销售会第一时间与您联系
大华梧桐院位于宝山区大场板块,地处界华路和场中路交界处,距离7号线场中路地铁站步行最多也就500米左右,然后沿着7号线,两站入中环,三站进市区,六站就进入核心内环了。
交通方面
项目距离南北高架路仅2.1公里,依托沪太路、中环路等主要高架路,快速融入上海的交通网络,实现全城快速通达。
此外,项目周边的主干道布局合理,无论是日常通勤还是周末出行,都能享受到便捷的交通体验。
商业方面
近邻老镇商圈大华时光里,提供一站式的休闲购物体验。同时,静安大融城、大宁国际等商圈环绕,满足您的日常生活需求。
瑞华美食街的建设,将为您带来约2万㎡的高端餐饮综合体,享受美食与休闲的完美结合。
教育、医疗、生态方面
项目周边名校云集,如陈伯吹实验幼儿园、华师大宝山实验学校等,提供全龄化教育配套,为孩子的成长提供坚实保障。
医疗方面,大华梧桐院周边拥有宝山区大场医院、上海交通大学医学院附属仁济医院宝山分院等优质医疗资源,为您和家人的健康提供全方位保障。
生态方面,项目靠近约20公里的走马塘海派生态水岸,以及大宁公园、桃浦中央绿地等,为您的生活增添一抹绿色,享受都市中的宁静与活力。
识别二维码
进入“「 大华梧桐院」”预约看房通道
案场销售会第一时间与您联系
2024沪房新传播助力新房置业
推出9大免费服务,详情可添加选房师微信咨询!
咨询9大免费服务,口令“购房无忧”
9大免费服务丨展开动画
本文由【沪房新传播】团队创作
转载请声明出处
点击图片 了解详情
「招商臻境」
沪房新传播 · 好房推荐
「保利·光合跃城」
沪房新传播 · 好房推荐
「时代之城」
沪房新传播 · 好房推荐
「华发海上都荟」
沪房新传播 · 好房推荐
「华发观澜半岛」
沪房新传播 · 好房推荐

