“最新消息
19号线宝山站
金茂&宝冶杨行项目
案名【金茂棠前】
主力将推建面约82-169㎡2-5房
每日沪房网签快报丨展开动画
项目推荐 · 理由
项目推荐理由丨展开动画
内容提要:
*01.基本信息
*02.推售信息
*03.周边配套
2024年12月30日,金茂&宝冶&杨行城建于2024年八批次土拍中以31.16亿竞得宝山站商住组合地块(宝山区BSP0-0801单元13A-01、02aA-04地块),楼面价9058元/㎡,住宅中小套型占比50%,集采价2500元/㎡。
项目地处宝山杨行,是19号线宝山站(在建)TOD综合体地块。地块用途为商业、住宅、办公、餐饮旅馆混合,其中13A-01为住宅,容积率2.3,装修标准2500元/㎡。
其中住宅地块——宝山区BSP0-0801单元13A-01地块当天就发布了设计公示,拟建16幢16~17F高层住宅,项目规划有老年活动室、健身点等配套。
项目占地面积53569方,容积率2.3,总建面179134方。其中,地上计容面积123210方,地上不计容建面6222方,地下建面49702方,限高80米。
项目全新效果图:
识别二维码
进入“「金茂棠前」”预约看房通道
案场销售会第一时间与您联系
据悉,项目可售住宅户型为建面约82-92-102-105-128-143-169㎡2-5房。(过程稿,以开发商发布为准)
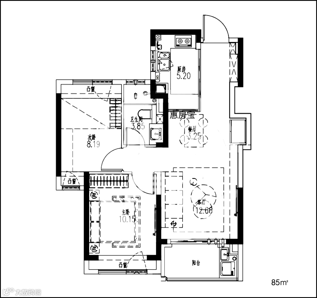
建面约85m2房2厅1卫,共约96套,3梯6户,每一层都有连廊,层高约3.1米;
预留分户S墙设计,可释放厨房冰箱空间,主卧朝南厅朝南,次卧南北均有明窗,南北通透性略差一些,中间套北向有连廊影响。
建面约96m3房2厅1卫,共约176套,1梯2户,仅局部楼层有连廊,层高约3.1米;三开间朝南,独立餐厅空间,南北通透,次卧与客厅双阳合贯通。
建面约107m3房2厅2卫,中间套户型,共约298套,1梯2户,仅12F、15F有连廊,层高约3.1米;
经典飞机式户型,三开间朝南,南北通透,南向双阳合。
建面约107m3房2厅2卫,边套户型,共约131套,1梯2户,无连廊影响,层高约3.1米;
经典飞机式户型,三开间朝南,南北通透,南向双阳合。
建面约117m3房2厅2卫,边套户型,共约183套,1梯2户,无连廊影响,层高约3.1米,该户型与107边套户型格局其本一致,主要区别是117户型为小横厅设计。
建面约133㎡4房2厅2卫,共约101套:2梯2户,无连廊,独立电梯厅及独立入户玄关,四开间朝南,南北直通,户型还是比较不错的。
建面约152㎡4房2厅2卫,共约101套,2梯2户,无连廊,该户型属于133户型的进阶版本,格局基本致,152户型全部为边套,主卧为270°转角飘窗。
建面约175㎡4房2厅3卫,共约32套,2梯2户,无连廊,独立电梯厅,四开间朝南,双套房。
识别二维码
进入“「 金茂棠前」”预约看房通道
案场销售会第一时间与您联系
宝山高铁站是是北沿江高速铁路的始发站,建成后将成为上海第四大、上海北部最大的高铁站。同时是四场合一的枢纽站,沪渝蓉铁路、沪通铁路、预留捷运线以及轨道交通19号线。
地块位于湄浦两侧,周边自然环境优美,西侧近邻盘古公园。地块距离3号线铁力路地铁站约910米,西侧有江阳北路、铁峰路等快速路。
周边的教育资源有上海大学附属宝山外国语学校、上海师范大学附属宝山实验学校等;医疗设施有上海中冶医院等。
识别二维码
进入“「金茂棠前」”预约看房通道
案场销售会第一时间与您联系
2024沪房新传播助力新房置业
推出9大免费服务,详情可添加选房师微信咨询!
咨询9大免费服务,口令“购房无忧”
9大免费服务丨展开动画
本文由【沪房新传播】团队创作
转载请声明出处
点击图片 了解详情
「招商臻境」
沪房新传播 · 好房推荐
「保利·光合跃城」
沪房新传播 · 好房推荐
「时代之城」
沪房新传播 · 好房推荐
「华发海上都荟」
沪房新传播 · 好房推荐
「华发观澜半岛」
沪房新传播 · 好房推荐

