“最新消息
保利海上印二批次
开启认购
均价7.99万/㎡
加推80套建面
约109-133㎡3-4房
每日沪房网签快报丨展开动画
看房请联系经纪人
自行前往售楼部视为放弃参与以下活动
5/28,保利海上印首批房源盛大开盘!
仅仅只用了1小时,首开完美日光!
这个数据,不出意外,应该破了今年上海外环外的首开去化速度纪录。
大约在十天前,保利海上印开启认购,首日认购率就突破了190%。
严格算时间,仅用了短短不到12个小时,这个外环外新盘就顺利触发了积分,创下了2025年上海外环外的认购新纪录。
保利海上印最终的认购率达到了230%,104套房源吸引了248组客户认筹,最终入围积分51.8分。
你肯定好奇,这突然蹿升至鼎流的闵行红盘,到底有啥魅力?
客户真金白银的选择,一定是区域价值最好的体现。
话不多说直接开始👇
「一房一价表」
项目推荐 · 理由
项目推荐理由丨展开动画
内容提要:
*01.基本信息
*02.推售信息
*03.周边配套
2024年11月27日,保利置业以约25.95亿元竞得闵行区MHP0-0303单元01-28-01a地块,溢价率约18.5%,折合楼板价48665元/㎡。
HU FANG
沪房新传播出品
保利置业梅陇地块根据要求,需要配建5%以上的保障性住房,中小套户型不低于30%,装标≥3000元/㎡。
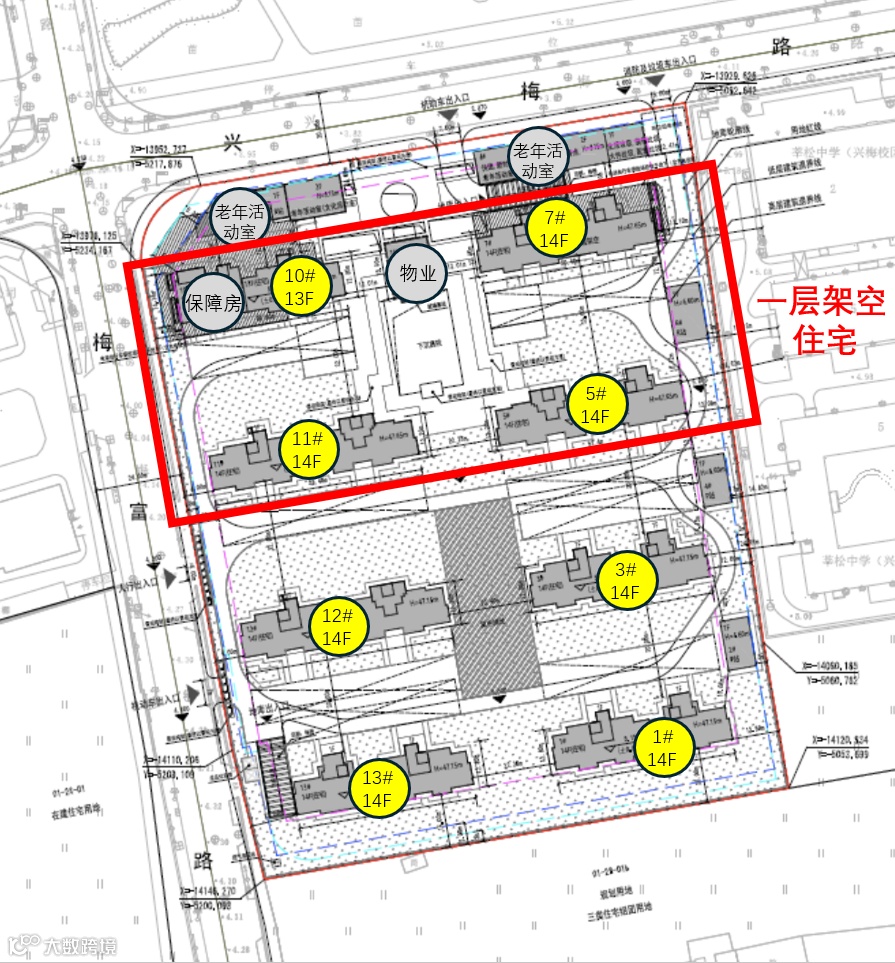
从目前公示的规划方案来看,项目容积率约1.8,规划打造8栋13-14F小高层住宅+1幢保障性住房,此外还有若干社区配套用房。
项目地面无车位,全人车分流,一梯两户无连廊设计,楼间距约30-32米另外,项目设置有下沉式庭院,同时在5#、7#、10#、11#设置有架空层,预计会配置地下会所。
识别二维码
进入“「保利海上印」”预约看房通道
案场销售会第一时间与您联系
二期加推8#、9#和15#楼,其中建面约109㎡户型共有28套,建面约129/133㎡户型共有52套。
HU FANG
沪房新传播出品
C位楼尊+性价比楼座
叠加实景开放前的最后一次加推
二批次诚意顶满
二期加推8#、9#和15#楼,其中建面约109㎡户型共有28套,建面约129/133㎡户型共有52套。
值得一提的是,这也将是项目约1万㎡实景示范区开放前的最后一次“抄底”机会,感兴趣的朋友千万不要错过。
据了解,项目“万平实景示范区”包含:全户型样板间、住宅部分立面展示、下沉庭院&会所展示、百米超级界面、风雨连廊等景观、架空层和车库坡道及光厅等全维度近万平米空间。
这座“万平实景示范区”不仅是对未来生活全维度的立体预演,更是保利精工营建体系的兑现保证。
再来细看一下加推楼座:
08#和09# 横纵双景观轴的静谧楼王
其一,横纵景观主轴在此交错,楼下就是公园。
其二,私密性极佳,远离外部车流的噪音干扰。
我们先来看08#,所处的位置我们一般用黄金内环来形容,在整个项目中,也只有四个单元足以匹配这样的称谓。
在这其中,就包含了整个项目全部的终极改善产品,从下图中可以看到,三个150平单元环绕布局。
本次加推的8#,则是在同样等级的位置上,唯一的约129平户型。
这是绝无仅有的最后机会。 以最低总价,享有楼王中央视野。 尤其是8#西边户,转角飘窗之外,180米长景观主轴尽在眼帘。 真正以改善价格,买到高奢体验。
我们再来看09#,和一批次首开的两个同面积段产品相比,得房率上有了显著提升。
首开的两栋楼虽然也是14层,但底层为架空层。而本次加推的09#则是14层均为住宅。增加的户数,意味着每户的公摊面积进一步减少。
得房率的提升,就是性价比的提升。
在项目剩余的109面积段产品中,09#无疑是最佳的楼栋选择。
未开的同面积段户型只剩下整个项目最南侧的两栋楼有存量,不仅距离更远,朝南面的景观体验也不可控。而在09#上,北侧为东西景观轴线,南侧为庭院花园,居住体验极为舒适。
真正手慢无的捡漏上车改善社区绝好机会。
15# 下沉会所+多功能架空层贴身的性价比之王
15单元所在的10号楼,位于项目的最北侧。
其一,紧邻北侧主要人行出入口,意味着更近,更直接的归家方式。
其二,身侧就是约1500㎡下沉会所顶级配套,风雨连廊全天候直达。
其三,项目的架空层泛会所集中在北侧四栋楼首层,包含首开两栋以及本次加推的15#,单元门前还有童乐花园。
如果想要在小区里享受更多亲近自然的家庭时光,那就不能错过这次机会了。
其四,长约180米的景观主轴就在旁延伸,景观效果不言而喻。如果从东边套的转角主卧向外看去,想必是满眼绿意。 另外据悉,开发商也会在单价上有所优惠。 无论是景观面还是配套可达性,都让15#性价比急速攀升。
西南爆款
千万级卷王四房
伴随着“好房子”的声量越来越大,也只有凭借充满匠心的产品,对生活场景的充分把握,对居住痛点的有效回应,才能赢下越发严格的消费者口碑。
而保利海上印本次加推的两个户型都亮点颇多。
约129㎡户型,本次加推52套
在129平这个面积段,真正做到正四房的产品,非常难得。 如果我们去看目前市场的其他产品,四房大多140㎡起步,保利海上印这样的产品选择,我们认为体现了实用主义回归的核心价值。
其一,奢侈四面宽朝南。
朝南面,也就是东西横向展开宽度,永远可以是衡量产品的核心指标。尤其在上海这样需要阳光的气候特征,更大的面宽就是更舒适的体验。
保利海上印约13.8米的朝南面,在同面积段中可谓真正“顶流”。
其二,均好的尺度。
寻求改善,意味着现在的居所不能完全满足其需求,可能是家庭成员的改变,可能是家庭关系的深化,所谓“好房子”也应该包容这些细微的场景。
在这样比较极致的面积优化之下,还能做到各个卧室之间均好的尺度,给予每一位家庭成员平等且私密的生活体验。
北卧同样兼顾实用与舒适
其三,等尺度贯通南北的共享空间。
我们可以看到,在这个户型上从厨房到阳台是等开间的。这意味着整个共享空间中没有墙角,没有阻碍。
这让收纳的布局更加灵活和充分,也让在空间中活动的人互动更加直接与自由。
而宽U型厨房里,足够的料理台长度是对每一位家庭厨师长的尊重。 洗菜择菜不再孤立,家庭聚会也能随意扩展。
约129平户型样板间实拍
其四,满飘窗、转角窗、转角阳台带来的高赠送和大视野。
整个户型外延一圈被飘窗和阳台包裹起来。 飘窗带来当然有使用面积上的高额赠送,但还有人视点上的空间外拓。这直接让户型在实际感受上能和更大面积段户型持平。 主卧的无柱转角主卧飘窗,突出阳台的270度全面观景视野,也在回应项目极高品质的景观轴线。
楼王占位 价格倒挂
抢占窗口期
整体来看,保利·海上印的二期小编认为几乎是等同于首开的高性价比批次,眼下的7字头机会不容错过,未来这个项目大概率带领梅陇板块突破8字头均价。
特别这批次3个面积产品都几乎有绝版位置优势,错过了都是整个小区不可能再有的机会,非常值得大家珍惜。
目前,项目已过会,价格小幅上涨,整批次均价上依旧会在7字头以内,与一批次相近,因为楼栋位置的关系,会有略微涨幅;但这个涨幅,是楼栋价值的涨幅,小编认为完全可以接受。
比如09单元约109㎡的边套,相比一批次同户型的7#18单元大概率要贵,毕竟18单元北侧临马路和靠近主入口,相对09单元位置更安静,因此我认为这批次总价上如果贵15万以内,是完全可以接受的;
再比如15单元约133㎡中间套,与一批次17单元中间套,楼栋位置几乎一样,如果持平,那么绝对可以无脑冲,等于没涨;而如果更便宜,那么就是给足诚意,带来意外惊喜。
而约133㎡东边套相比17单元同户型西边套,那么东边套显然更有优势,能享受更多的东向日照时长,总价贵10-15万也是完全可冲的。
另外08单元约129㎡产品,是4个中心楼王单元的绝版产品,相比之前一批次11单元的约151㎡产品,是难得的高性价比享楼尊位机会,错过未来再也没有。 因此,总体上这批次产品的机会真心都非常有看点,建议大胆冲。
识别二维码
进入“「保利海上印」”预约看房通道
案场销售会第一时间与您联系
交通方面
项目距离15号线景西路站直线距离仅约500米(来源于百度地图测距),未来春申塘建桥后,将迅速抵达地铁站,通达全城,未来还有机场联络线、23号线。
商业方面
周边商业除了沿街商铺以外,还有众多商业中心:兴梅路尚乐坊、海梦一方、绚荟城、以及麦多生活广场等等,完全可以满足日常购物需求。
海梦一方实景,图源网络
教育方面
周边有整个闵行区知名度非常高的办学时间已达119年的闵行实验小学;以及录取率也是十分优秀的市重率、区重率在闵行区的公办学校里数一数二的莘松中学;还有蔷薇小学、罗阳中学等学校、上海市第二中学(梅陇校区)、闵行区春申景城幼儿园,还有在规划在建的学校,教育资源丰富。
(免责:以上教育资源整理仅代表楼盘与学校的距离,该房屋所在项目暂未划分学区,开发商不对项目交房后所属学区、学校做任何承诺。教育资源分配或学校/学区划分以及学校的具体招生规则等请以政府相关主管部门、教育机构公开的最新信息为准。)
识别二维码
进入“「保利海上印」”预约看房通道
案场销售会第一时间与您联系
2024沪房新传播助力新房置业
推出9大免费服务,详情可添加选房师微信咨询!
咨询9大免费服务,口令“购房无忧”
9大免费服务丨展开动画
本文由【沪房新传播】团队创作
转载请声明出处
点击图片 了解详情

