“最新消息
西派海上五批次收官房源
已过会,预计下周开启认购
推出最后172套压轴楼王产品
建面约88-103-105-110㎡3房
其中最低约500-600万级捡漏内中环
积分日光红盘
最后买入机会,错过再无
每日沪房网签快报丨展开动画
项目推荐 · 理由
项目推荐理由丨展开动画
内容提要:
*01.基本信息
*02.推售信息
*03.周边配套
看房请联系经纪人
自行前往售楼部视为放弃参与以下活动
今年截止于5.24日,上海一共有125盘入市,而其中已触发积分的项目,只有14盘,占比约11.2%。
一方面,这意味着市场的竞争相当激烈,地段、配套、潜力、社区、户型、颜值、审美...少一环都有可能成为别人热销的背景板。
但另外一方面,在这样的市场下,所有能够触发积分的红盘,都是客户“万里挑一”的完美之作,是如今上海市场中,含金量最高的项目,值得闭眼入。
而其中,西派海上是我认为:上海10万+新房中更香的一个,是各维度都领先了浦东10年的作品!
先简单总结一下:
领先浦东10年的地段:张江科学城北蔡产业社区,与正张江一线之隔。
未来的浦东,不管10年还是20年,张江始终是核心,并且是无法替代的唯一真神。
其他区域一旦步入成熟,就意味着价值就此到顶。
但张江不同。
张江是上海以“集成电路、生物医药、人工智能”三大先导产业为核心的区域,产业规格之高,无出其右。
数据来源:浦东发布
这只是冰山一角,在软件与信息服务产业上,浦东软件园共有软件企业超1700家,从业人员超45000人(来源浦东软件园官网)。
新材料产业、航天航天等也皆处于全国龙头地位,不再赘述。
前沿产业+占全国超高比例的产值,决定张江科创霸主地位难以撼动,意味将持续吸引高知、高收入人才,所衍生的高端居住需求,将为张江、北蔡楔形绿地的房产市场带来源源不断的发展契机。
所以说,与张江一线之隔的地段,让西派海上在未来十年甚至数十年的时间中,都能维持着高姿态、高潜力、高价值。
领先浦东10年的生活方式&配套能级:内中环最后一个成片开发区域。
北蔡楔形绿地是浦东烫金核心区域内,继陆家嘴、前滩、碧云、三林滨江之后,最后一块成片开发区域。
换句话说,这片区域是目前整个浦东的发展侧重点:必然拥有着目前浦东乃至上海最新的开发模式、建设理念以及资源倾斜。
这是浦东未来10年“更高标准”的支柱板块。
小编简单总结四点:
第一,目前张江科学城北蔡产业社区已经聚集了:中国铁建、国贸、绿城等众多一线实力房企了。另外,还有大量实力房企在等待后续的宅地出让。
一方面,国贸中国铁建首发,未来绿城等一线房企共同发力,未来区域的发展上限和笃定性是非常强的。
另外一方面,未来整片区域清一色的高端豪宅,界面崭新、板块调性很高,圈层更纯粹、更统一,妥妥的新一代国际住区!
第二,整个区域的首发住宅是西派海上,联动价约9.2万/㎡;第二块住宅是绿城项目,地块装标竞价至5000元/㎡成交,成交楼板价7.14万/㎡。
相比西派海上,新地块的楼板价涨幅超过约28%!如果按照这个比例来算新地块的均价,那后续新房的价格或许约11.7万以上。
这样的价格大越级,即使是前滩也从未拥有过。
而未来的住宅,会在这个基础上越来越高。
这是价值的体现,也证明了政府对于这片区域的期待值之高,是超越以往的。
第三,目前,协和双语学校官宣入驻北蔡楔形绿地!
“协和教育”创始于1993年,秉持“融合中西,和谐发展”的核心价值,现已举办近40所幼儿园、10余所中小学、在校学生来自全球50多个国家和地区。
这所民办小学的能级和规格,相当出彩。除此之外,西派海上旁边小学、中学规划也已出,在协和双语这样顶级的教育资源落地之后,公办学校的能级就更加让人期待了。
北蔡楔形绿地规划小学效果图,仅供参考图片来源:https://www.pudong.gov.cn/zwgk/14523.gkml_ywl_gsxx_sjfags/2024/311/334002.html
(免责:本项目宣传中对项目周边教育资源的介绍,旨在协助提供地理位置等相关信息,并不视为本公司对就读学校作出承诺,学区划分等具体信息应以教育主管部门及办学方颁布的政策规定为准。)
第四,整个区域内的基础建设已提上日程,即将开启全面发展时代。
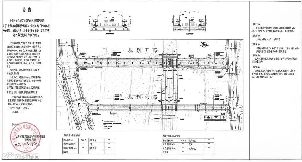
除了以上所说的,整个北蔡楔形绿地内的主干道,规划五路(北中路-莲安东路)、规划六路(北中路-莲安东路)新建工程等规划也都落地。
而这样的资源倾斜+成片开发模式,也证明了这个区域未来的生活方式&配套能级,真的超越了浦东10年。
领先浦东10年的产品力:西派中国里程碑作品,奢配前所未有约8000方超级示范区,壹号产品力实景可见。
关于西派海上的产品力,我真的只能说是“卷到头”了,接下来的高溢价率地王产品们,再卷也不过如此了。
✔全市罕见约8000㎡超级示范区;
✔约2000㎡华尔道夫酒店式高端会所;
✔李益中、胡栋民等当代大师操刀,原创定制汉白玉/非遗工艺系列雕塑;
✔归家动线用五湖四海高端奢石铺就;
✔荣获室内设计高级别金奖。...
西派海上打造了一座约2000㎡的华尔道夫酒店式高端会所,就冲这会所体量,在浦东也是数一数二的了,那些两三千万的新盘会所,也不过如此体量。
健身器材采用豪宅标配的进口健身品牌Water Rower划船机、NOHrD跑步机、健身车等,还有专门的瑜伽房,同样配置了sws的真皮瑜伽垫、滚轴等。
25x8半标无边界泳池,池底运用了马赛克拼花,大理石墙面、地面,天花板则运用发光玉石与造型艺术板。和无边水景一样,泳池也尚未注水,正在做最后的整理工作。
还有壁球馆、儿童阅览区、私宴厅等功能间。
那么接下来大家要问了:
为何有如此优异战绩和口碑?
根源还是在“基因”。一方面两大世界级500强企业皆拥有深厚产品锻造力:国贸地产拥有丰富豪宅开发经验,旗下天琴系是全国高端豪宅系列之一;“西派系”则是中国铁建地产TOP1的产品系,已历十余年打磨和市场检验,在成都、重庆、广州等地备受塔尖圈层认可,并形成了IP效应。不止购房者,业界对其不断迭代的产品力也高度肯定,西派系连续6年斩获 “中国房地产项目品牌价值TOP10”就是最佳印证。
另一方面,两大开发商心怀焕新张江的决心。因此,两大品牌优秀产品力交融,以“超配式”诚意,打造出了西派海上,这一【西派顶序】西派中国里程碑作品,填补了张江十年高端改善空缺。说它“里程碑”,从大师群著就能一窥端倪。
西派海上不是只要求装标或社区一项指标好,而是全维度精进,邀请全球大师共创,李益中负责空间、胡栋民设计雕塑、笛东操刀景观...从建筑、景观、户型甚至雕塑全维度定制。且不止硬件,审美、艺术被高度重视,开发商们洞察到了未来产品力比拼,美学将是一条独立赛道,因为阅尽繁华的高净值买家普遍具备很高的审美品味。
双世界500强联袂+大师群著,这才造就了全市首屈一指的约8000㎡超级示范区。首先,规模超大,一般示范区也就4000、5000方,西派海上约8000㎡展示面是开发商对自身产品兑现力绝对自信的体现。其次,不仅大,示范区更有里子有面子。
约88米海派公馆门庭
项目归家门庭沿街展面约88米,视觉冲击力极强,并采用高奢酒店“环岛式”落客流线,配汉白玉大师雕塑作品,墙面、地面采用奢石铺就。
这样气势磅礴的门庭,令张江的归家仪式感焕然一新,就像一座高奢酒店,刷新了张江的美学面貌。
约2000㎡圈层领地
同级项目配会所的极少,即使有,也普遍是会客厅+健身房,面积约1000㎡左右。而西派海上打造了约2000㎡下沉式会所,内含孔雀廊、水吧、健身房、半标游池、壁球馆、私宴区、儿童区等,复刻华尔道夫传奇体验,构建一个“足不出户,奢享世界”的圈层领地。
在细节上,开发商都匠心处理,不是为了卖房子简单去做,而是真得想做到极致,把它当成艺术品对待,让空间更具生命力。
比如,半标无边界泳池,池底运用了繁花马赛克,墙面与地面均使用大理石,天花板则运用发光玉石与造型艺术板,背景墙为LV同款定制双C造型艺术板。这哪是一般的泳池,就是一个美术馆级的空间。
又比如健身品牌的使用,全会所健身器材采用豪宅标配的进口健身品牌waterrower的划船机、NOHrD跑步机、健身车等。瑜伽室均采用定制品牌sws的真皮瑜伽垫、滚轴等,质感及调性拉满。
另外,部分架空层打造为多元主题休闲空间,一个集花艺、日咖夜酒、休闲阅读、咖啡体验、社交娱乐、骑行沙龙等多重功能为一体的“集中式”超级聚场,是业主解决亲子陪伴、半熟关系、邻里社交的理想之地。
城市微度假园林
生活景观上,项目打造“海上繁花,摩登公馆”国际公园生活。传统的水景,在这里成为约500㎡马赛克无边水景,搭配下沉式卡座,“在家就是度假”,天天酒店式享受。
传统的花园,在这里复刻了海格罗夫庄园,国际感、奢华感随处即拾。
第三,不仅硬件奢华,更融入现代美学,每个空间都化身艺术空间。
①、国际新海派立面
项目立面点缀了巴西铂金钻、巴西亚马逊绿等珍贵石材,让建筑历久弥新的同时一眼封神。
②、社区即开放式艺术馆
参观完项目,我最大的感受是,西派海上不仅卷全实景,更在审美艺术、生活方式上接轨国际前沿,拔升了高端住宅的品味和调性。艺术无处不在,比如入口处有胡栋民先生操刀,从约1500公里外臻选的汉白玉整石雕琢而成的《海·回声》;由张代松先生执笔的非遗纯铜雕塑也遍布园区。每一个空间都不是简单的空间,而是化身艺术空间。
③、社区树种身价高,也将是小孩子的植物课堂
项目匠心引进名木树种,30年树龄朴树、铁冬青、精品紫薇…且无一不是经过精挑洗选优美树形,打造四时有花、春色满园的景致。
这个示范区,不管是立足内中环、还是立足浦东、立足上海,都称得上是颠覆性的产品力革新!是上海真正的产品力标杆。
而超强的产品兑现力,又让购房者吃下了一颗定心丸,买得更安心。
识别二维码
进入“「中铁建国贸·西派海上」”预约看房通道
案场销售会第一时间与您联系
「五批次推售楼栋户型分布图」
五批次全套户型图如下:
建面约88㎡3房2厅1卫
这是一个经典的飞机户型,南北通透、三开间朝南设计,采光通风俱佳。
过程稿仅供参考,最终以实际为准
厨房餐厅客厅阳台LDKB一体化设计,为小家庭提供欢聚大空间!卧室全飘窗设计,延伸空间,丰富生活场景!入户打造玄关收纳空间,仪式感十足!U型厨房,动线人性化!三分离卫生间设计,实用性更强,1卫也不至于局促!
建面约103㎡3房2厅2卫
经典3房飞机户型,功能性和尺度感都拿捏得恰到好处,总价约800万起!
过程稿仅供参考,最终以实际为准
该户型三开间朝南,南北通透。同样是LDKB大长厅设计,空间利用合理,同时打造了阔绰餐厅,可从容放下圆桌,满足大家庭的用餐需求。阳台做到多角度观景,多一面享受。另全卧飘窗设计,延伸了室内使用面积。
建面约105㎡瞰景3房
这是一个可以几乎可以打满分的王炸户型,在三开间朝南+南北通透+阔绰餐厅基础上,做到了主卧和北次卧L型大飘窗设置,拥270°采光和视野。
过程稿仅供参考,最终以实际为准
建面约110㎡3房2厅2卫
西派海上项目在SYDNEY DESIGN AWARDS 2024(2024悉尼设计大奖)荣获室内设计高级别金奖。我想这是对项目室内品质、匠心最好的褒奖,这需要设计感、品牌档次、细节等高度在线。
其次,装标不需要和同级比了,妥妥越级了,媲美2000万级豪宅配置。厨电配置了意大利进口品牌SMEG的灶台油烟机、博世太空舱五合一(蒸烤炸炖煮)蒸烤一体机与博世15套嵌入式洗碗机。(以开发商公示为准)
水槽采用了魔力多功能的水槽龙头以及枪灰色不锈钢表面大单槽,高效便捷的同时,更显美观。水槽下方还配置了霍尼韦尔前端净水器与末端净水器。
同时,项目的卫浴洁具选用了全套高仪产品,包括独立式全智能马桶、台盆、三孔调节龙头、恒温顶喷花洒等。
第三,人性化细节满满,凸显匠心。比如,奢石不仅在公区,更贯穿室内。归家门厅墙面采用石材镶嵌意大利毕加索奢石,地面采用大理石水刀海派拼花。
项目实拍图,以实际交付为准
比如,厨房和餐厅中间用无地面链条设计的海派金属玻璃移门隔开,地砖能通铺更美观,也方便扫地机器人通扫全屋。同时还标配中西双厨。
又比如,主卫台面上方的镜柜通长设计,自带隐藏式美颜灯、牙刷吹风机综合支架、以及美妆冰箱。
项目实拍图,以实际交付为准
总体而言,在充斥同质化产品的当下,国贸+中国铁建依然在“不计成本”狂卷细节,这种坚持本身就是一种胜利。
识别二维码
进入“「中铁建国贸·西派海上」”预约看房通道
案场销售会第一时间与您联系
交通方面
项目周边有8号线、13号线、16号线三轨交环绕,但是步行距离都要在1.6公里左右,地铁出行较为不便。如果自驾出行的话,就比较方便了,项目临近罗山高架、中环路、高科西路等主干道,可快速直达前滩、陆家嘴、人民广场等核心区域,距离张江更是一路之遥。
商业方面
四至范围内还是大片的空地,暂无商业配套,根据板块规划来看,周边虽然有部分商业规划,但规模不大,而且什么时候能落地,也是一个未知数。距离项目5公里范围内,有长泰广场、龙阳广场等商业,自驾约15分钟左右可达!
位置示意图,仅供参考
教育、医疗方面
周边有规划2幅幼儿园用地、1幅小学用地以及1幅初中用地,根据答疑纪要显示,地块周边规划的幼儿园、小学等配套将同步实施建设。
医疗方面:距离项目约1.6公里有上海中医药大学附属曙光医院(三甲)。
位置示意图,仅供参考
识别二维码
进入“「中铁建国贸·西派海上」”预约看房通道
案场销售会第一时间与您联系
2024沪房新传播助力新房置业
推出9大免费服务,详情可添加选房师微信咨询!
咨询9大免费服务,口令“购房无忧”
9大免费服务丨展开动画
本文由【沪房新传播】团队创作
转载请声明出处
点击图片 了解详情

