“最新消息
对望松江广富林,四千年溯源之作
容积率仅约1.2的新江南诗意墅区
「国贸·海上原墅」
将推约108-201㎡洋房&叠墅&联排
实景示范区+样板间已开放接待
二批将于7月初取证认筹
每日沪房网签快报丨展开动画
看房请联系经纪人
自行前往售楼部视为放弃参与以下活动
项目推荐 · 理由
项目推荐理由丨展开动画
内容提要:
*01.基本信息
*02.推售信息
*03.周边配套
想住低容积率墅级社区的小伙伴,留给你们的时间真的不多了!
结合最近土地和新房供应两端的数据,小编想跟大家分享2个结论:
第一、上海低密尤其是1.2以下容积率的宅地正在消失!
据统计,在2022年容积率1.2以下的宅地还有11块入市,2023年锐减至4块、2024年则只有3块,3年合计18块占比总市场仅约7%,稀缺属性爆表。
第二、上海的联排别墅正在经历量跌价升!
低密宅地稀缺,别墅新房供应自然缩减。
在2022年上海还有2437套通勤时间可控的联排产品入市(排除崇明、金山、临港等极端偏远地区,下同),2023年锐减至1425套,2024年则只有1258套,占比新房供应总池子仅约2%,百里挑二的改善机遇!
不过万物皆有裂缝,那是光透进来的地方,在形势如此严峻的背景下,四千年文脉胜地,松江广富林正对门,惊现容积率仅约1.2墅级社区,一批次首开入市,累计认购229组,认购率188%,并触发积分!在市场上掀起一波改善热潮!
现在就跟着小编的文字一起了解下国贸·海上原墅的项目信息、户型以及周边配套吧!
2024年5月28日上海第二批次土拍中,国贸&松江交投以26.98亿元摘得该地块,成交楼面价28000元/㎡,溢价率0%。
项目四至东至辰晓路,西至龙源路,南至广轩路,北至骏安路。
项目容积率1.2,占地面积约8.03万方,计容面积约9.64万方;保障房占比5%,类型为公共租赁住房;中小套户型不得低于总住宅建筑面积的30%,全装修比例50%!指导价6.3万/㎡,装标要求不低于2500元/㎡!
01
4000年广富林的珍稀禀赋
广富林,有着4000年的历史,是上海最为悠久、最为独特的土地,诞生于这片土地的豪宅作品,自当成为一个时代的图腾。
海上原墅,与广富林文化遗址仅一路之隔,以“屋宇对望”的姿态,将人居嵌入广富林文化遗址、郊野公园、辰山植物园和佘山国家森林公园组成的城市生态圈内。
周边松江大学城、松江印象城、华东政法大学松江实验学校……自然与人文交织,繁华与静谧兼备,是松江天赋异禀的“墅居珍藏地”。
2012年“限墅令”以来,上海容积率1.0以下的住宅绝迹。近三年,上海容积率1.2以下的低密宅地仅18块,占市场总量不足7%!(信息来源:数据来自上海土地官网公示)广富林板块,只此海上原墅,堪称“城市绿洲中的低密稀品”。
02
五大维度重构高端墅区标尺
为什么海上原墅能成为备受青睐的珍藏品?因为海上原墅从建筑、景观、会所等五大维度实现了产品的全面进阶。
约1.2容积率,此后难觅。海上原墅落子广富林松江腹地,三大国家4A级景区环绕,松江罕见的“珍藏级”超低密墅区。
· 富林十景,松江“园中之园”。规划“富林十景”一半花园一半墅的生活场域,使家成为花园的诗意延伸,花园成为生活的自然底色。
工法造极,新江南屋宇。提炼传统建筑形制,以艺术手法创作“新江南学院派屋宇”。超140米的江南门楣,赋新广富林城市封面。
高奢会所,墅居社交主场。规划高奢会所体系,涵盖私宴厅、恒温泳池、茶室等,定制化服务构建全方位奢雅生活范本。
中央车站地库,礼遇生活仪式感。创新引入地下中央车站的概念,生态自然、通透奢华的地下落客环岛,营造尊贵而不失雅致的归家体验。
识别二维码
进入“「国贸·海上原墅」”预约看房通道
案场销售会第一时间与您联系
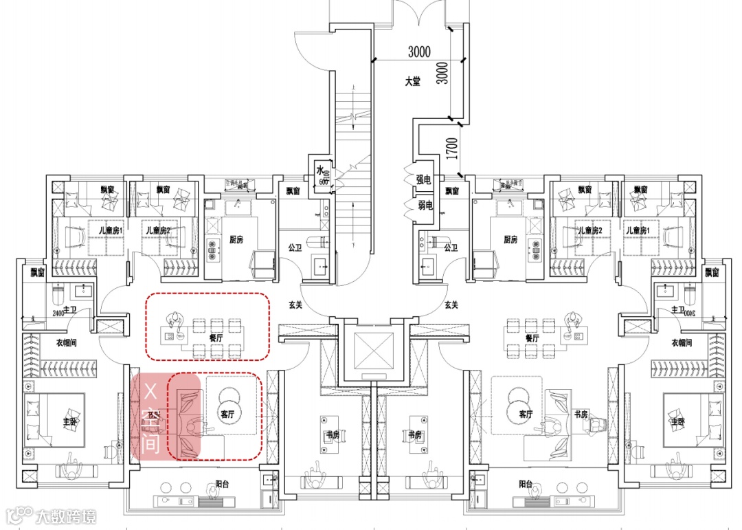
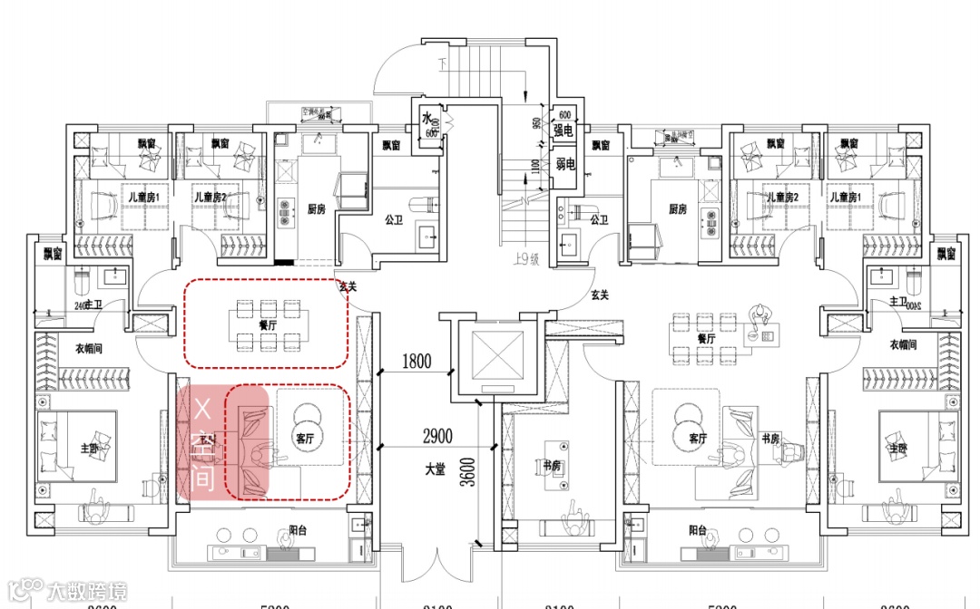
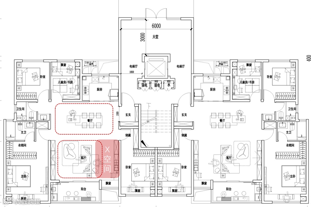
产品方面,国贸海上原墅,项目占地面积约8.03万方,容积率仅1.2,由9幢6-8F多层、9幢4F多层、12幢3F低层住宅以及1幢8F保障房组成,共计规划778户,其中可售住宅约675户!
户型方面,项目将推出洋房、叠墅以及联排三种产品;
其中洋房为建面约108㎡、124㎡、145㎡3-4房,共计381套;
叠墅为建面约141-150㎡(主力)、151-160㎡3-4房,共132套;
联排为建面约157-176㎡、202-205㎡3-4房,共162套!
项目整盘指导价为63000元/㎡,预计洋房均价在5.2万左右,叠墅约6.6万左右,联排约7.8万左右,除联排户型以外,均为装修交付!
该户型整体面宽约7.5米,进深约12米,交付预留有电梯井以及内庭院,内庭院类似于天井的性质,通顶露天,不计入建筑面积,后期可根据个人需求进行二次改造,附赠地下室+花园+南北露台!
建面约176㎡联排,共计约34套,
176户型在布局上基本与157户型保持一致,区别在于176面宽更宽,约8.4米,但整体进深会短约40公分,约11.4米!
建面约201㎡联排,共计约18套,
该户型整体面宽约8.1米,进深约16.15米,交付预留电梯井,附赠两层地下室;
首层约6.9米大尺度横厅+U型厨房+南向多功能室+客卫,附赠大面积侧边花园;
二层1个南向套房+家庭共享空间,二层客厅上方交付为挑空状态,可进行自由改造,如改造为房间,则属于附赠面积。
建面约141㎡上叠,共计62套,
上叠首层高约3.15米,二层约3.05米,
首层约7.2米横厅+北向储藏室带阳台(可打通阳台,变为北房间)+1厨1卫,二层为两个朝南的卧室+北向小房间带阳台(也可根据需求改为房间使用);
建面约150㎡下叠,共计约62套,
下叠地下室层高约5.65米,首层约3.15米,二层3.15米,首层约7.2米横厅连接南向花园+北房间+1厨1卫;
建面约109㎡3房2厅2卫,共计约237套,
一梯两户,经典飞机式户型,三开间朝南,南北直通,客厅面宽约3.8米左右;
建面约124㎡4房2厅2卫,共计约88套,
一梯两户,四叶草户型,三开间朝南,全卧飘窗,约5.2米小横厅!
洋房首层层高约2.9米,标准层2.95米,顶楼2.85米,外立面以大面积玻璃+铝板线条+真石漆为主!
部分户型图如下:
洋房110㎡:
洋房120㎡:
洋房145㎡:
叠加户型:
下叠
上叠
识别二维码
进入“「国贸·海上原墅」”预约看房通道
案场销售会第一时间与您联系
板块方面
中国人骨子里的居住理想,总是与山水相依。
山,是沉稳的依靠,是千年文脉的沉淀;水,是灵动的韵律,是生生不息的流淌。国贸海上原墅,北倚佘山,南临广富林湖,恰好承载了这份流淌在血脉里的东方浪漫。
佘山的苍翠,是自然的屏障,更是历史的见证。漫步山间,仿佛能听见松涛低语,与古人隔空对话。而广富林的一泓碧水,则映照着千年文化的影,湖波荡漾间,是江南的诗意,也是现代生活的静谧。
站在国贸海上原墅西望,是自然的诗意。 佘山国家森林公园的苍翠林海,辰山植物园的四季花事,广富林郊野公园的田园野趣——推窗见绿,漫步即景,呼吸间尽是草木芬芳。这里,是都市里的桃源,让心灵随时栖居在山水之间。
东向,是城市的温度。 印象城的时尚潮流、9号线地铁的便捷通达、万达广场的熙攘烟火,举步间便可拥抱繁华。咖啡香、书页声、霓虹闪烁,现代生活的丰盛与活力,在此触手可及。
在国贸海上原墅,一半公园,一半烟火,无需取舍,而是兼得。
众所周知,先有松江府,后有上海滩;先有广富林,后有松江府。广富林,是被誉为“上海之根”的文明发源地。
国贸海上原墅西侧一路之隔就是广富林文化遗址,脚下,是四千年的文明回响。 国贸海上原墅承袭这份文化基因,让建筑与文脉共生,为当代生活注入历史的深邃底蕴。
而项目的南面松江大学城7所高校如星辰汇聚,十余万师生在此激荡思想——这里是人才的熔炉,创新的策源地。更与G60科创走廊共振,人工智能、生物医药、量子科技等前沿产业在此蓬勃生长,科技之光正重塑时代的天际线。
交通方面
项目距离9号线松江大学城站步行与4.2公里左右,距离较远,这也是松江新城一直存在的一个问题,日常出行基本只能依赖自驾!
商业方面
项目步行范围内目前没有什么商业配套,然后2.7公里左右有松江印象城,4.5公里左右有万达广场等商业,可完全满足日常丰富的消费需求;
教育方面
项目南侧紧邻华东政法大学附属松江实验学校,对口的概率很大,未来小朋友上学可能会很方便,算是一个优势!(期房不承诺学校对口,仅做参考)
识别二维码
进入“「国贸·海上原墅」”预约看房通道
案场销售会第一时间与您联系
2025沪房新传播助力新房置业
推出9大免费服务,详情可添加选房师微信咨询!
咨询9大免费服务,口令“购房无忧”
9大免费服务丨展开动画
本文由【沪房新传播】团队创作
转载请声明出处
点击图片 了解详情

