大数跨境
0
0

【炸裂】宝山站TOD+19号线+合生汇!「金茂棠前」首开约85-117㎡2-3房!

【炸裂】宝山站TOD+19号线+合生汇!「金茂棠前」首开约85-117㎡2-3房! 沪房新传播
2025-05-04
0

最新消息

19号线宝山站

金茂&宝冶杨行项目

案名【金茂棠前】

主力将推建面约82-169㎡2-5房





每日沪房网签快报丨展开动画

看房请联系经纪人

自行前往售楼部视为放弃参与以下活动


项目推荐 · 理由

项目推荐理由丨展开动画

当下充满“不确定性”的市场,很明显能感觉到大家买房更谨慎了。


在购房者历经“百里挑一”的理性购房决策过程中,真正具备核心价值的品质红盘终将以超越性的产品力脱颖而出。


双轨交盘、宝山站城融合TOD首发金茂棠前一经亮相就引起大量关注,首秀霸屏北上海!


5月1日,项目示范区&样板房盛大开放,现场热度空前!项目目前已经过会,将推出264套建面约85-117㎡3-4房,均价约4.9万/平方米!




内容提要:

*01.基本信息

*02.推售信息

*03.周边配套




2024年12月30日,金茂&宝冶&杨行城建于2024年八批次土拍中以31.16亿竞得宝山站商住组合地块(宝山区BSP0-0801单元13A-01、02aA-04地块),楼面价9058元/㎡,住宅中小套型占比50%,集采价2500元/㎡。



项目地处宝山杨行,是19号线宝山站(在建)TOD综合体地块。地块用途为商业、住宅、办公、餐饮旅馆混合,其中13A-01为住宅,容积率2.3,装修标准2500元/㎡。



其中住宅地块——宝山区BSP0-0801单元13A-01地块当天就发布了设计公示,拟建16幢16~17F高层住宅,项目规划有老年活动室、健身点等配套。



项目占地面积53569方,容积率2.3,总建面179134方。其中,地上计容面积123210方,地上不计容建面6222方,地下建面49702方,限高80米。



项目全新效果图:


识别二维码

进入“「金茂棠前」”预约看房通道

案场销售会第一时间与您联系



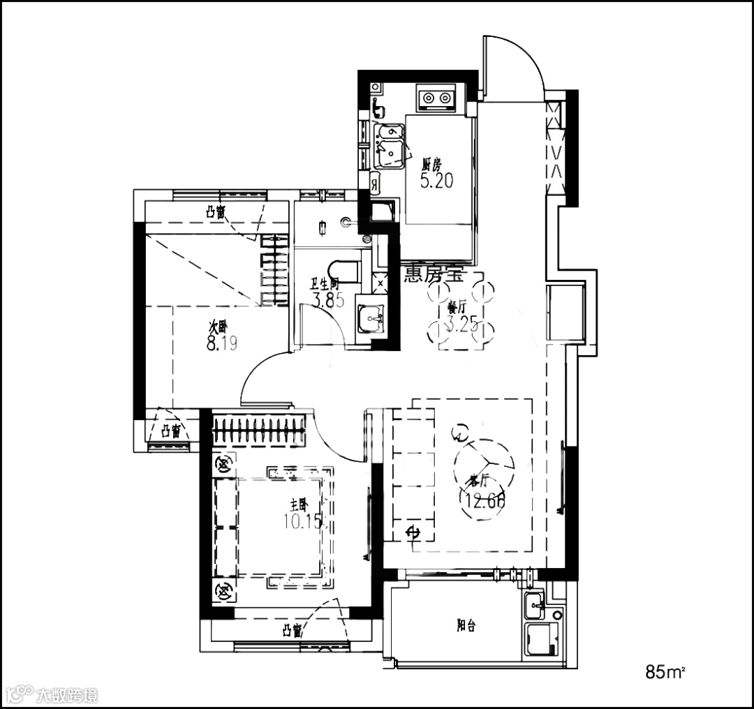
据悉,项目可售住宅户型为建面约82-92-102-105-128-143-169㎡2-5房。(过程稿,以开发商发布为准)



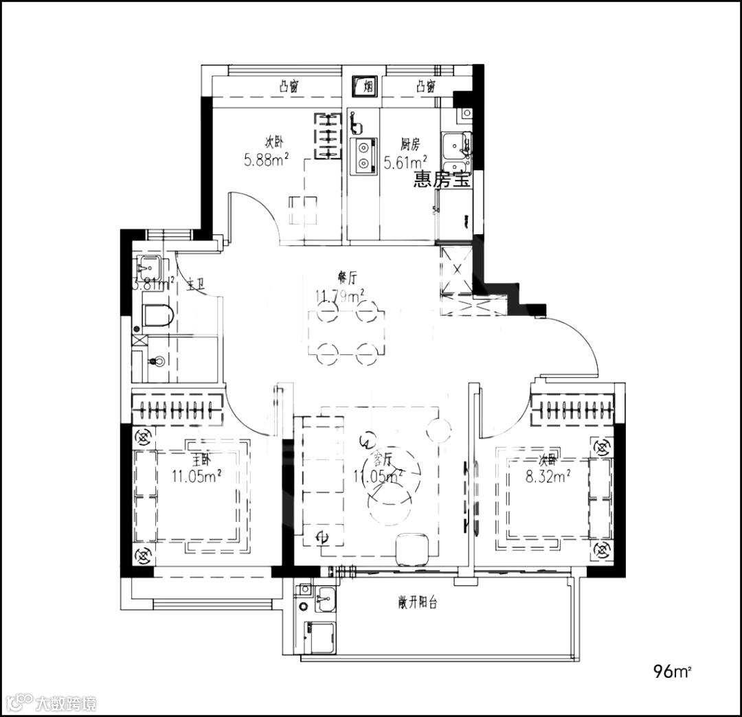
建面约85m2房2厅1卫,共约96套,3梯6户,每一层都有连廊,层高约3.1米;


预留分户S墙设计,可释放厨房冰箱空间,主卧朝南厅朝南,次卧南北均有明窗,南北通透性略差一些,中间套北向有连廊影响。



建面约96m3房2厅1卫,共约176套,1梯2户,仅局部楼层有连廊,层高约3.1米;三开间朝南,独立餐厅空间,南北通透,次卧与客厅双阳合贯通。



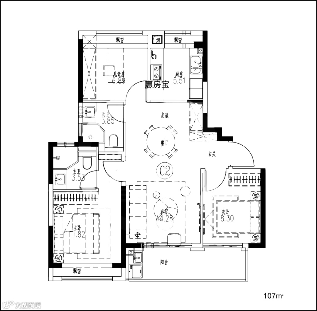
建面约107m3房2厅2卫,中间套户型,共约298套,1梯2户,仅12F、15F有连廊,层高约3.1米;


经典飞机式户型,三开间朝南,南北通透,南向双阳合。



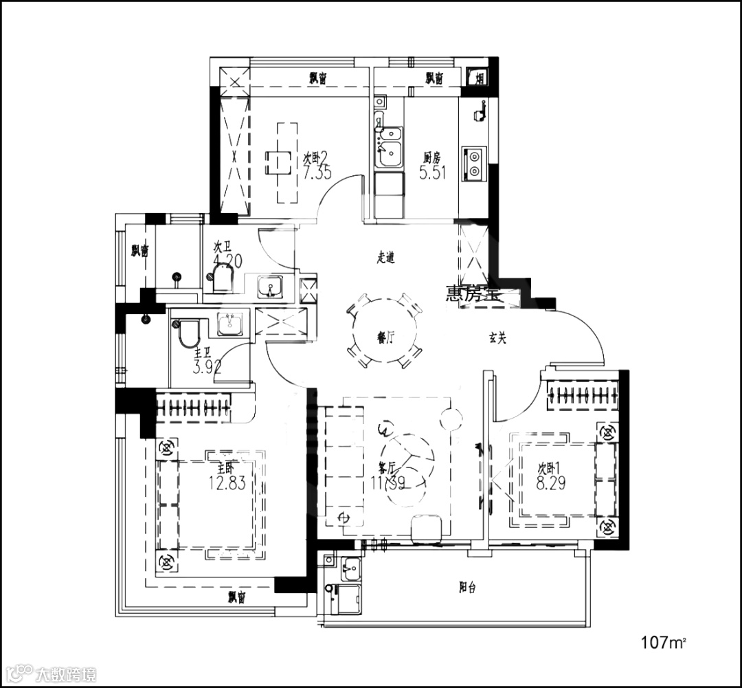
建面约107m3房2厅2卫,边套户型,共约131套,1梯2户,无连廊影响,层高约3.1米;


经典飞机式户型,三开间朝南,南北通透,南向双阳合。



建面约117m3房2厅2卫,边套户型,共约183套,1梯2户,无连廊影响,层高约3.1米,该户型与107边套户型格局其本一致,主要区别是117户型为小横厅设计。



建面约133㎡4房2厅2卫,共约101套:2梯2户,无连廊,独立电梯厅及独立入户玄关,四开间朝南,南北直通,户型还是比较不错的。



建面约152㎡4房2厅2卫,共约101套,2梯2户,无连廊,该户型属于133户型的进阶版本,格局基本致,152户型全部为边套,主卧为270°转角飘窗。



建面约175㎡4房2厅3卫,共约32套,2梯2户,无连廊,独立电梯厅,四开间朝南,双套房。




识别二维码

进入“「 金茂棠前”预约看房通道

案场销售会第一时间与您联系



宝山高铁站是是北沿江高速铁路的始发站,建成后将成为上海第四大、上海北部最大的高铁站。同时是四场合一的枢纽站,沪渝蓉铁路、沪通铁路、预留捷运线以及轨道交通19号线。



地块位于湄浦两侧,周边自然环境优美,西侧近邻盘古公园。地块距离3号线铁力路地铁站约910米,西侧有江阳北路、铁峰路等快速路。



周边的教育资源有上海大学附属宝山外国语学校、上海师范大学附属宝山实验学校等;医疗设施有上海中冶医院等。


识别二维码

进入“「金茂棠前」”预约看房通道

案场销售会第一时间与您联系


2024沪房新传播助力新房置业

推出9大免费服务,详情可添加选房师微信咨询!

咨询9大免费服务,口令“购房无忧”

点此亲启

致各位

9大免费服务丨展开动画


本文由【沪房新传播】团队创作

转载请声明出处






点击图片  了解详情

「招商臻境」

沪房新传播 · 好房推荐

「保利·光合跃城」

沪房新传播 · 好房推荐

「时代之城」

沪房新传播 · 好房推荐

「华发海上都荟」

沪房新传播 · 好房推荐

「华发观澜半岛」

沪房新传播 · 好房推荐


【声明】内容源于网络
0
0
沪房新传播
上海买房必备的公众号!上海新房or二手房专业服务平台,为您提供新房取证、开盘信息,专业解答您新房积分计算、购房资质、税费贷款等购房问题,让您买房更明白更省钱!团队boss( 甘经理 18800305881)
内容 8955
粉丝 0
沪房新传播 上海买房必备的公众号!上海新房or二手房专业服务平台,为您提供新房取证、开盘信息,专业解答您新房积分计算、购房资质、税费贷款等购房问题,让您买房更明白更省钱!团队boss( 甘经理 18800305881)
总阅读8.6k
粉丝0
内容9.0k