“最新消息
「静安里」
静安区内环内苏河湾
建面约200-380㎡风貌别墅
招商华发合作 共222席瑧稀作品
总价在4000万-1亿元左右
每日沪房网签快报丨展开动画
项目推荐 · 理由
项目推荐理由丨展开动画
内容提要:
*01.基本信息
*02.推售信息
*03.周边配套
HU FANG
沪房新传播出品
在上海的城市肌理中,有些街道如同年轮般记载着岁月的痕迹武进路就是这样特殊的存在!
它的长度不过千米,却串起了上海从开埠到国际化大都市的完整历史链条行走其间,仿佛翻阅一部立体的城市传记,每一栋建筑都是一个章节,每一条弄堂都是一段注脚
德隆烟厂以首创“烟卡”营销模式闻名,彰显近代民族企业创新精神;泰山大剧院则作为沪上越剧文化发源地,承载着鲁迅、郁达夫等文人的艺术记忆
设计过程效果示意图仅供参考,具体以政府审批及实际交付为准
还有之前提到的唐宅,作为中华民国首任总理、外交官唐绍仪的故居,TA是老上海百年前的优雅巅峰,是当时建造设计的最高水准
唐绍仪故居实景
如果说一条武进路,可以漫步穿梭于半部上海史,那唐宅就是这册长卷的题跋和序言
最好的保护不是封存时间,而是让岁月继续生长为了让唐宅继续生长,静安里修旧如旧,将对建筑原貌的尊重化为克制,将更多经历花在了你看不见的地方
唐宅部分修缮前后对比
为了保留一砖一缝里,流淌着百年的风云变化,采用了尽可能少干预的修复手法
所以这里的墙面红砖是斑驳的、是凹凸不平的,都岁月留下的自然痕迹
内部采用了钢结构加固,采用了深约24米的锚杆静压桩,这样的大动作,在近20年的国内保护修缮项目中都很罕见
在经年修缮之后,今年6月21日,上海静安里·唐宅以“苏河风貌·海派会客厅”之名焕新启幕,每一位走进唐宅海派会客厅的观众,都能感知上海文化遗产的温度与厚度
静安里已然成为串联苏州河百年文脉的“中枢”,老上海的绝代风华在这里持续生长
老实讲,这样的文化、历史天赋,已经足以羡煞一众市区风貌项目,但这还不是静安里的全貌
将视角拉远,静安里的周边是全市风貌建筑最密集区域之一的苏河风貌区
苏河风貌区示意图
静安里与一路之隔的弘安里更是苏河风貌区的核心,整个区域总体的低密度街区占地面积超过30万㎡,有近百万方的城市风貌更新区域,相当于28.3个新天地(来源:上海2035规划)而且,这里不止有风貌住宅群,还有石库门历史商业街区约10万方的今潮8弄(18街坊),包含了8条里弄、60幢石库门房子和多幢优秀百年历史建筑
今潮8弄实景图,图源网络
在静安里和弘安里的连接处,“南市北里”的苏河风貌区商业新名片也正在酝酿中
示意图
沿着武进路,静安里将打造一条风貌街区,总体量近1万㎡,未来建成后,这里将是上海城市历史文化遗产集群之大成者
成为足以媲美甚至超越新天地、思南公馆、张园的历史风貌代表,跻身上海新的文化和商业地标
"苏河风貌·海派会客厅"的历史文脉纵深,让静安里化身海派文化在当代的代言人,立于文化价值的制高点
而苏河风貌区庞大的低密住宅群,不仅仅是简单的财富聚集,而是一个具有共同文化基因的圈层,这是城市发展和规划带来的先天优势,从时间与空间的双重维度,重新定义“绝版”的珍贵!
识别二维码
进入“「静安里」”预约看房通道
案场销售会第一时间与您联系
HU FANG
沪房新传播出品
目前市面上大多数风貌别墅受限于指标,普遍采用超高层+别墅的高低配组合
大家花了买别墅的钱,却享受不到应有的生活质感
反观静安里,凭借超低容积率的地块天赋,不仅带来了更纯粹的墅居氛围,还是整个内环别墅体量更大的社区
这样的社区布局带来的优势是显而易见的,静安里可以因地制宜把产品力发挥得淋漓尽致,带来更大的楼间距、更优的采光和景观打造空间
社区内部尊重原有肌理,静安里妥善留存更新原有不同风格建筑,通过保护修缮、保留改造、更新改建、织补新建四大更新手法,打造了10种建筑立面风格,让各个时代建筑和谐共存
七坊、三十二弄、七大石库门串联起7大组团,八个不同规制的坊门,散落于组团之间,营造出了归家动线上的连续仪式
六大世界经典花园融入上海及世界优秀花园样式,汇成海派花园的园区巡礼,以每个独属于上海的百年场所记忆进行时空平移打造海派花园百科全书
静安里还是历史风貌住宅里面少有的有会所的项目,约1000㎡的私属会所,为业主提供星级高端服务接待休息区,还配备了健身房、瑜伽室、泳池等,集萃一站式高阶生活服务空间礼遇
聚焦到风貌别墅本身,静安里应用8大定制级的产品设计手法,通过定制级手工砖、定制级山花造型、定制级铁艺栏杆、定制级入户壁灯、定制级的风帽雨水斗等部品部件,每一处细节都是匠心打磨的痕迹
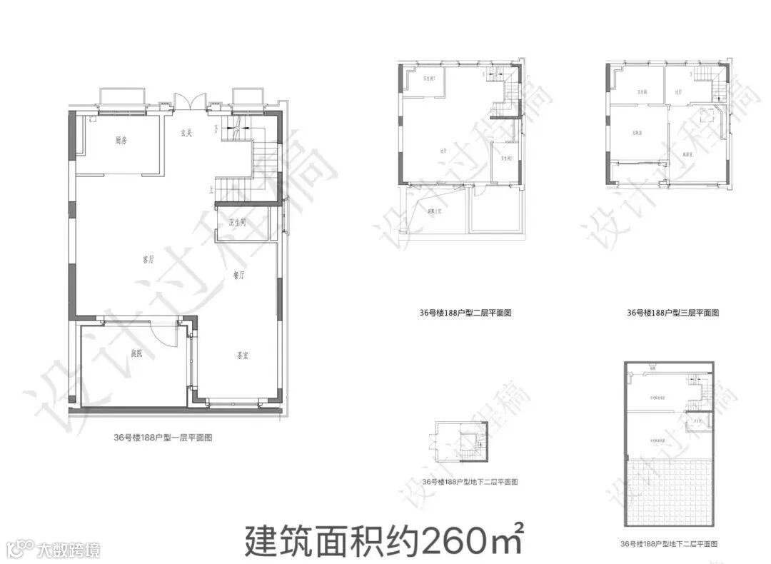
还有大家最关心的户型和附赠空间,项目沿袭历史建筑格局,提高窗墙比,降低围墙高度,拓展地下空间静安里基础的户型设计,满足全卧室朝南,而且空间改造的底子好,可变性多
至于附赠空间,据看过样板间的购房者表示:附赠率比一般风貌项目高而且全,露台、庭院和多层地下室
可以说,静安里在地块天赋基础上,将居住的实用性、舒适度拉满,以超越时代的远见,重新定义了风貌别墅的生活范式
效果图
里市新街:规划南北活力纵轴,保改、更新宝山路、东新民路、罗浮路、武进路街面,重塑里市繁华记忆。
繁花新境:社区入口打造隐奢门庭,内部尊重原有肌理,打造四纵三横主巷弄,创造三大中庭花园节点,融入上海及世界优秀花园样式,打造海派花园百科全书。
礼遇新所:打造地下建筑面积约1300㎡生活方式合集空间,集萃一站式高阶生活服务礼遇。
海派新生:妥善留存更新原有不同风格建筑,通过保护修缮、保留改造、更新改建、织补新建四大更新手法,让各个时代建筑和谐共存。
识别二维码
进入“「静安里」”预约看房通道
案场销售会第一时间与您联系
规划方面
一江一河,全球滨水城市的两极交汇“一江一河”两大世界级规划,黄浦江和苏州河皆被定义为最具全球影响力的世界级滨水区之一静安里,居于一江一河之上,享“一江一河”世界级滨水资源,拥揽上海经济与文化的心脉
苏河北卓越水岸,首段城市节点2025年2月,《苏州河沿岸地区整体风貌与开发空间提升专项规划(2025-2035年)》政府批复文件中,静安里所处位置为总体布局中「都市经典段」头端位置,集合文化历史资源与城市公共功能空间的全面兑现,这里将成为展示江河交汇、中西合璧的海派都市风采
北外滩上位规划,国级的彼岸对话2个陆家嘴规模的开发体量,超16座塔尖建筑,集合约1500家金融企业,与陆家嘴形成浦江门廊。
苏河湾、北外滩、外滩、陆家嘴将形成上海的内环“黄金核心”,穿梭历史与未来的,成就下一个百年的繁荣盛景。
交通方面
『全维配套』,永不落幕的海上风华无缝全城的自由抵达:3号线、4号线、10号线、12号线四轨纵横;海宁路、周家嘴路、大连路、北横通道,畅达全城。
商业方面
摩登生活的璀璨演绎:
3公里范围内,汇聚苏河湾万象天地、北外滩商圈、瑞虹商圈、南京西路商圈、外滩商圈、陆家嘴商圈等,东南侧步行可达18街坊,西南侧在建安康苑、湾上综合体地块。
屹立上海的风情地标:宝格丽酒店、苏宁宝丽嘉、海鸥丽晶、W酒店、上海外滩茂悦大酒店、外滩悦榕庄等环伺,奢享时代。
休闲方面
沉淀优雅的文艺高地
ucca edge静安尤伦斯美术馆、没顶画廊、fotografiska展览馆、苏富比空间、suhe haus、天后宫、上海铁路博物馆、四行仓库抗战纪念馆等。
漫步格调的都会谧屿:四川北路开放式绿地公园、昆山公园、苏河湾中央公园、中兴公园,举步即是无边绿意。
医疗、教育方面
呵护健康的便捷医疗
周边汇聚上海市第一人民医院、上海东方医院、上海市中医医院,上海交通大学医学院附属仁济医院(西院)等。
举步书香的优质教育
金鹭幼儿园,宝山路小学、静安闸北第三中心小学,市北中学环立,给子女们一个值得托付的未来。
识别二维码
进入“「静安里」”预约看房通道
案场销售会第一时间与您联系
2025沪房新传播助力新房置业
推出9大免费服务,详情可添加选房师微信咨询!
咨询9大免费服务,口令“购房无忧”
9大免费服务丨展开动画
本文由【沪房新传播】团队创作
转载请声明出处
点击图片 了解详情

