


过几天就是春节小长假了,这两天,中铁逸都、崇州云玺、美的云筑、北纬31°、世茂璀璨未来纷纷公开临时展厅,多个纯新盘轮番轰炸,令人眼花缭乱。就在今天,江海大道旁又一纯新盘传来动态,值得关注。
今天上午,位于江海大道旁兴仁板块内的又一新盘公开亮相,项目案名观江海,由招商地产和弘阳地产联合打造。项目为纯小高层设计,一共包括19栋9-11F小高层住宅和部分商业,弥补了板块内的商业缺失。

该地块北侧为南山美锦项目,成交楼面价6007元/㎡,售价约为16000元/㎡。而这宗地块成交楼面价为7260元/㎡,业内人士预测,房价预计将会在1.8~1.9万/㎡左右。

据了解,项目预计首开300多套,预计四五月首开,目前具体楼栋还没有确定,户型面积100㎡、112㎡和132㎡,精装交付,配备三大件。项目临时展厅就位于地块上,感兴趣的买房人可以前往参观。

1、刚刚!南通又一纯新盘公开,户型100㎡、112㎡和132㎡!
今天,南通观江海项目赶在节前公开了临时展厅,我第一时间赶赴现场,了解最新消息。
当我赶到现场,现场已经挤满了人。一整面手办墙吸引了我的注意,据置业顾问介绍光是这堵墙就价值十万,与项目年轻潮流的气质也相符。

置业顾问介绍到,观江海项目由招商蛇口和弘阳地产联合打造,预计四五月份开盘,Shou开共计300多套,目前加推楼栋还没确定。项目为纯小高层住区,精装修交付,配备三大件。

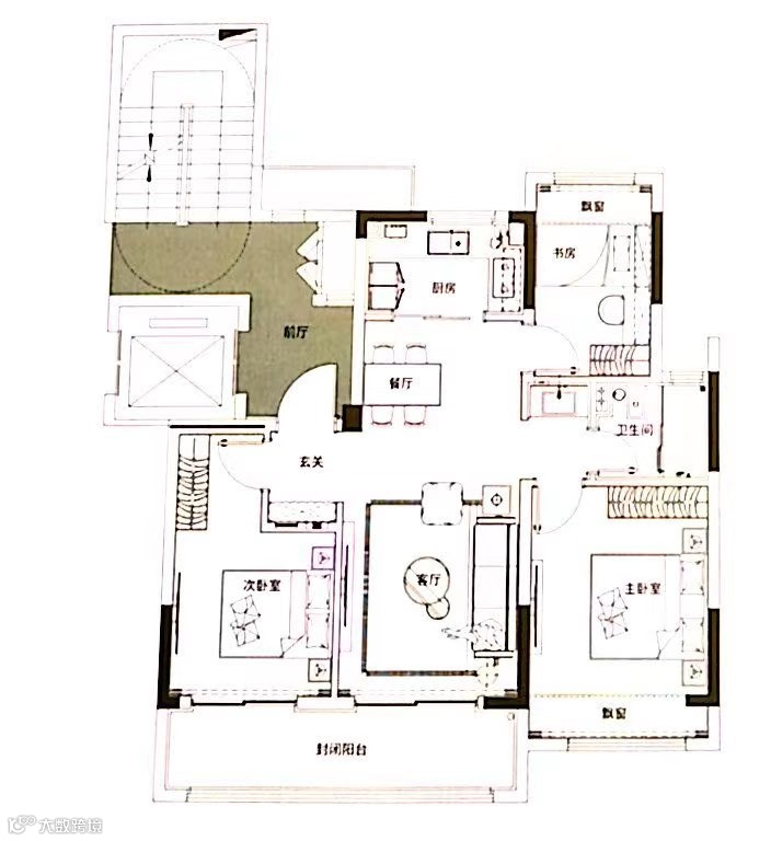
观江海户型只有三种,建筑面积约100㎡、112㎡和132㎡,整体户型设计可圈可点,均为封闭式阳台,均拥有独立电梯前厅,下面来看我在现场拍摄到的户型资料。
100㎡ 三房两厅一卫

户型点评:南北通透,三开间朝南;约6.4米南向双阳台设计;主卧套房设计、自带飘窗;
112㎡ 三房两厅两卫

户型点评:客餐厅一体化设计、四开间朝南、约5.7米宽体大横厅、南北通透;南向双阳台设计;主卧套房设计、自带南北飘窗;每间卧室包括卫生间均带有飘窗;
112㎡ 三房两厅两卫

户型点评:客餐厅一体化设计、四开间朝南、南北通透;约6.9米南向双阳台设计;主卧套房设计、自带南北飘窗;每间卧室包括卫生间均带有飘窗;
值得注意的是,观江海项目还自带商业和宾馆,计容建筑面积约10000㎡,一定程度上可以弥补板块内配套缺乏的局面。

至于买房人最关心的价格,目前项目并未透露。但不少业内人士称,北侧南山美锦售价1.6万/㎡,考虑到拿地价的原因,观江海的价格预计将会突破1.8万/㎡ 的大关。
2、江海大道东延利好辐射,兴仁板块发展可期
观江海所处的通州兴仁板块位于崇川、通州双区交汇处,作为主城东的桥头堡,高架、高速、省道、机场等交通基础设施均贯穿其中。

另外,整个板块距离圆融商圈(原崇川区)约11公里,距离万象城商圈(原港闸区)约9公里,此外,项目附近兴仁小学、兴仁初中均距离项目不远,配套设施正处于整合升级阶段。

圆融商圈 图源:网络
而随着江海大道东延项目的正式开工,未来从兴仁向东可高架直达通州城区金沙,向南经东快速路即到开发区,向西到达崇川区,区位优势非常明显。

在售新房方面,板块内仅有南山美锦项目在售,与观江海项目仅有一路之隔,目前售价约为1.6万/㎡。南山美锦项目几次开盘均取得了不俗的成绩,目前已经接近售罄。

值得关注的是,在目前主城区普遍破2万的大背景下,兴仁这块近主城区域房价依旧不过2万/㎡,则显得弥足珍贵。你是如何看待兴仁版块的发展的?欢迎留言分享。

